









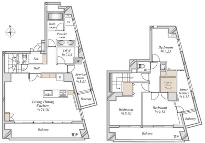
3SLDK + WIC+インナーテラス/118.77㎡
物件価格
25,800万円
仲介手数料:最大780万円が不要!
頭金0円で月々万円台よりご購入可能
月々の支払金額
円※ このシミュレーションには、諸費用・管理費・修繕積立金等は含まれておりません。あくまでも目安の数値となり、お借り入れを保証するものではありませんので、
実際の購入・借り入れにあたっては、金融機関でご確認いただくか、「お問い合わせ」よりご相談ください。
管理費 : 61,270円 / 修繕積立金 : 21,790円
投資用
ペット可
事務所可
宅配ボックス
オートロック
新耐震
フラット35S
フラット35
リノベーション
R1住宅
リフォーム
◆2025年12月リフォーム完工予定
◆メゾネットタイプで広々
◆南向き
司法書士は売主指定となります。
登記簿118.77平米最も上の階でメゾネット10階11階部分となります。
登記簿での表記となるので専有面積は更に広くなります。
バルコニー面積は不明です。

麹町駅徒歩2分!「グランドメゾン紀尾井坂」最上階10・11階部分、南向きの開放的なメゾネット住戸。118.77㎡超(登記簿面積)の広々とした空間はリフォーム完了予定(2025年12月)。水回り、内装を一新し、快適な暮らしを実現。3SLDKの間取りはファミリーにも最適。収納豊富で、ゆとりのある生活をお約束します。
室内の照明等を点灯せず、自然光の明るさを計測しております。計測期間の平均値を使用しております。
| 100ルクス以下 | 100~200ルクス | 200~500ルクス | 500~750ルクス | 750ルクス以上 |
|---|---|---|---|---|
人々のさまざまな活動が安全・快適に行える環境を作るために、推奨する照度基準を定めたもので、作業内容や空間の用途に応じて推奨照度が設定されています。JIS照明基準では、200lx(ルクス)をリビングでの団らんや娯楽(軽い読書も含む)に推奨される照度と定めており、200ルクス以上の照度が取れていれば自然光でもリラックスして過ごすことができます。
勉強やPC作業等の作業は750ルクス以上が必要とされており、裁縫等のさらに緻密な作業には1000以上のルクスが推奨されています。
計測期間の平均値を使用しております。
| 70デシベル以上(地下鉄の車内・ 蝉の声) | 60~70デシベル(ファミレス・ コーヒーショップ店内) | 50~60デシベル(書店の店内・ 役所の窓口周辺) | 40~50デシベル(図書館の館内・美術館の館内) | 30~40デシベル(ホテルの室内) |
|---|---|---|---|---|
※参考:環境省
| マンション名 | グランドメゾン紀尾井坂 | 住所 | 東京都千代田区麹町4丁目3-6 |
|---|---|---|---|
| 価格 | 25,800万円 購入シミュレーションClose 購入シミュレーション物件価格 25,800万円 仲介手数料:最大780万円が不要! 頭金 025,800 金利(年) 05.000 返済年数 145 借入金額 万円 月々の支払金額 円 返済総額 円 諸費用概算 約万円 上記の諸費用が必要となります。 ※ 借入条件を(物件価格、期間35年)で算出。 ※ 借地権の際は誤差が生じます。 ※ このシミュレーションは、あくまでも目安の数値となり、お借り入れを保証するものではありません。 | 土地権利 | 所有権 |
| 交通 | 東京地下鉄有楽町線 麹町駅 まで 徒歩 2 分 東京地下鉄半蔵門線 半蔵門駅 まで 徒歩 6 分 東京地下鉄南北線 永田町駅 まで 徒歩 7 分 | 用途地域 | 商業地域 |
| 築年月 | 1983年09月(築42年) | ||
| 管理費 | 61,270円 | 修繕積立金 | 21,790円 |
| その他費用 | |||
| 管理方式 | 全部委託 | 管理会社 | 積水ハウスGMパートナーズ株式会社 |
| 管理人 | 巡回 | 現況 | 空室 |
| 引渡し時期 | 相談 | 固定資産税・ 都市計画税 |
| 構造 | 鉄骨鉄筋コンクリート造(SRC) | 建物階数 | 地上11階 |
|---|---|---|---|
| 所在階 | 10階 | 総戸数 | 19 戸 |
| 専有面積 | 壁芯 118.77㎡ | バルコニー面積 | |
| 間取り | 3SLDK + WIC+インナーテラス | 方角 | 南 |
| 駐車場 | なし | ||
| バイク置き場 | 駐輪場 | ||
| ペット | 事務所利用 |
| 施工会社 | 株式会社錢高組 | 耐震診断 | |
|---|---|---|---|
| 再建築不可 | 既存不適格 | ||
| その他説明事項 | ※掲載と現況が異なる場合は現況優先します。
| ||
| その他 |
| 修繕積立金の総額 | 修繕積立金の滞納額 | ||
|---|---|---|---|
| 管理費の滞納額 | 管理組合の借入額 |
| 項目 | リフォーム | 内装完了日 | 2025年12月(中旬) |
|---|---|---|---|
| 内容 | 予定
|
| 位置 | 最上階 | 部屋 | LDK15畳以上 / 全室6畳以上 / メゾネット |
|---|---|---|---|
| 収納 | WICあり / 納戸あり | キッチン | カウンターキッチン / 食洗機 / システムキッチン |
| 浴室・トイレ・洗面所 | 浴室乾燥機 / 追い焚き / 温水便座洗浄機 | バルコニー | 2面バルコニー |
| 設備 | 全居室収納あり / BS / CS / CATV | その他 | リフォーム |
| 構造 | 設備 | エレベーター | |
| セキュリティ | モニター付インターホン | 立地・環境 | 3駅以上利用可 / 2沿線以上利用可 |
情報提供日:2025年12月04日 / 次回更新日:2025年12月18日
| 近隣施設 1 | ホテルニューオータニ 714m |
|---|---|
| 近隣施設 2 | 紀尾井テラス 726m |
| 近隣施設 3 | 成城石井麹町店 193m |
| 近隣施設 4 | ココスナカムラ麹町店 272m |
| 近隣施設 5 | サカガミルパ赤坂店 585m |

国土交通大臣(2)第8622号
公正取引協議会加盟事業者((公社)首都圏不動産公正取引協議会)
◆お問い合わせ対応窓口◆
取引態様:媒介
本サイト運営会社/株式会社FLIE(FLIEエージェント)
東京都中央区京橋1-1-5 セントラルビル3F
免許番号:国土交通大臣(1)第10892号
※売主様が対応可能な場合、直接手続きとなる場合があります。
-----------------------------------------------------------------
“不動産”は、その名の通り、動かすことができない資産…。 そんな不動産を、国境も超えて自由に売買・賃貸できるノウハウを持っているのが、ランドネットです。そして、台湾・香港に現地法人を置き、アジア各国を足がかりに今、全世界への進出を推進しております。
「売る」「買う」「貸す」「リフォーム・リノベーション」というお客様にとってすべてのニーズを満たせる会社であると同時に、世界中の不動産を、世界中の人々が自由に売買できる世の中を創造し、“不動産流通業の革新”を実現していきます。
※売主HPより引用
物件価格
仲介手数料:最大780万円が不要!
頭金
金利(年)
返済年数
返済総額 円
上記の諸費用が必要となります。
※ このシミュレーションは、あくまでも目安の数値となり、お借り入れを保証するものではありません。
※ 実際の購入・借り入れにあたっては、金融機関でご確認いただくか、「お問い合わせ」よりご相談ください。
※ 諸費用を含めた住宅ローンのご提案も承っておりますので、お気軽にご相談ください。
最近見た物件
グランドメゾン紀尾井坂
無料通話番号
不動産取引の新しい常識へ
「買主と売主が自由に安心して直接取引できる不動産プラットフォーム」を目指しています。