































◆◆ GW休暇のお知らせ ◆◆
拝啓 時下ますますご清祥のこととお慶び申し上げます。
平素は格別のお引き立てを賜り厚く御礼申し上げます。
誠に勝手ながら、以下の期間を休業とさせていただきます。
****************************************
ゴールデンウィーク休暇期間
2026年5月2日(土)~2026年5月6日(水)
****************************************
※休業期間中にお問い合わせいただきました件に関しては、
2026年5月7日(木)より順次ご対応させていただきます。
ご迷惑をお掛けいたしますが、何卒ご了承くださいますよう宜しくお願い申し上げます。
敬具
3LDK/79.71㎡
投資用
ペット可
事務所可
宅配ボックス
オートロック
新耐震
フラット35S
フラット35
リノベーション
R1住宅
リフォーム
オーナーチェンジ物件
◇ 表面利回り:約 7.59%
◇ 年間賃料収入:1,428,000 円
月額賃料:119,000 円
※賃料及び利回りについては、将来にわたり確実に保証されるものではありません。
天神川、昆陽池に面した閑静な住宅街!
オートロック完備
バス停徒歩1分

伊丹駅バス7分(約560m)!「ウィルロード昆陽池パークビュー」2階部分、南向き79.71㎡の3LDK!天神川と昆陽池に面した閑静な住宅街に位置し、1998年築ながらリフォーム済で快適な暮らしを実現。オートロック完備で安心のセキュリティ。オーナーチェンジ物件につき、利回り約7.59%で投資にも最適!詳細はお問い合わせください。
室内の照明等を点灯せず、自然光の明るさを計測しております。計測期間の平均値を使用しております。
| 100ルクス以下 | 100~200ルクス | 200~500ルクス | 500~750ルクス | 750ルクス以上 |
|---|---|---|---|---|
人々のさまざまな活動が安全・快適に行える環境を作るために、推奨する照度基準を定めたもので、作業内容や空間の用途に応じて推奨照度が設定されています。JIS照明基準では、200lx(ルクス)をリビングでの団らんや娯楽(軽い読書も含む)に推奨される照度と定めており、200ルクス以上の照度が取れていれば自然光でもリラックスして過ごすことができます。
勉強やPC作業等の作業は750ルクス以上が必要とされており、裁縫等のさらに緻密な作業には1000以上のルクスが推奨されています。
計測期間の平均値を使用しております。
| 70デシベル以上(地下鉄の車内・ 蝉の声) | 60~70デシベル(ファミレス・ コーヒーショップ店内) | 50~60デシベル(書店の店内・ 役所の窓口周辺) | 40~50デシベル(図書館の館内・美術館の館内) | 30~40デシベル(ホテルの室内) |
|---|---|---|---|---|
※参考:環境省
| マンション名 | ウィルロード昆陽池パークビュー | 住所 | 兵庫県伊丹市中野東1丁目85-6 |
|---|---|---|---|
| 価格 | 1,880万円 | 土地権利 | 定期地上権(賃料 : 月額 12,050 円) |
| 交通 | 阪急電鉄伊丹線 伊丹駅 バス7分 「玉田団地」バス停より徒歩 1 分 | 用途地域 | 第一種中高層住居専用地域 |
| 築年月 | 1998年11月(築28年) | ||
| 管理費 | 8,770円 | 修繕積立金 | 9,010円 |
| その他費用 | 借地料:月額12,050円 | ||
| 管理方式 | 全部委託 | 管理会社 | 日本管財住宅管理株式会社 |
| 管理人 | 日勤 | 現況 | 賃貸中 |
| 引渡し時期 | 相談 | 固定資産税・ 都市計画税 |
| 構造 | 鉄筋コンクリート造(RC) | 建物階数 | 地上11階 |
|---|---|---|---|
| 所在階 | 2階 | 総戸数 | 85 戸 |
| 専有面積 | 壁芯 79.71㎡ | バルコニー面積 | 11.4㎡ |
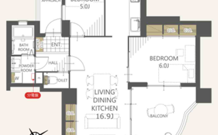
| 間取り | 3LDK | 方角 | 南 |
| 駐車場 | 確認中 : 月額 10,000 円 | ||
| バイク置き場 | 確認中 : 月額 500 ~ 1,000 円 | 駐輪場 | 確認中 : 月額 200 円 |
| ペット | 不可 | 事務所利用 |
| 施工会社 | 耐震診断 | ||
|---|---|---|---|
| 再建築不可 | 既存不適格 | ||
| その他説明事項 | ※図面と現況に相違がある場合は現況優先とします。
■土地権利:定期借地権(地上権:2053 年 12 月 31 日まで)
| ||
| その他 |
| 修繕積立金の総額 | 修繕積立金の滞納額 | ||
|---|---|---|---|
| 管理費の滞納額 | 管理組合の借入額 |
| 項目 | リフォーム | 内装完了日 | 2022年08月(下旬) |
|---|---|---|---|
| 内容 | ◆ キッチン システムキッチン新規交換
|
| 位置 | 部屋 | LDK15畳以上 / 全室6畳以上 / 全居室フローリング | |
|---|---|---|---|
| 収納 | キッチン | カウンターキッチン / システムキッチン / 3口以上コンロ | |
| 浴室・トイレ・洗面所 | 温水便座洗浄機 / 三面鏡 | バルコニー | |
| 設備 | その他 | リフォーム / 瑕疵保険(国交省) | |
| 構造 | 新耐震基準 | 設備 | エレベーター |
| セキュリティ | オートロック | 立地・環境 |

国土交通大臣(3)第8603号
所属団体名((公社)首都圏不動産公正取引協議会/(一社)リノベーション協議会)
◆お問い合わせ対応窓口◆
取引態様:媒介
本サイト運営会社/株式会社FLIE(FLIEエージェント)
東京都中央区京橋1-1-5 セントラルビル3F
免許番号:国土交通大臣(1)第10892号
※売主様が対応可能な場合、直接手続きとなる場合があります。
-----------------------------------------------------------------
「都心、首都圏、地方大都市で、やはりアクセスの良い立地に、理想の家を持ちたい。」 当社の中古マンションリノベーション物件はお手頃な価格で理想の家を提供いたします。理想と品質にこだわったホームネットのリノベーションで快適な価値ある生活をお過ごしください。 またホームネットでは、「価値ある生活空間をご提供する」リノベーションブランド「FURVAL」 を展開しています。
※売主HPより引用
ウィルロード昆陽池パークビュー
無料通話番号
不動産取引の新しい常識へ
「買主と売主が自由に安心して直接取引できる不動産プラットフォーム」を目指しています。