

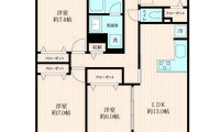
4LDK/86.67㎡
物件価格
3,898万円
仲介手数料:最大122.9万円が不要!
頭金0円で月々万円台よりご購入可能
月々の支払金額
円※ このシミュレーションには、諸費用・管理費・修繕積立金等は含まれておりません。あくまでも目安の数値となり、お借り入れを保証するものではありませんので、
実際の購入・借り入れにあたっては、金融機関でご確認いただくか、「お問い合わせ」よりご相談ください。
管理費 : 12,900円 / 修繕積立金 : 11,960円
投資用
ペット可
事務所可
宅配ボックス
オートロック
新耐震
フラット35S
フラット35
リノベーション
R1住宅
リフォーム
新規フルリノベーション!
屋内駐車場専用使用権付・トランクルーム無償利用可能
■エアコン全室設置可能
■総戸数143戸の大規模マンション
■30㎡越えの広々バルコニー
■大規模修繕工事実施予定(2026年)
■ウエルシア相模原南橋本店・・・・・・・・・・・・・・・・・徒歩30秒(40m)
■セブンイレブン相模原南橋本店・・・・・・・・・・・・・・徒歩4分(280m)
■ライフ相模原モール店・・・・・・・・・・・・・・・・・・・・徒歩10分(650m)
■相模原市立小山小学校 ・・・・・・・・・・・・・・・・・・・徒歩11分(750m)
■相模原市立小山中学校 ・・・・・・・・・・・・・・・・・・・徒歩12分(850m)
室内の照明等を点灯せず、自然光の明るさを計測しております。計測期間の平均値を使用しております。
| 100ルクス以下 | 100~200ルクス | 200~500ルクス | 500~750ルクス | 750ルクス以上 |
|---|---|---|---|---|
人々のさまざまな活動が安全・快適に行える環境を作るために、推奨する照度基準を定めたもので、作業内容や空間の用途に応じて推奨照度が設定されています。JIS照明基準では、200lx(ルクス)をリビングでの団らんや娯楽(軽い読書も含む)に推奨される照度と定めており、200ルクス以上の照度が取れていれば自然光でもリラックスして過ごすことができます。
勉強やPC作業等の作業は750ルクス以上が必要とされており、裁縫等のさらに緻密な作業には1000以上のルクスが推奨されています。
計測期間の平均値を使用しております。
| 70デシベル以上(地下鉄の車内・ 蝉の声) | 60~70デシベル(ファミレス・ コーヒーショップ店内) | 50~60デシベル(書店の店内・ 役所の窓口周辺) | 40~50デシベル(図書館の館内・美術館の館内) | 30~40デシベル(ホテルの室内) |
|---|---|---|---|---|
※参考:環境省
| マンション名 | グランイーグルwing橋本 | 住所 | 神奈川県相模原市中央区南橋本1丁目16-1 |
|---|---|---|---|
| 価格 | 3,898万円 購入シミュレーションClose 購入シミュレーション物件価格 3,898万円 仲介手数料:最大122.9万円が不要! 頭金 03,898 金利(年) 05.000 返済年数 145 借入金額 万円 月々の支払金額 円 返済総額 円 諸費用概算 約万円 上記の諸費用が必要となります。 ※ 借入条件を(物件価格、期間35年)で算出。 ※ 借地権の際は誤差が生じます。 ※ このシミュレーションは、あくまでも目安の数値となり、お借り入れを保証するものではありません。 | 土地権利 | 所有権 |
| 交通 | 相模線 南橋本駅 まで 徒歩 2 分 | 用途地域 | 商業地域 |
| 築年月 | 2001年05月(築25年) | ||
| 管理費 | 12,900円 | 修繕積立金 | 11,960円 |
| その他費用 | |||
| 管理方式 | 全部委託 | 管理会社 | 伊藤忠アーバンコミュニティ(株) |
| 管理人 | 日勤 | 現況 | 空室 |
| 引渡し時期 | 相談 | 固定資産税・ 都市計画税 |
| 構造 | 鉄骨鉄筋コンクリート造(SRC) | 建物階数 | 地上13階 / 地下1階 |
|---|---|---|---|
| 所在階 | 2階 | 総戸数 | 143 戸 |
| 専有面積 | 壁芯 86.67㎡ | バルコニー面積 | 32.2㎡ |
| 間取り | 4LDK | 方角 | 南東 |
| 駐車場 | あり(空有) : 無償 | ||
| バイク置き場 | 確認中 : 月額500円 | 駐輪場 | 確認中 : 月額200円 |
| ペット | 可 (条件 : (通常、JRなどの交通機関への持ち込みが許される大きさの 容器(長さ70cm、たて、よこ、高さの合計が90cm以内)に入れて持ち運びができる程度の大きさ)) | 事務所利用 |
| 施工会社 | 森本組(株) | 耐震診断 | |
|---|---|---|---|
| 再建築不可 | 既存不適格 | ||
| その他説明事項 | ※司法書士売主指定
■アルコーブ面積/19.87㎡
| ||
| その他 |
| 修繕積立金の総額 | 修繕積立金の滞納額 | ||
|---|---|---|---|
| 管理費の滞納額 | 管理組合の借入額 |
| 項目 | リノベーション | 内装完了日 | 2025年12月 |
|---|---|---|---|
| 内容 | ■キッチン(食洗器・浄水器付)
|
| 位置 | 部屋 | 全居室フローリング | |
|---|---|---|---|
| 収納 | キッチン | カウンターキッチン / 食洗機 / 浄水器 / システムキッチン / 3口以上コンロ | |
| 浴室・トイレ・洗面所 | 浴室乾燥機 / 追い焚き | バルコニー | |
| 設備 | その他 | 家具付き / リノベーション / リフォーム | |
| 構造 | 新耐震基準 | 設備 | トランクルーム / エレベーター |
| セキュリティ | 立地・環境 |

国土交通大臣(1)第10661号
所属団体名((公社)全日本不動産協会)
◆お問い合わせ対応窓口◆
取引態様:媒介
本サイト運営会社/株式会社FLIE(FLIEエージェント)
東京都中央区京橋1-1-5 セントラルビル3F
免許番号:国土交通大臣 (1) 第10892号
※売主様が対応可能な場合、直接手続きとなる場合があります。
中古マンション・中古戸建をリノベーションを施し、
新たな付加価値を付け販売しております。
これまでの建てては壊すという「スクラップ・アンド・ビルド」から、
既存建物の良いところをリノベーションによって「再生」し、
今の時代に合ったお客様の理想の住宅の供給を行います。
※売主HPより引用
物件価格
仲介手数料:最大122.9万円が不要!
頭金
金利(年)
返済年数
返済総額 円
上記の諸費用が必要となります。
※ このシミュレーションは、あくまでも目安の数値となり、お借り入れを保証するものではありません。
※ 実際の購入・借り入れにあたっては、金融機関でご確認いただくか、「お問い合わせ」よりご相談ください。
※ 諸費用を含めた住宅ローンのご提案も承っておりますので、お気軽にご相談ください。
グランイーグルwing橋本
無料通話番号
不動産取引の新しい常識へ
「買主と売主が自由に安心して直接取引できる不動産プラットフォーム」を目指しています。