

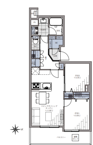
2LDK + SIC/53.98㎡
物件価格
11,480万円
仲介手数料:最大350.4万円が不要!
頭金0円で月々万円台よりご購入可能
月々の支払金額
円※ このシミュレーションには、諸費用・管理費・修繕積立金等は含まれておりません。あくまでも目安の数値となり、お借り入れを保証するものではありませんので、
実際の購入・借り入れにあたっては、金融機関でご確認いただくか、「お問い合わせ」よりご相談ください。
管理費 : 11,550円 / 修繕積立金 : 13,050円
投資用
ペット可
事務所可
宅配ボックス
オートロック
新耐震
フラット35S
フラット35
リノベーション
R1住宅
リフォーム
ビックターミナル「品川」駅徒歩10分
天王洲運河を望む抜群の眺望
ペット飼育可(一住戸三匹まで)
【工事履歴】
2024年 機械式駐車場部品交換工事
2022年 消防設備改修工事
2022年 共用部照明LED改修工事
2021年 排水ポンプ交換工事
【周辺環境】
■セブンイレブン港区港南二丁目店・・・約150m
■まいばすけっと東品川一丁目・・・・・・・約350m
■品川インターシティ・・・・・・・・・・・・・・・約550m
■アトレ品川・・・・・・・・・・・・・・・・・・・・・・・約850m

【物件担当(FLIEエージェント):坂斉(さかさい)】
※お気軽にお問い合わせください。
室内の照明等を点灯せず、自然光の明るさを計測しております。計測期間の平均値を使用しております。
| 100ルクス以下 | 100~200ルクス | 200~500ルクス | 500~750ルクス | 750ルクス以上 |
|---|---|---|---|---|
人々のさまざまな活動が安全・快適に行える環境を作るために、推奨する照度基準を定めたもので、作業内容や空間の用途に応じて推奨照度が設定されています。JIS照明基準では、200lx(ルクス)をリビングでの団らんや娯楽(軽い読書も含む)に推奨される照度と定めており、200ルクス以上の照度が取れていれば自然光でもリラックスして過ごすことができます。
勉強やPC作業等の作業は750ルクス以上が必要とされており、裁縫等のさらに緻密な作業には1000以上のルクスが推奨されています。
計測期間の平均値を使用しております。
| 70デシベル以上(地下鉄の車内・ 蝉の声) | 60~70デシベル(ファミレス・ コーヒーショップ店内) | 50~60デシベル(書店の店内・ 役所の窓口周辺) | 40~50デシベル(図書館の館内・美術館の館内) | 30~40デシベル(ホテルの室内) |
|---|---|---|---|---|
※参考:環境省
| マンション名 | 天王洲デュープレックス | 住所 | 東京都港区港南2丁目11-18 |
|---|---|---|---|
| 価格 | 11,480万円 購入シミュレーションClose 購入シミュレーション物件価格 11,480万円 仲介手数料:最大350.4万円が不要! 頭金 011,480 金利(年) 05.000 返済年数 145 借入金額 万円 月々の支払金額 円 返済総額 円 諸費用概算 約万円 上記の諸費用が必要となります。 ※ 借入条件を(物件価格、期間35年)で算出。 ※ 借地権の際は誤差が生じます。 ※ このシミュレーションは、あくまでも目安の数値となり、お借り入れを保証するものではありません。 | 土地権利 | 所有権 |
| 交通 | 東京モノレール羽田 天王洲アイル駅 まで 徒歩 10 分 山手線 品川駅 まで 徒歩 10 分 京浜急行電鉄本線 北品川駅 まで 徒歩 10 分 | 用途地域 | 商業地域 |
| 築年月 | 2000年02月(築25年) | ||
| 管理費 | 11,550円 | 修繕積立金 | 13,050円 |
| その他費用 | |||
| 管理方式 | 全部委託 | 管理会社 | 三菱地所コミュニティ(株) |
| 管理人 | 日勤 | 現況 | 空室 |
| 引渡し時期 | 相談 | 固定資産税・ 都市計画税 |
| 構造 | 鉄骨鉄筋コンクリート造(SRC) | 建物階数 | 地上15階 / 地下1階 |
|---|---|---|---|
| 所在階 | 12階 | 総戸数 | 92 戸 |
| 専有面積 | 壁芯 53.98㎡ | バルコニー面積 | 9.38㎡ |
| 間取り | 2LDK + SIC | 方角 | 東 |
| 駐車場 | 確認中 : 月額30,000円 | ||
| バイク置き場 | 確認中 : 月額3,000円 | 駐輪場 | 確認中 : 月額500円~1,000円 |
| ペット | 可 (条件 : 相談可(飼育細則有)) | 事務所利用 |
| 施工会社 | 大林・松井建設共同体 | 耐震診断 | |
|---|---|---|---|
| 再建築不可 | 既存不適格 | ||
| その他説明事項 | ※販売図面の内容と現況が異なる場合は現況優先とさせていただきます。 | ||
| その他 |
| 修繕積立金の総額 | 修繕積立金の滞納額 | ||
|---|---|---|---|
| 管理費の滞納額 | 管理組合の借入額 |
| 項目 | リノベーション | 内装完了日 | 2025年10月(下旬) |
|---|---|---|---|
| 内容 | フローリング新規貼替
|
| 位置 | 部屋 | 全居室フローリング | |
|---|---|---|---|
| 収納 | SICあり | キッチン | カウンターキッチン / 食洗機 / 浄水器 / システムキッチン |
| 浴室・トイレ・洗面所 | 浴室乾燥機 / 追い焚き / 温水便座洗浄機 / 三面鏡 | バルコニー | |
| 設備 | 全居室収納あり / BS / CS / CATV | その他 | |
| 構造 | 新耐震基準 | 設備 | 24時間ゴミ / 宅配ボックス / コンシェルジュあり / エレベーター |
| セキュリティ | オートロック / モニター付インターホン / 24時間セキュリティ / 有人管理 / 防犯カメラ | 立地・環境 | 3駅以上利用可 / スーパーまで5分 / コンビニまで3分 / 公園まで3分 / 2沿線以上利用可 |
情報提供日:2025年12月04日 / 次回更新日:2025年12月18日
| 近隣施設 1 | ローソン 港南楽水橋店 43m |
|---|---|
| 近隣施設 2 | セブンイレブン 港区港南2丁目店 148m |
| 近隣施設 3 | ひがしやつやま保育園 169m |
| 近隣施設 4 | 東八ツ山公園 171m |
| 近隣施設 5 | セブンイレブン 東品川1丁目店 184m |

国土交通大臣(1)第10414号
公正取引協議会加盟事業者((公社)首都圏不動産公正取引協議会)
◆お問い合わせ対応窓口◆
取引態様:媒介
本サイト運営会社/株式会社FLIE(FLIEエージェント)
東京都中央区京橋1-1-5 セントラルビル3F
免許番号:国土交通大臣(1)第10892号
※売主様が対応可能な場合、直接手続きとなる場合があります。
-----------------------------
市場に眠っている誰もが気付かないような価値のある物件を見つけ出し、リノベーションでその価値を最大限に引き出し再び市場へ提供することが、私たちの使命です。
※売主HPより引用
物件価格
仲介手数料:最大350.4万円が不要!
頭金
金利(年)
返済年数
返済総額 円
上記の諸費用が必要となります。
※ このシミュレーションは、あくまでも目安の数値となり、お借り入れを保証するものではありません。
※ 実際の購入・借り入れにあたっては、金融機関でご確認いただくか、「お問い合わせ」よりご相談ください。
※ 諸費用を含めた住宅ローンのご提案も承っておりますので、お気軽にご相談ください。
最近見た物件
天王洲デュープレックス
無料通話番号
不動産取引の新しい常識へ
「買主と売主が自由に安心して直接取引できる不動産プラットフォーム」を目指しています。