















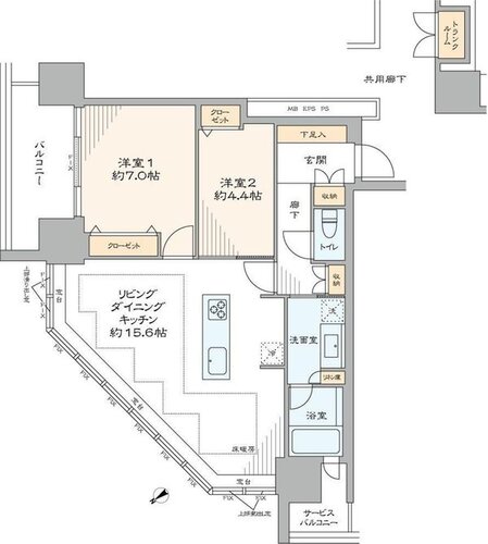
2LDK/64.15㎡
R1住宅 (適合リノベーション住宅) は、リノベーション協議会が定める「検査→工事→開示→保証→住宅履歴」の5つのフローに則ったリノベーションの統一規格です。
住宅のタイプ別に基準を設け、給排水や下地など目に見えない、分かりにくい重要なインフラ部分の検査 + 2年以上の保証、住宅履歴などを義務としています。
物件価格
13,490万円
頭金0円で月々万円台よりご購入可能
月々の支払金額
円※ このシミュレーションには、諸費用・管理費・修繕積立金等は含まれておりません。あくまでも目安の数値となり、お借り入れを保証するものではありませんので、
実際の購入・借り入れにあたっては、金融機関でご確認いただくか、「お問い合わせ」よりご相談ください。
管理費 : 20,600円 / 修繕積立金 : 20,850円 / その他費用 : インターネット定額料金:880円/月、住宅地域冷暖房基本料:5230円/月
投資用
ペット可
事務所可
宅配ボックス
オートロック
新耐震
フラット35S
フラット35
リノベーション
R1住宅
リフォーム
海と緑を身近に感じるロケーション!17階・角部屋、リノベ済み
■マンション1階にまいばすけっと有
□2024年大規模修繕工事実施
■総戸数555戸
□バルコニーから海を望めます
■2匹までペット飼育可(規約有)
□洗練された都市景観と海や公園などの自然が融合したエリア
■アイランドキッチン採用
□充実の共用設備
ラウンジ/ライブラリー/ゲストルーム/スカイオーシャンガーデン(最上階)…等
■マンション1階に、まいばすけっと有
□車道を渡らずに臨港パーク(徒歩6分)

横浜みなとみらいの輝く夜景と海を一望できる17階角部屋。室内はアイランドキッチンやLD床暖房を新設したフルリノベーション済で、上質な空間が広がります。最上階のスカイガーデンやゲストルーム等、共用施設も充実。建物1階にスーパーがあり利便性も抜群です。大切なペット2匹と共に、洗練されたベイエリアでの暮らしを満喫できる住まいです。
室内の照明等を点灯せず、自然光の明るさを計測しております。計測期間の平均値を使用しております。
| 100ルクス以下 | 100~200ルクス | 200~500ルクス | 500~750ルクス | 750ルクス以上 |
|---|---|---|---|---|
人々のさまざまな活動が安全・快適に行える環境を作るために、推奨する照度基準を定めたもので、作業内容や空間の用途に応じて推奨照度が設定されています。JIS照明基準では、200lx(ルクス)をリビングでの団らんや娯楽(軽い読書も含む)に推奨される照度と定めており、200ルクス以上の照度が取れていれば自然光でもリラックスして過ごすことができます。
勉強やPC作業等の作業は750ルクス以上が必要とされており、裁縫等のさらに緻密な作業には1000以上のルクスが推奨されています。
計測期間の平均値を使用しております。
| 70デシベル以上(地下鉄の車内・ 蝉の声) | 60~70デシベル(ファミレス・ コーヒーショップ店内) | 50~60デシベル(書店の店内・ 役所の窓口周辺) | 40~50デシベル(図書館の館内・美術館の館内) | 30~40デシベル(ホテルの室内) |
|---|---|---|---|---|
※参考:環境省
| マンション名 | BrilliaGrandeみなとみらいパークフロントタワー | 住所 | 神奈川県横浜市西区みなとみらい5丁目3-1 |
|---|---|---|---|
| 価格 | 13,490万円 購入シミュレーションClose 購入シミュレーション物件価格 13,490万円 頭金 013,490 金利(年) 05.000 返済年数 145 借入金額 万円 月々の支払金額 円 返済総額 円 諸費用概算 約万円 上記の諸費用が必要となります。 ※ 借入条件を(物件価格、期間35年)で算出。 ※ 借地権の際は誤差が生じます。 ※ このシミュレーションは、あくまでも目安の数値となり、お借り入れを保証するものではありません。 | 土地権利 | 所有権 |
| 交通 | 横浜高速鉄道MM線 みなとみらい駅 まで 徒歩 6 分 東急東横線 横浜駅 まで 徒歩 18 分 | 用途地域 | 商業地域 |
| 築年月 | 2007年08月(築19年) | ||
| 管理費 | 20,600円 | 修繕積立金 | 20,850円 |
| その他費用 | インターネット定額料金:880円/月、住宅地域冷暖房基本料:5230円/月 | ||
| 管理方式 | 全部委託 | 管理会社 | 東京建物アメニティサポート |
| 管理人 | 日勤 | 現況 | 空室 |
| 引渡し時期 | 相談 | 固定資産税・ 都市計画税 |
| 構造 | 鉄筋コンクリート造(RC) | 建物階数 | 地上30階 / 地下1階 |
|---|---|---|---|
| 所在階 | 17階 | 総戸数 | 555 戸 |
| 専有面積 | 壁芯 64.15㎡ | バルコニー面積 | 8.65㎡ |
| 間取り | 2LDK | 方角 | 北東 |
| 駐車場 | 確認中 : 27,000円~30,000円/月 | ||
| バイク置き場 | なし | 駐輪場 | 確認中 : 150円~300円/月 |
| ペット | 可 (条件 : 小型犬猫2匹まで・規約有) | 事務所利用 |
| 施工会社 | 五洋建設(株) | 耐震診断 | |
|---|---|---|---|
| 再建築不可 | 既存不適格 | ||
| その他説明事項 | ※登記時の司法書士は売主指定となります。
・インターネット(つなぐネットコミュニケーションズ)
| ||
| その他 |
| 修繕積立金の総額 | 修繕積立金の滞納額 | ||
|---|---|---|---|
| 管理費の滞納額 | 管理組合の借入額 |
| 項目 | リノベーション | 内装完了日 | 2025年11月 |
|---|---|---|---|
| 内容 | ●フローリング新規貼替
|
| 位置 | 角部屋 | 部屋 | LDK15畳以上 / 全居室フローリング |
|---|---|---|---|
| 収納 | キッチン | アイランドキッチン / 食洗機 / ディスポーザー / IH / 浄水器 / システムキッチン | |
| 浴室・トイレ・洗面所 | 浴室乾燥機 / 追い焚き / 温水便座洗浄機 | バルコニー | 2面バルコニー |
| 設備 | 全居室収納あり / 床暖房 / オール電化 / BS / CS / CATV | その他 | リノベーション / リフォーム / R1住宅適合物件 / 瑕疵保険(独自) |
| 構造 | 設備 | 宅配ボックス / トランクルーム / ゲストルーム / エレベーター | |
| セキュリティ | オートロック / モニター付インターホン | 立地・環境 | 始発駅 / スーパーまで5分 / オーシャンビュー / 2沿線以上利用可 |
情報提供日:2026年03月07日 / 次回更新日:2026年03月21日
| 近隣施設 1 | まいばすけっとみなとみらい店 1m |
|---|---|
| 近隣施設 2 | オーケーみなとみらい店 240m |
| 近隣施設 3 | セブンイレブン横浜みなとみらい6丁目店 260m |
| 近隣施設 4 | ローソンけいゆう病院店 440m |
| 近隣施設 5 | ハックドラッグ横浜メディアタワー店 450m |

国土交通大臣(1)第9863号
所属団体名((公社)首都圏不動産公正取引協議会)
◆お問い合わせ対応窓口◆
取引態様:媒介
本サイト運営会社/株式会社FLIE(FLIEエージェント)
東京都中央区京橋1-1-5 セントラルビル3F
免許番号:国土交通大臣(1)第10892号
※売主様が対応可能な場合、直接手続きとなる場合があります。
-----------------------------------------------------------------
創業20年を迎えてリノベーションマンションの供給戸数は4,500戸を超えました。渋谷クロスタワー2階に常設のショールームがあり、弊社が手掛けるリノベ物件の中でも特に人気の高い「カリフォルニアスタイル」「オーガニックスタイル」「ビンテージスタイル」を展示、物件購入からリノベーションまでをサポートするオーダーメイドリノベーションサービスも展開しています。
※売主HPより引用
物件価格
頭金
金利(年)
返済年数
返済総額 円
上記の諸費用が必要となります。
※ このシミュレーションは、あくまでも目安の数値となり、お借り入れを保証するものではありません。
※ 実際の購入・借り入れにあたっては、金融機関でご確認いただくか、「お問い合わせ」よりご相談ください。
※ 諸費用を含めた住宅ローンのご提案も承っておりますので、お気軽にご相談ください。
BrilliaGrandeみなとみらいパークフロントタワー
無料通話番号
不動産取引の新しい常識へ
「買主と売主が自由に安心して直接取引できる不動産プラットフォーム」を目指しています。