























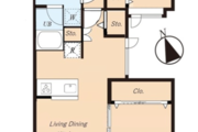
2LDK/52.11㎡
物件価格
3,290万円
仲介手数料:最大104.7万円が不要!
頭金0円で月々万円台よりご購入可能
月々の支払金額
円※ このシミュレーションには、諸費用・管理費・修繕積立金等は含まれておりません。あくまでも目安の数値となり、お借り入れを保証するものではありませんので、
実際の購入・借り入れにあたっては、金融機関でご確認いただくか、「お問い合わせ」よりご相談ください。
管理費 : 15,900円 / 修繕積立金 : 21,470円
投資用
ペット可
事務所可
宅配ボックス
オートロック
新耐震
フラット35S
フラット35
リノベーション
R1住宅
リフォーム
フルスケルトンからのリノベーション!
最寄り駅から徒歩3分の好立地の新耐震基準マンション!
【周辺施設】
■いなげやお花茶屋店 徒歩1分(約80m)
■まいばすけっとお花茶屋店 徒歩3分(約220m)
■区立宝木塚小学校 徒歩8分(約600m)
■区立曳舟川森林公園 徒歩4分(約250m)

京成本線「お花茶屋」駅徒歩3分の好立地。フルスケルトンからのリノベーションで室内は一新され、まるで新築のような空間が広がります。給排水管も新規交換済み、安心の新耐震基準適合マンションです。南東向きで陽当たり良好、スーパーへは徒歩1分と、利便性の高い住環境も魅力です。
室内の照明等を点灯せず、自然光の明るさを計測しております。計測期間の平均値を使用しております。
| 100ルクス以下 | 100~200ルクス | 200~500ルクス | 500~750ルクス | 750ルクス以上 |
|---|---|---|---|---|
人々のさまざまな活動が安全・快適に行える環境を作るために、推奨する照度基準を定めたもので、作業内容や空間の用途に応じて推奨照度が設定されています。JIS照明基準では、200lx(ルクス)をリビングでの団らんや娯楽(軽い読書も含む)に推奨される照度と定めており、200ルクス以上の照度が取れていれば自然光でもリラックスして過ごすことができます。
勉強やPC作業等の作業は750ルクス以上が必要とされており、裁縫等のさらに緻密な作業には1000以上のルクスが推奨されています。
計測期間の平均値を使用しております。
| 70デシベル以上(地下鉄の車内・ 蝉の声) | 60~70デシベル(ファミレス・ コーヒーショップ店内) | 50~60デシベル(書店の店内・ 役所の窓口周辺) | 40~50デシベル(図書館の館内・美術館の館内) | 30~40デシベル(ホテルの室内) |
|---|---|---|---|---|
※参考:環境省
| マンション名 | ライオンズマンションお花茶屋 | 住所 | 東京都葛飾区白鳥1丁目12-10 |
|---|---|---|---|
| 価格 | 3,290万円 購入シミュレーションClose 購入シミュレーション物件価格 3,290万円 仲介手数料:最大104.7万円が不要! 頭金 03,290 金利(年) 05.000 返済年数 145 借入金額 万円 月々の支払金額 円 返済総額 円 諸費用概算 約万円 上記の諸費用が必要となります。 ※ 借入条件を(物件価格、期間35年)で算出。 ※ 借地権の際は誤差が生じます。 ※ このシミュレーションは、あくまでも目安の数値となり、お借り入れを保証するものではありません。 | 土地権利 | 所有権 |
| 交通 | 京成電鉄本線 お花茶屋駅 まで 徒歩 3 分 東急東横線 自由が丘駅 まで 徒歩 14 分 | 用途地域 | 工業地域 |
| 築年月 | 1986年04月(築40年) | ||
| 管理費 | 15,900円 | 修繕積立金 | 21,470円 |
| その他費用 | |||
| 管理方式 | 全部委託 | 管理会社 | 株式会社大京アステージ |
| 管理人 | 日勤 | 現況 | 空室 |
| 引渡し時期 | 相談 | 固定資産税・ 都市計画税 |
| 構造 | 鉄筋コンクリート造(RC) | 建物階数 | 地上6階 |
|---|---|---|---|
| 所在階 | 2階 | 総戸数 | 22 戸 |
| 専有面積 | 壁芯 52.11㎡ | バルコニー面積 | 7.88㎡ |
| 間取り | 2LDK | 方角 | 南東 |
| 駐車場 | 確認中 : 月額12,00円 | ||
| バイク置き場 | 確認中 | 駐輪場 | 確認中 : 無償 |
| ペット | 不可 | 事務所利用 |
| 施工会社 | 協和建設(株) | 耐震診断 | |
|---|---|---|---|
| 再建築不可 | 既存不適格 | ||
| その他説明事項 | ※司法書士は売主指定となります。
| ||
| その他 |
| 修繕積立金の総額 | 修繕積立金の滞納額 | ||
|---|---|---|---|
| 管理費の滞納額 | 管理組合の借入額 |
| 項目 | リノベーション | 内装完了日 | 2025年11月(下旬) |
|---|---|---|---|
| 内容 | ■フルスケルトンからのリノベーション
|
| 位置 | 部屋 | 全居室フローリング | |
|---|---|---|---|
| 収納 | キッチン | カウンターキッチン / 浄水器 / システムキッチン | |
| 浴室・トイレ・洗面所 | 浴室乾燥機 / 温水便座洗浄機 | バルコニー | |
| 設備 | その他 | リノベーション / リフォーム | |
| 構造 | 新耐震基準 | 設備 | エレベーター |
| セキュリティ | 立地・環境 | スーパーまで5分 |

東京都知事(4)第89884号
所属団体名((公社)首都圏不動産公正取引協議会)
◆お問い合わせ対応窓口◆
取引態様:媒介
本サイト運営会社/株式会社FLIE(FLIEエージェント)
東京都中央区京橋1-1-5 セントラルビル3F
免許番号:国土交通大臣(1)第10892号
※売主様が対応可能な場合、直接手続きとなる場合があります。
-------------------------------------------------------
「リナート(rinato)」とはイタリア語で「生まれ変わった」という意味の語。
「中古不動産をリノベーションにより生まれ変わらせ住宅としての価値を新生させる会社」を表現しています。
リノベーションとは、広義でのリフォームというカテゴリーのなかで「住宅の性能を見極めたうえで、劣化部分のリフレッシュや、住宅としての価値の新生を目指すもの」といわれています。
※売主HPより引用
物件価格
仲介手数料:最大104.7万円が不要!
頭金
金利(年)
返済年数
返済総額 円
上記の諸費用が必要となります。
※ このシミュレーションは、あくまでも目安の数値となり、お借り入れを保証するものではありません。
※ 実際の購入・借り入れにあたっては、金融機関でご確認いただくか、「お問い合わせ」よりご相談ください。
※ 諸費用を含めた住宅ローンのご提案も承っておりますので、お気軽にご相談ください。
ライオンズマンションお花茶屋
無料通話番号
不動産取引の新しい常識へ
「買主と売主が自由に安心して直接取引できる不動産プラットフォーム」を目指しています。