





























2LDK/45.36㎡
物件価格
3,380万円
仲介手数料:最大107.4万円が不要!
頭金0円で月々万円台よりご購入可能
月々の支払金額
円※ このシミュレーションには、諸費用・管理費・修繕積立金等は含まれておりません。あくまでも目安の数値となり、お借り入れを保証するものではありませんので、
実際の購入・借り入れにあたっては、金融機関でご確認いただくか、「お問い合わせ」よりご相談ください。
管理費 : 17,790円 / 修繕積立金 : 2,340円 / その他費用 : 特別修繕積立金 月額10,000円、CATV利用料 月額315円
投資用
ペット可
事務所可
宅配ボックス
オートロック
新耐震
フラット35S
フラット35
リノベーション
R1住宅
リフォーム
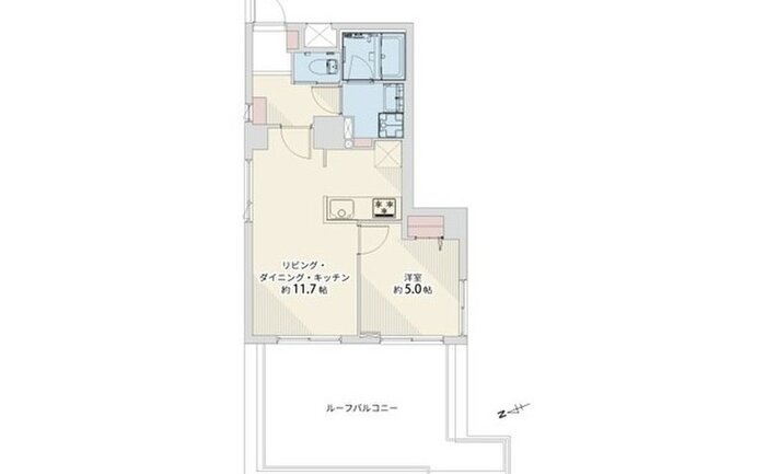
4路線6駅利用可能、三方角部屋、眺望良好
室内はフルリノベーション済

日比谷線「入谷」駅徒歩5分。4路線利用可能な交通至便な立地です。陽当たり・通風・眺望に恵まれた、開放的な南東向きの三方角部屋。室内はフルリノベーションにより新築のように美しく一新されました。食洗機や浴室乾燥機、WICなど、暮らしを豊かにする最新設備が充実。快適な新生活をここから。
室内の照明等を点灯せず、自然光の明るさを計測しております。計測期間の平均値を使用しております。
| 100ルクス以下 | 100~200ルクス | 200~500ルクス | 500~750ルクス | 750ルクス以上 |
|---|---|---|---|---|
人々のさまざまな活動が安全・快適に行える環境を作るために、推奨する照度基準を定めたもので、作業内容や空間の用途に応じて推奨照度が設定されています。JIS照明基準では、200lx(ルクス)をリビングでの団らんや娯楽(軽い読書も含む)に推奨される照度と定めており、200ルクス以上の照度が取れていれば自然光でもリラックスして過ごすことができます。
勉強やPC作業等の作業は750ルクス以上が必要とされており、裁縫等のさらに緻密な作業には1000以上のルクスが推奨されています。
計測期間の平均値を使用しております。
| 70デシベル以上(地下鉄の車内・ 蝉の声) | 60~70デシベル(ファミレス・ コーヒーショップ店内) | 50~60デシベル(書店の店内・ 役所の窓口周辺) | 40~50デシベル(図書館の館内・美術館の館内) | 30~40デシベル(ホテルの室内) |
|---|---|---|---|---|
※参考:環境省
| マンション名 | バルミー竜泉 | 住所 | 東京都台東区竜泉1丁目28-6 |
|---|---|---|---|
| 価格 | 3,380万円 購入シミュレーションClose 購入シミュレーション物件価格 3,380万円 仲介手数料:最大107.4万円が不要! 頭金 03,380 金利(年) 05.000 返済年数 145 借入金額 万円 月々の支払金額 円 返済総額 円 諸費用概算 約万円 上記の諸費用が必要となります。 ※ 借入条件を(物件価格、期間35年)で算出。 ※ 借地権の際は誤差が生じます。 ※ このシミュレーションは、あくまでも目安の数値となり、お借り入れを保証するものではありません。 | 土地権利 | 所有権 |
| 交通 | 東京地下鉄日比谷線 入谷駅 まで 徒歩 5 分 東京地下鉄日比谷線 三ノ輪駅 まで 徒歩 9 分 山手線 鶯谷駅 まで 徒歩 15 分 | 用途地域 | 商業地域 |
| 築年月 | 1980年10月(築46年) | ||
| 管理費 | 17,790円 | 修繕積立金 | 2,340円 |
| その他費用 | 特別修繕積立金 月額10,000円、CATV利用料 月額315円 | ||
| 取引形態 | 売主 | ||
| 管理方式 | 全部委託 | 管理会社 | 日本ハウズイング㈱ |
| 管理人 | 日勤 | 現況 | 空室 |
| 引渡し時期 | 即時 (2026年02月) | 固定資産税・ 都市計画税 |
| 構造 | 鉄骨鉄筋コンクリート造(SRC) | 建物階数 | 地上12階 |
|---|---|---|---|
| 所在階 | 5階 | 総戸数 | 23 戸 |
| 専有面積 | 壁芯 45.36㎡ | バルコニー面積 | 7.29㎡ |
| 間取り | 2LDK | 方角 | 南東 |
| 駐車場 | なし | ||
| バイク置き場 | なし | 駐輪場 | あり(空有) |
| ペット | 不可 | 事務所利用 | 不可 |
| 施工会社 | ㈱熊谷組 | 耐震診断 | 有 |
|---|---|---|---|
| 再建築不可 | 該当しない | 既存不適格 | |
| その他説明事項 | ※図面と現況が異なる場合は、現況を優先させていただきます。
| ||
| その他 |
| 修繕積立金の総額 | 修繕積立金の滞納額 | ||
|---|---|---|---|
| 管理費の滞納額 | 管理組合の借入額 |
| 項目 | リノベーション | 内装完了日 | 2026年01月(下旬) |
|---|---|---|---|
| 内容 | キッチン交換/浴室交換/洗面交換/トイレ交換//フローリング新規張替/建具交換/照明交換/給湯器(追焚機能)交換/下足入/全クロス張替/ハウスクリーニング等 |
| 位置 | 角部屋 | 部屋 | |
|---|---|---|---|
| 収納 | WICあり | キッチン | 食洗機 / 浄水器 / システムキッチン / 2口コンロ |
| 浴室・トイレ・洗面所 | 浴室乾燥機 / 追い焚き / 温水便座洗浄機 / 三面鏡 / シャワー付洗面台 | バルコニー | |
| 設備 | CATV | その他 | リノベーション |
| 構造 | 設備 | ||
| セキュリティ | モニター付インターホン | 立地・環境 | 駅まで平坦 / 2沿線以上利用可 |
情報提供日:2026年02月28日 / 次回更新日:2026年03月14日
| 近隣施設 1 | まいばすけっと 竜泉1丁目店 160m |
|---|---|
| 近隣施設 2 | いなげや 入谷店 400m |
| 近隣施設 3 | 業務用スーパー 河内屋寺島店 400m |
| 近隣施設 4 | ココスナカムラ 入谷店 700m |
| 近隣施設 5 | 東盛公園 160m |

東京都知事(10)第46583号
所属団体名((公社)東京都宅地建物取引協会)
◇お問い合わせ窓口◇
株式会社 昭和エステート
東京都千代田区神田神保町2-7-12 昭和ビル8F
免許番号:東京都知事(9)第46583号
‐‐‐‐---------------------------------------------------------------
設立から40年以上不動産業をしており、従業員も年齢層が幅広く様々な角度から不動産のご提案・ご解決が可能でございます。
不動産のご紹介・住宅ローンのご相談・リノベーションご提案など、お困りであればお気軽にご相談ください。
物件価格
仲介手数料:最大107.4万円が不要!
頭金
金利(年)
返済年数
返済総額 円
上記の諸費用が必要となります。
※ このシミュレーションは、あくまでも目安の数値となり、お借り入れを保証するものではありません。
※ 実際の購入・借り入れにあたっては、金融機関でご確認いただくか、「お問い合わせ」よりご相談ください。
※ 諸費用を含めた住宅ローンのご提案も承っておりますので、お気軽にご相談ください。
バルミー竜泉
無料通話番号
不動産取引の新しい常識へ
「買主と売主が自由に安心して直接取引できる不動産プラットフォーム」を目指しています。