



◆◇◆ 年末年始のお知らせ ◆◇◆
日頃よりご利用いただきありがとうございます。
FLIE(フリエ)では、年末年始休暇の期間を以下の通りとさせていただきます。
ご不便をお掛け致しますが、何卒ご了承くださいますようお願い申し上げます。
■年末年始休業期間
2025年12月27日(土)から2026年1月4日(日)まで
※2025年1月5日(月)10:00より通常営業とさせていただきます。
年末年始休暇期間中にいただきましたお問い合わせにつきましては、2026年1月5日(月)より順次ご連絡させていただきます。
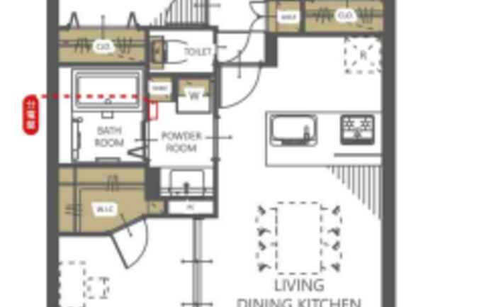
3LDK + W+専用庭/79.79㎡
物件価格
3,199万円
仲介手数料:最大101.9万円が不要!
頭金0円で月々万円台よりご購入可能
月々の支払金額
円※ このシミュレーションには、諸費用・管理費・修繕積立金等は含まれておりません。あくまでも目安の数値となり、お借り入れを保証するものではありませんので、
実際の購入・借り入れにあたっては、金融機関でご確認いただくか、「お問い合わせ」よりご相談ください。
管理費 : 14,200円 / 修繕積立金 : 17,320円 / その他費用 : 月額その他費用:専用庭使用料800円、自治会費300円
投資用
ペット可
事務所可
宅配ボックス
オートロック
新耐震
フラット35S
フラット35
リノベーション
R1住宅
リフォーム
埼京線・武蔵野線、武蔵浦和駅徒歩13分!2路線利用可能で都心へのアクセス◎
内装設備一新のフルリフォーム物件!新築気分でお住まいいただけます‼
◆29㎡の広々とした専用庭付き住戸‼階下を気にせずに暮らせます◎
◆洋室にはウォークインクローゼット1か所新設‼収納設備も充実◎
◆周辺にはスーパー、ホームセンター等の買い物施設が充実◎

武蔵浦和駅徒歩13分!「東急ドエルアルス武蔵浦和」で新生活を始めませんか?79.79㎡の3LDKは、南東向きで陽当り良好!29㎡の専用庭付きで、ガーデニングも楽しめます。フルリフォーム済みで、システムキッチン、浴室乾燥機など設備も充実。周辺にはスーパー、学校も揃っており、子育てファミリーにもおすすめです。お問い合わせお待ちしております!
室内の照明等を点灯せず、自然光の明るさを計測しております。計測期間の平均値を使用しております。
| 100ルクス以下 | 100~200ルクス | 200~500ルクス | 500~750ルクス | 750ルクス以上 |
|---|---|---|---|---|
人々のさまざまな活動が安全・快適に行える環境を作るために、推奨する照度基準を定めたもので、作業内容や空間の用途に応じて推奨照度が設定されています。JIS照明基準では、200lx(ルクス)をリビングでの団らんや娯楽(軽い読書も含む)に推奨される照度と定めており、200ルクス以上の照度が取れていれば自然光でもリラックスして過ごすことができます。
勉強やPC作業等の作業は750ルクス以上が必要とされており、裁縫等のさらに緻密な作業には1000以上のルクスが推奨されています。
計測期間の平均値を使用しております。
| 70デシベル以上(地下鉄の車内・ 蝉の声) | 60~70デシベル(ファミレス・ コーヒーショップ店内) | 50~60デシベル(書店の店内・ 役所の窓口周辺) | 40~50デシベル(図書館の館内・美術館の館内) | 30~40デシベル(ホテルの室内) |
|---|---|---|---|---|
※参考:環境省
| マンション名 | 東急ドエルアルス武蔵浦和 | 住所 | 埼玉県さいたま市南区内谷6丁目7-21 |
|---|---|---|---|
| 価格 | 3,199万円 購入シミュレーションClose 購入シミュレーション物件価格 3,199万円 仲介手数料:最大101.9万円が不要! 頭金 03,199 金利(年) 05.000 返済年数 145 借入金額 万円 月々の支払金額 円 返済総額 円 諸費用概算 約万円 上記の諸費用が必要となります。 ※ 借入条件を(物件価格、期間35年)で算出。 ※ 借地権の際は誤差が生じます。 ※ このシミュレーションは、あくまでも目安の数値となり、お借り入れを保証するものではありません。 | 土地権利 | 所有権 |
| 交通 | 埼京線 武蔵浦和駅 まで 徒歩 13 分 武蔵野線 武蔵浦和駅 まで 徒歩 13 分 | 用途地域 | |
| 築年月 | 1986年09月(築39年) | ||
| 管理費 | 14,200円 | 修繕積立金 | 17,320円 |
| その他費用 | 月額その他費用:専用庭使用料800円、自治会費300円 | ||
| 管理方式 | 全部委託 | 管理会社 | ㈱東急コミュニティー |
| 管理人 | 巡回 | 現況 | 空室 |
| 引渡し時期 | 相談 | 固定資産税・ 都市計画税 |
| 構造 | 鉄筋コンクリート造(RC) | 建物階数 | 地上5階 |
|---|---|---|---|
| 所在階 | 1階 | 総戸数 | 57 戸 |
| 専有面積 | 壁芯 79.79㎡ | バルコニー面積 | |
| 間取り | 3LDK + W+専用庭 | 方角 | 南東 |
| 駐車場 | 確認中 : 8000円/月 | ||
| バイク置き場 | 確認中 | 駐輪場 | 確認中 |
| ペット | 不可 | 事務所利用 |
| 施工会社 | 住友建設㈱ | 耐震診断 | |
|---|---|---|---|
| 再建築不可 | 既存不適格 | ||
| その他説明事項 | 掲載と現況が異なる場合は現況優先します。
| ||
| その他 |
| 修繕積立金の総額 | 修繕積立金の滞納額 | ||
|---|---|---|---|
| 管理費の滞納額 | 管理組合の借入額 |
| 項目 | リフォーム | 内装完了日 | 2025年08月(下旬) |
|---|---|---|---|
| 内容 | 全室クロス張替
|
| 位置 | 部屋 | LDK15畳以上 / 全居室フローリング | |
|---|---|---|---|
| 収納 | WICあり | キッチン | カウンターキッチン / 食洗機 / システムキッチン |
| 浴室・トイレ・洗面所 | 浴室乾燥機 | バルコニー | 2面バルコニー |
| 設備 | テラス / 専用庭 | その他 | リフォーム |
| 構造 | 設備 | ||
| セキュリティ | モニター付インターホン | 立地・環境 |
情報提供日:2025年12月06日 / 次回更新日:2025年12月20日
| 近隣施設 1 | 辻小学校 1000m |
|---|---|
| 近隣施設 2 | 内谷中学校 200m |
| 近隣施設 3 | ベルクス 385m |
| 近隣施設 4 | セブンイレブン 200m |

東京都知事(4)第83810号
公正取引協議会加盟事業者((公社)首都圏不動産公正取引協議会)
◆お問い合わせ対応窓口◆
取引態様:媒介
本サイト運営会社/株式会社FLIE(FLIEエージェント)
東京都中央区京橋1-1-5 セントラルビル3F
免許番号:国土交通大臣(1)第10892号
※売主様が対応可能な場合、直接手続きとなる場合があります。
-----------------------------------------------------------------
【売主事業内容】
芸術的センスをもって事業を創造し(アート)、熟練技術者かのような技能によって事業を磨き(クラフト)、科学者のごときロジックで事業を仕組化する(サイエンス)ことを目指しています。
現在、ACSは従来手掛けてきたディベロップメント事業を継続しながら、リノベーション事業を中核事業へと育成すべく経営資源を傾注しています。
ACSのリノベーション事業が担う役割は、永住に相応しい中古マンションを厳選し、設備とデザインを最適にリフォームし、リーズナブルな価格でお客様に提供することです。
※売主HPより引用
物件価格
仲介手数料:最大101.9万円が不要!
頭金
金利(年)
返済年数
返済総額 円
上記の諸費用が必要となります。
※ このシミュレーションは、あくまでも目安の数値となり、お借り入れを保証するものではありません。
※ 実際の購入・借り入れにあたっては、金融機関でご確認いただくか、「お問い合わせ」よりご相談ください。
※ 諸費用を含めた住宅ローンのご提案も承っておりますので、お気軽にご相談ください。
最近見た物件
東急ドエルアルス武蔵浦和
無料通話番号
不動産取引の新しい常識へ
「買主と売主が自由に安心して直接取引できる不動産プラットフォーム」を目指しています。