



成約済み
| マンション名 | ロイヤルステージ王子神谷 | 住所 | 東京都足立区新田1丁目2-21 |
|---|---|---|---|
| 土地権利 | 所有権 | ||
| 交通 | 東京地下鉄南北線 王子神谷駅 まで 徒歩 10 分 東京地下鉄南北線 志茂駅 まで 徒歩 18 分 京浜東北・根岸線 東十条駅 まで 徒歩 19 分 | 用途地域 | 準工業地域 |
| 築年月 | 1991年12月(築34年) | ||
| 管理費 | 8,800円 | 修繕積立金 | 6,270円 |
| その他費用 | |||
| 管理方式 | 全部委託 | 管理会社 | (株)サニーライフ |
| 管理人 | 巡回 | ||
| 固定資産税・ 都市計画税 |
| 構造 | 鉄筋コンクリート造(RC) | 建物階数 | 地上7階 |
|---|---|---|---|
| 総戸数 | 44 戸 | ||
| 方角 | 南東 | ||
| 駐車場 | なし | ||
| バイク置き場 | 確認中 | 駐輪場 | 確認中 : 2台まで無料、3台目以降:月額200円/台 |
| ペット | 可 (条件 : 相談可(細則有)) | 事務所利用 | 不可 |
| 施工会社 | 耐震診断 | ||
|---|---|---|---|
| 再建築不可 | 既存不適格 | ||
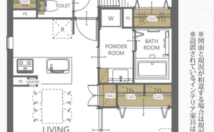
| その他説明事項 | ※掲載と現況が異なる場合は現況優先します。
■ペット:可(鳥類、魚類またはかごに入らない犬猫の飼育は禁止) |
| 修繕積立金の総額 | 修繕積立金の滞納額 | ||
|---|---|---|---|
| 管理費の滞納額 | 管理組合の借入額 |
| 位置 | 部屋 | 全居室フローリング | |
|---|---|---|---|
| 収納 | キッチン | システムキッチン | |
| 浴室・トイレ・洗面所 | 浴室乾燥機 / 追い焚き / 温水便座洗浄機 | バルコニー | |
| 設備 | 全居室収納あり / CATV | その他 | リノベーション済 / リフォーム済 |
| 構造 | 新耐震基準 | 設備 | 宅配ボックス / エレベーター |
| セキュリティ | オートロック / モニター付インターホン | 立地・環境 | 3駅以上利用可 / コンビニまで3分 / 2沿線以上利用可 |
| 近隣施設 1 | イオンスタイル赤羽 1081m |
|---|---|
| 近隣施設 2 | まいばすけっと足立新田2丁目店 584m |
| 近隣施設 3 | ローソン足立新田1丁目店 73m |
| 近隣施設 4 | ウエルシア足立新田店 335m |
| 近隣施設 5 | ニトリ赤羽店 692m |
不動産取引の新しい常識へ
「買主と売主が自由に安心して直接取引できる不動産プラットフォーム」を目指しています。