



成約済み
| マンション名 | 藤和シティコープ志木柏町 | 住所 | 埼玉県志木市柏町3丁目3-52 |
|---|---|---|---|
| 土地権利 | 所有権 | ||
| 交通 | 東武鉄道東上線 柳瀬川駅 まで 徒歩 12 分 東武鉄道東上線 志木駅 まで 徒歩 17 分 | 用途地域 | 第一種中高層住居専用地域 |
| 築年月 | 1994年02月(築31年) | ||
| 管理費 | 13,790円 | 修繕積立金 | 11,390円 |
| その他費用 | ※追記※修繕積立金:7月・12月は追加で30,185円の徴収があります。 | ||
| 管理方式 | 全部委託 | 管理会社 | 三菱地所コミュニティ株式会社 |
| 管理人 | 日勤 | ||
| 固定資産税・ 都市計画税 |
| 構造 | 鉄筋コンクリート造(RC) | 建物階数 | 地上7階 |
|---|---|---|---|
| 総戸数 | 43 戸 | ||
| 方角 | 南東 | ||
| 駐車場 | 確認中 : 5,000~12,000円/月※空き状況は管理会社へご確認ください | ||
| バイク置き場 | なし | 駐輪場 | 確認中 : 400円/月(原則1住戸1台) |
| ペット | 可 (条件 : 犬または猫1匹まで(成長時:体長60cm以下、体高40cm以下)※要申請) | 事務所利用 |
| 施工会社 | 耐震診断 | ||
|---|---|---|---|
| 再建築不可 | 既存不適格 | ||
| その他説明事項 | 管理方式:月~金(8:00~15:00)
|
| 修繕積立金の総額 | 修繕積立金の滞納額 | ||
|---|---|---|---|
| 管理費の滞納額 | 管理組合の借入額 |
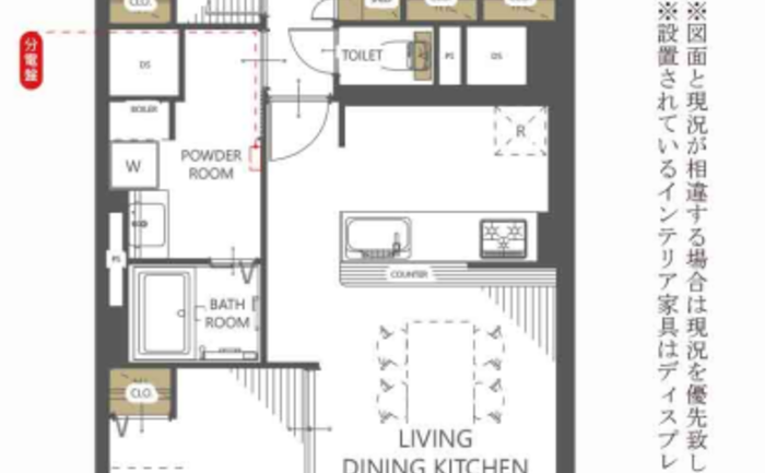
| 位置 | 部屋 | 全居室フローリング | |
|---|---|---|---|
| 収納 | キッチン | 食洗機 / 浄水器 / システムキッチン / 3口以上コンロ | |
| 浴室・トイレ・洗面所 | 浴室乾燥機 / 追い焚き / 浴室1216サイズ / 温水便座洗浄機 | バルコニー | |
| 設備 | 全居室収納あり | その他 | リフォーム済 |
| 構造 | 新耐震基準 | 設備 | |
| セキュリティ | 立地・環境 | 学校まで5分 |
| 近隣施設 1 | 志木第三小学校 150m |
|---|---|
| 近隣施設 2 | 志木中学校 400m |
| 近隣施設 3 | セブンイレブン 650m |
| 近隣施設 4 | いなげや(スーパー) 650m |
| 近隣施設 5 | ビバホーム 650m |
不動産取引の新しい常識へ
「買主と売主が自由に安心して直接取引できる不動産プラットフォーム」を目指しています。