FLIE運営事務局: 0120-99-0107

成約済み

ドラゴンマンション立川壱番館

近隣の物件


物件情報
マンション名ドラゴンマンション立川壱番館住所東京都立川市上砂町5丁目69-18
土地権利所有権
交通西武鉄道拝島線 武蔵砂川駅 まで 徒歩 8 分
用途地域工業地域
築年月1997年10月(築29年)
管理費13,100円修繕積立金18,500円
その他費用専用庭使用料:月額1,670円
管理方式一部委託管理会社㈲ホームコア・ホームビルサービス
管理人巡回
固定資産税・
都市計画税
構造鉄筋コンクリート造(RC)建物階数地上7階 / 地下1階
総戸数33 戸
方角南東
駐車場確認中 : 月額11,000円
バイク置き場確認中駐輪場確認中
ペット不可事務所利用
施工会社(株)細田工務店耐震診断
再建築不可既存不適格
その他説明事項

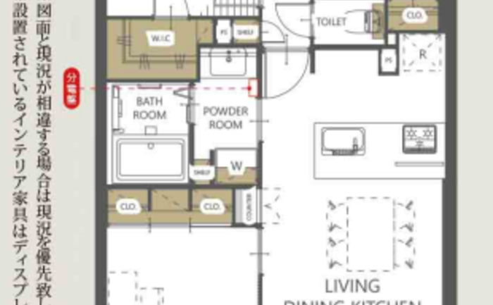
※図面と現況が相違する場合は現況を優先致します。
※設置されているインテリア家具はディスプレイ用になります。
※司法書士売主指定

■専有面積:87.76㎡ ※サービスルーム含む
■専用庭面積:33.40㎡

修繕積立金の総額修繕積立金の滞納額
管理費の滞納額管理組合の借入額

この物件のこだわり / 設備・特徴

位置下階住居なし部屋全居室フローリング
収納納戸ありキッチンカウンターキッチン / システムキッチン / 3口以上コンロ
浴室・トイレ・洗面所浴室乾燥機 / 温水便座洗浄機バルコニー2面バルコニー / 両面バルコニー
設備全居室収納あり / 専用庭 / ポーチその他リノベーション済 / リフォーム済
構造新耐震基準設備エレベーター
セキュリティオートロック立地・環境

共用部の修繕履歴

地図・周辺環境


近隣施設 1立川市立上砂川小学校
630m
近隣施設 2立川市立立川第五中学校
980m
このマンションが欲しいこのマンションを売りたい
上に戻る

不動産取引の新しい常識へ
「買主と売主が自由に安心して直接取引できる不動産プラットフォーム」を目指しています。