

















3LDK/58.99㎡
物件価格
4,490万円
仲介手数料:最大140.7万円が不要!
頭金0円で月々万円台よりご購入可能
月々の支払金額
円※ このシミュレーションには、諸費用・管理費・修繕積立金等は含まれておりません。あくまでも目安の数値となり、お借り入れを保証するものではありませんので、
実際の購入・借り入れにあたっては、金融機関でご確認いただくか、「お問い合わせ」よりご相談ください。
管理費 : 12,620円 / 修繕積立金 : 14,570円 / その他費用 : CATV使用料:330円/月、管理組合運営協力金(外部所有者のみ):1000円/月、地代:1400円/月
投資用
ペット可
事務所可
宅配ボックス
オートロック
新耐震
フラット35S
フラット35
リノベーション
R1住宅
リフォーム
◆リノベーション物件◆
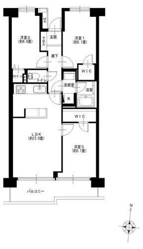
○3駅4路線利用可能!都営新宿線「西大島」駅まで徒歩8分の好立地!
○最上階・南向き!明るく開放感のあるお住まい♪
○同系色の明るいフローリングと建具を合わせた、ナチュラルカラーの内装
○ウォークインクローゼットを2か所新設。キッチンにはカウンター収納もあり、整理しやすい室内です
○猿江恩賜公園まで徒歩5分。四季折々の自然を感じる大型公園でリフレッシュタイムを♪

3駅4路線利用可!「西大島」駅徒歩8分の好立地。陽光あふれる最上階・南向きの3LDKです。室内はフルリノベーションにより、新築のように生まれ変わりました。ウォークインクローゼットを2ヶ所に備え収納も豊富。徒歩5分の猿江恩賜公園で豊かな自然を感じながら、都心での快適な新生活を。スーパーや商業施設も近く、利便性の高い住環境が魅力です。
室内の照明等を点灯せず、自然光の明るさを計測しております。計測期間の平均値を使用しております。
| 100ルクス以下 | 100~200ルクス | 200~500ルクス | 500~750ルクス | 750ルクス以上 |
|---|---|---|---|---|
人々のさまざまな活動が安全・快適に行える環境を作るために、推奨する照度基準を定めたもので、作業内容や空間の用途に応じて推奨照度が設定されています。JIS照明基準では、200lx(ルクス)をリビングでの団らんや娯楽(軽い読書も含む)に推奨される照度と定めており、200ルクス以上の照度が取れていれば自然光でもリラックスして過ごすことができます。
勉強やPC作業等の作業は750ルクス以上が必要とされており、裁縫等のさらに緻密な作業には1000以上のルクスが推奨されています。
計測期間の平均値を使用しております。
| 70デシベル以上(地下鉄の車内・ 蝉の声) | 60~70デシベル(ファミレス・ コーヒーショップ店内) | 50~60デシベル(書店の店内・ 役所の窓口周辺) | 40~50デシベル(図書館の館内・美術館の館内) | 30~40デシベル(ホテルの室内) |
|---|---|---|---|---|
※参考:環境省
| マンション名 | ネオコーポ西大島II | 住所 | 東京都江東区大島2丁目10-17 |
|---|---|---|---|
| 価格 | 4,490万円 購入シミュレーションClose 購入シミュレーション物件価格 4,490万円 仲介手数料:最大140.7万円が不要! 頭金 04,490 金利(年) 05.000 返済年数 145 借入金額 万円 月々の支払金額 円 返済総額 円 諸費用概算 約万円 上記の諸費用が必要となります。 ※ 借入条件を(物件価格、期間35年)で算出。 ※ 借地権の際は誤差が生じます。 ※ このシミュレーションは、あくまでも目安の数値となり、お借り入れを保証するものではありません。 | 土地権利 | 所有権 |
| 交通 | 東京都新宿線 西大島駅 まで 徒歩 8 分 総武・中央緩行線 亀戸駅 まで 徒歩 11 分 東京地下鉄半蔵門線 住吉駅 まで 徒歩 13 分 | 用途地域 | 準工業地域 |
| 築年月 | 1984年11月(築42年) | ||
| 管理費 | 12,620円 | 修繕積立金 | 14,570円 |
| その他費用 | CATV使用料:330円/月、管理組合運営協力金(外部所有者のみ):1000円/月、地代:1400円/月 | ||
| 管理方式 | 全部委託 | 管理会社 | 大和ライフネクスト株式会社 |
| 管理人 | 巡回 | 現況 | 空室 |
| 引渡し時期 | 相談 | 固定資産税・ 都市計画税 |
| 構造 | 鉄筋コンクリート造(RC) | 建物階数 | 地上5階 |
|---|---|---|---|
| 所在階 | 5階 | 総戸数 | 57 戸 |
| 専有面積 | 壁芯 58.99㎡ | バルコニー面積 | 7.59㎡ |
| 間取り | 3LDK | 方角 | 南 |
| 駐車場 | 確認中 : 月額21,000円 | ||
| バイク置き場 | 確認中 : 月額300円 | 駐輪場 | 確認中 : 月額100円~300円 |
| ペット | 不可 | 事務所利用 |
| 施工会社 | 耐震診断 | ||
|---|---|---|---|
| 再建築不可 | 既存不適格 | ||
| その他説明事項 | 掲載と現況が異なる場合は現況優先します。 ◆土地権利/所有権・一部旧法借地権
| ||
| その他 |
| 修繕積立金の総額 | 修繕積立金の滞納額 | ||
|---|---|---|---|
| 管理費の滞納額 | 管理組合の借入額 |
| 項目 | リノベーション | 内装完了日 | 2026年01月 |
|---|---|---|---|
| 内容 | ◆給湯器交換
|
| 位置 | 最上階 | 部屋 | 全居室フローリング |
|---|---|---|---|
| 収納 | WICあり | キッチン | 浄水器 / システムキッチン / 3口以上コンロ |
| 浴室・トイレ・洗面所 | 浴室乾燥機 / 温水便座洗浄機 | バルコニー | |
| 設備 | CATV | その他 | リノベーション / リフォーム / フラット35適用 |
| 構造 | 新耐震基準 | 設備 | エレベーター |
| セキュリティ | モニター付インターホン / 防犯カメラ | 立地・環境 | 3駅以上利用可 / 2沿線以上利用可 |
情報提供日:2026年03月05日 / 次回更新日:2026年03月19日
| 近隣施設 1 | まいばすけっと 江東亀戸1丁目店 600m |
|---|---|
| 近隣施設 2 | ファミリーマート 西大島店 450m |
| 近隣施設 3 | セブンイレブン 江東亀戸1丁目店 600m |
| 近隣施設 4 | くすりの福太郎西大島店 500m |
| 近隣施設 5 | アトレ亀戸 900m |

国土交通大臣(4)第7356号
所属団体名((公社)首都圏不動産公正取引協議会)
◆お問い合わせ対応窓口◆
取引態様:媒介
本サイト運営会社/株式会社FLIE(FLIEエージェント)
東京都中央区京橋1-1-5 セントラルビル3F
免許番号:国土交通大臣(1)第10892号
※売主様が対応可能な場合、直接手続きとなる場合があります。
-----------------------------------------------------------------
新しい住空間の創造を目指した総合住宅ディベロップメント企業である「マイプレイス」は、創業以来”人と地球にやさしい住まい”の追求を企業理念として掲げ、お客様にご満足していただくことを何よりの目標として努力を重ねてまいりました。
~まだ住める家から住みたくなる家へ~
年間800戸を超えるリフォーム実績があり、新築同様の高品質なリノベーションを実現しております。リノベーションマンション累計10,000戸の供給を達成いたしました。
※売主HPより引用
物件価格
仲介手数料:最大140.7万円が不要!
頭金
金利(年)
返済年数
返済総額 円
上記の諸費用が必要となります。
※ このシミュレーションは、あくまでも目安の数値となり、お借り入れを保証するものではありません。
※ 実際の購入・借り入れにあたっては、金融機関でご確認いただくか、「お問い合わせ」よりご相談ください。
※ 諸費用を含めた住宅ローンのご提案も承っておりますので、お気軽にご相談ください。
ネオコーポ西大島II
無料通話番号
不動産取引の新しい常識へ
「買主と売主が自由に安心して直接取引できる不動産プラットフォーム」を目指しています。