



◆◆ GW休暇のお知らせ ◆◆
拝啓 時下ますますご清祥のこととお慶び申し上げます。
平素は格別のお引き立てを賜り厚く御礼申し上げます。
誠に勝手ながら、以下の期間を休業とさせていただきます。
****************************************
ゴールデンウィーク休暇期間
2026年5月2日(土)~2026年5月6日(水)
****************************************
※休業期間中にお問い合わせいただきました件に関しては、
2026年5月7日(木)より順次ご対応させていただきます。
ご迷惑をお掛けいたしますが、何卒ご了承くださいますよう宜しくお願い申し上げます。
敬具
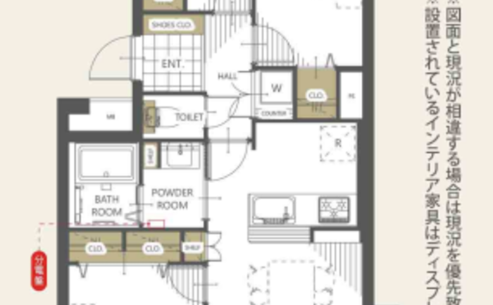
3LDK + 専用庭+テラス/60.96㎡
R1住宅 (適合リノベーション住宅) は、リノベーション協議会が定める「検査→工事→開示→保証→住宅履歴」の5つのフローに則ったリノベーションの統一規格です。
住宅のタイプ別に基準を設け、給排水や下地など目に見えない、分かりにくい重要なインフラ部分の検査 + 2年以上の保証、住宅履歴などを義務としています。
物件価格
3,399万円
仲介手数料:最大107.9万円が不要!
頭金0円で月々万円台よりご購入可能
月々の支払金額
円※ このシミュレーションには、諸費用・管理費・修繕積立金等は含まれておりません。あくまでも目安の数値となり、お借り入れを保証するものではありませんので、
実際の購入・借り入れにあたっては、金融機関でご確認いただくか、「お問い合わせ」よりご相談ください。
管理費 : 15,100円 / 修繕積立金 : 9,750円 / その他費用 : 専用庭使用料:450円/月
投資用
ペット可
事務所可
宅配ボックス
オートロック
新耐震
フラット35S
フラット35
リノベーション
R1住宅
リフォーム
相模大野駅徒歩7分、町田駅徒歩14分と2駅4路線利用可
陽当たりも良好!
計約23.40㎡の広々テラス・専用庭付き!
ペット2匹迄飼育可!(細則有)
◆対面式オープンキッチンには人造大理石天板・シームレスシンクを採用!機能充実!
◆居室整形や浴室1416サイズアップ等、間取変更!給配水管交換も済み!
◆アフター設備保証・瑕疵保険付で安心の新生活!新規エアコン1台・照明付!

相模大野駅徒歩10分、町田駅も利用できる2駅4路線利用可の好立地。室内はフルリノベーションを施し、新築同様の空間です。南西向きの明るいリビングから続く広々とした専用庭では、ペット(2匹迄可)とのびのび過ごしたり、ガーデニングも楽しめます。階下への音を気にせず暮らせる1階住戸。食洗機や浴室乾燥機など最新設備も充実しています。
室内の照明等を点灯せず、自然光の明るさを計測しております。計測期間の平均値を使用しております。
| 100ルクス以下 | 100~200ルクス | 200~500ルクス | 500~750ルクス | 750ルクス以上 |
|---|---|---|---|---|
人々のさまざまな活動が安全・快適に行える環境を作るために、推奨する照度基準を定めたもので、作業内容や空間の用途に応じて推奨照度が設定されています。JIS照明基準では、200lx(ルクス)をリビングでの団らんや娯楽(軽い読書も含む)に推奨される照度と定めており、200ルクス以上の照度が取れていれば自然光でもリラックスして過ごすことができます。
勉強やPC作業等の作業は750ルクス以上が必要とされており、裁縫等のさらに緻密な作業には1000以上のルクスが推奨されています。
計測期間の平均値を使用しております。
| 70デシベル以上(地下鉄の車内・ 蝉の声) | 60~70デシベル(ファミレス・ コーヒーショップ店内) | 50~60デシベル(書店の店内・ 役所の窓口周辺) | 40~50デシベル(図書館の館内・美術館の館内) | 30~40デシベル(ホテルの室内) |
|---|---|---|---|---|
※参考:環境省
| マンション名 | ライオンズガーデン相模大野 | 住所 | 神奈川県相模原市南区上鶴間本町4丁目45-18 |
|---|---|---|---|
| 価格 | 3,399万円 購入シミュレーションClose 購入シミュレーション物件価格 3,399万円 仲介手数料:最大107.9万円が不要! 頭金 03,399 金利(年) 05.000 返済年数 145 借入金額 万円 月々の支払金額 円 返済総額 円 諸費用概算 約万円 上記の諸費用が必要となります。 ※ 借入条件を(物件価格、期間35年)で算出。 ※ 借地権の際は誤差が生じます。 ※ このシミュレーションは、あくまでも目安の数値となり、お借り入れを保証するものではありません。 | 土地権利 | 所有権 |
| 交通 | 小田急電鉄小田原線 相模大野駅 まで 徒歩 10 分 横浜線 町田駅 まで 徒歩 14 分 | 用途地域 | 第一種中高層住居専用地域 |
| 築年月 | 1995年12月(築31年) | ||
| 管理費 | 15,100円 | 修繕積立金 | 9,750円 |
| その他費用 | 専用庭使用料:450円/月 | ||
| 管理方式 | 全部委託 | 管理会社 | ㈱大京アステージ |
| 管理人 | 巡回 | 現況 | 空室 |
| 引渡し時期 | 相談 | 固定資産税・ 都市計画税 |
| 構造 | 鉄筋コンクリート造(RC) | 建物階数 | 地上6階 |
|---|---|---|---|
| 所在階 | 1階 | 総戸数 | 40 戸 |
| 専有面積 | 壁芯 60.96㎡ | バルコニー面積 | |
| 間取り | 3LDK + 専用庭+テラス | 方角 | 南西 |
| 駐車場 | 確認中 : 11,000円/月 | ||
| バイク置き場 | 確認中 | 駐輪場 | 確認中 |
| ペット | 可 (条件 : 犬・猫の飼育可、細則有) | 事務所利用 |
| 施工会社 | 日産建設㈱ | 耐震診断 | |
|---|---|---|---|
| 再建築不可 | 既存不適格 | ||
| その他説明事項 | ※室内一部既存利用設備がございますのでご了承ください。
●テラス面積:8.4㎡
| ||
| その他 |
| 修繕積立金の総額 | 修繕積立金の滞納額 | ||
|---|---|---|---|
| 管理費の滞納額 | 管理組合の借入額 |
| 項目 | リノベーション | 内装完了日 | 2025年12月(上旬) |
|---|---|---|---|
| 内容 | 全室クロス張替
|
| 位置 | 下階住居なし | 部屋 | 全居室フローリング |
|---|---|---|---|
| 収納 | キッチン | カウンターキッチン / 食洗機 / システムキッチン | |
| 浴室・トイレ・洗面所 | 浴室乾燥機 / 追い焚き / 温水便座洗浄機 | バルコニー | |
| 設備 | 全居室収納あり / テラス / 専用庭 | その他 | リノベーション / リフォーム / R1住宅適合物件 / フラット35適用 |
| 構造 | 新耐震基準 | 設備 | エレベーター |
| セキュリティ | オートロック / モニター付インターホン / 防犯カメラ | 立地・環境 | 学校まで5分 / 2沿線以上利用可 |

東京都知事(5)第83810号
所属団体名((公社)首都圏不動産公正取引協議会)
◆お問い合わせ対応窓口◆
取引態様:媒介
本サイト運営会社/株式会社FLIE(FLIEエージェント)
東京都中央区京橋1-1-5 セントラルビル3F
免許番号:国土交通大臣(1)第10892号
※売主様が対応可能な場合、直接手続きとなる場合があります。
-----------------------------------------------------------------
【売主事業内容】
芸術的センスをもって事業を創造し(アート)、熟練技術者かのような技能によって事業を磨き(クラフト)、科学者のごときロジックで事業を仕組化する(サイエンス)ことを目指しています。
現在、ACSは従来手掛けてきたディベロップメント事業を継続しながら、リノベーション事業を中核事業へと育成すべく経営資源を傾注しています。
ACSのリノベーション事業が担う役割は、永住に相応しい中古マンションを厳選し、設備とデザインを最適にリフォームし、リーズナブルな価格でお客様に提供することです。
※売主HPより引用
物件価格
仲介手数料:最大107.9万円が不要!
頭金
金利(年)
返済年数
返済総額 円
上記の諸費用が必要となります。
※ このシミュレーションは、あくまでも目安の数値となり、お借り入れを保証するものではありません。
※ 実際の購入・借り入れにあたっては、金融機関でご確認いただくか、「お問い合わせ」よりご相談ください。
※ 諸費用を含めた住宅ローンのご提案も承っておりますので、お気軽にご相談ください。
ライオンズガーデン相模大野
無料通話番号
不動産取引の新しい常識へ
「買主と売主が自由に安心して直接取引できる不動産プラットフォーム」を目指しています。