



























◆◇◆ 年末年始のお知らせ ◆◇◆
日頃よりご利用いただきありがとうございます。
FLIE(フリエ)では、年末年始休暇の期間を以下の通りとさせていただきます。
ご不便をお掛け致しますが、何卒ご了承くださいますようお願い申し上げます。
■年末年始休業期間
2025年12月27日(土)から2026年1月4日(日)まで
※2025年1月5日(月)10:00より通常営業とさせていただきます。
年末年始休暇期間中にいただきましたお問い合わせにつきましては、2026年1月5日(月)より順次ご連絡させていただきます。
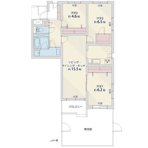
3LDK + W+専用庭/77.54㎡
R1住宅 (適合リノベーション住宅) は、リノベーション協議会が定める「検査→工事→開示→保証→住宅履歴」の5つのフローに則ったリノベーションの統一規格です。
住宅のタイプ別に基準を設け、給排水や下地など目に見えない、分かりにくい重要なインフラ部分の検査 + 2年以上の保証、住宅履歴などを義務としています。
物件価格
1,790万円
仲介手数料:最大59.7万円が不要!
頭金0円で月々万円台よりご購入可能
月々の支払金額
円※ このシミュレーションには、諸費用・管理費・修繕積立金等は含まれておりません。あくまでも目安の数値となり、お借り入れを保証するものではありませんので、
実際の購入・借り入れにあたっては、金融機関でご確認いただくか、「お問い合わせ」よりご相談ください。
管理費 : 13,950円 / 修繕積立金 : 15,500円 / その他費用 : 専用庭使用料 月額1,000円
投資用
ペット可
事務所可
宅配ボックス
オートロック
新耐震
フラット35S
フラット35
リノベーション
R1住宅
リフォーム

仙台市青葉区、国際センター駅徒歩15分、コープ野村中島丁2階部分、77.54㎡の3LDKリノベーション物件。2025年1月下旬内装完了。広々LDKと専用庭で快適な暮らしを実現。システムキッチン、浴室乾燥機、温水洗浄便座など設備も充実。新耐震基準適合で安心。角部屋につき陽当たり良好。詳細はお問い合わせください。
室内の照明等を点灯せず、自然光の明るさを計測しております。計測期間の平均値を使用しております。
| 100ルクス以下 | 100~200ルクス | 200~500ルクス | 500~750ルクス | 750ルクス以上 |
|---|---|---|---|---|
人々のさまざまな活動が安全・快適に行える環境を作るために、推奨する照度基準を定めたもので、作業内容や空間の用途に応じて推奨照度が設定されています。JIS照明基準では、200lx(ルクス)をリビングでの団らんや娯楽(軽い読書も含む)に推奨される照度と定めており、200ルクス以上の照度が取れていれば自然光でもリラックスして過ごすことができます。
勉強やPC作業等の作業は750ルクス以上が必要とされており、裁縫等のさらに緻密な作業には1000以上のルクスが推奨されています。
計測期間の平均値を使用しております。
| 70デシベル以上(地下鉄の車内・ 蝉の声) | 60~70デシベル(ファミレス・ コーヒーショップ店内) | 50~60デシベル(書店の店内・ 役所の窓口周辺) | 40~50デシベル(図書館の館内・美術館の館内) | 30~40デシベル(ホテルの室内) |
|---|---|---|---|---|
※参考:環境省
| マンション名 | コープ野村中島丁 | 住所 | 宮城県仙台市青葉区八幡1丁目10-13 |
|---|---|---|---|
| 価格 | 1,790万円 購入シミュレーションClose 購入シミュレーション物件価格 1,790万円 仲介手数料:最大59.7万円が不要! 頭金 01,790 金利(年) 05.000 返済年数 145 借入金額 万円 月々の支払金額 円 返済総額 円 諸費用概算 約万円 上記の諸費用が必要となります。 ※ 借入条件を(物件価格、期間35年)で算出。 ※ 借地権の際は誤差が生じます。 ※ このシミュレーションは、あくまでも目安の数値となり、お借り入れを保証するものではありません。 | 土地権利 | 所有権 |
| 交通 | 仙台市地下鉄東西線 国際センター駅 まで 徒歩 15 分 仙台市地下鉄東西線 川内駅 まで 徒歩 19 分 仙台市地下鉄南北線 北四番丁駅 まで 徒歩 23 分 | 用途地域 | 第二種中高層住居専用地域 |
| 築年月 | 1984年08月(築41年) | ||
| 管理費 | 13,950円 | 修繕積立金 | 15,500円 |
| その他費用 | 専用庭使用料 月額1,000円 | ||
| 取引形態 | 売主 | ||
| 管理方式 | 一部委託 | 管理会社 | 野村不動産パートナーズ |
| 管理人 | 日勤 | 現況 | 空室 |
| 引渡し時期 | 即時 (2025年12月) | 固定資産税・ 都市計画税 |
| 構造 | 鉄筋コンクリート造(RC) | 建物階数 | 地上8階 |
|---|---|---|---|
| 所在階 | 2階 | 総戸数 | 55 戸 |
| 専有面積 | 壁芯 77.54㎡ | バルコニー面積 | 4.12㎡ |
| 間取り | 3LDK + W+専用庭 | 方角 | 東 |
| 駐車場 | あり(空無) | ||
| バイク置き場 | 駐輪場 | ||
| ペット | 不可 | 事務所利用 | 不可 |
| 施工会社 | 東海興業㈱ | 耐震診断 | |
|---|---|---|---|
| 再建築不可 | 既存不適格 | ||
| その他説明事項 | ・司法書士売主指定
| ||
| その他 |
| 修繕積立金の総額 | 修繕積立金の滞納額 | ||
|---|---|---|---|
| 管理費の滞納額 | 管理組合の借入額 |
| 項目 | リノベーション | 内装完了日 | 2025年01月(下旬) |
|---|---|---|---|
| 内容 | ○内窓(一部) ○給湯器〈台所リモコン付〉 ○節湯水栓
|
| 位置 | 角部屋 | 部屋 | LDK15畳以上 / 全居室フローリング |
|---|---|---|---|
| 収納 | WICあり | キッチン | 浄水器 / 3口以上コンロ |
| 浴室・トイレ・洗面所 | 浴室乾燥機 / 浴室1216サイズ / 温水便座洗浄機 | バルコニー | |
| 設備 | 全居室収納あり / 専用庭 / 省エネ給湯器 | その他 | リノベーション / R1住宅適合物件 / 安心R住宅 |
| 構造 | 新耐震基準 | 設備 | エレベーター |
| セキュリティ | モニター付インターホン / 防犯カメラ | 立地・環境 | 3駅以上利用可 / スーパーまで5分 / 2沿線以上利用可 |

国土交通大臣(5)第6392号
公正取引協議会加盟事業者((一社)リノベーション協議会/(公社)首都圏不動産公正取引協議会/(一社)不動産流通経営協会)
私たちインテリックスは、1995年の設立以降、業界に先駆けて最長20年のアフターサービス保証付リノベーションマンションの販売を行い、
首都圏をはじめ全国主要都市で、年間1000戸を超える供給を行っています。
一つ一つ構造や状況が異なる中古マンションを、細かく測り、検査し、丁寧に施工し、そして保証します。
マンションリノベーションをさらに快適でよいものにしていくために、施工品質と居住性能の追求を日々行い、皆さんに求められるよりよい住まいの提供を行ってまいります。
物件価格
仲介手数料:最大59.7万円が不要!
頭金
金利(年)
返済年数
返済総額 円
上記の諸費用が必要となります。
※ このシミュレーションは、あくまでも目安の数値となり、お借り入れを保証するものではありません。
※ 実際の購入・借り入れにあたっては、金融機関でご確認いただくか、「お問い合わせ」よりご相談ください。
※ 諸費用を含めた住宅ローンのご提案も承っておりますので、お気軽にご相談ください。
最近見た物件
コープ野村中島丁
無料通話番号
不動産取引の新しい常識へ
「買主と売主が自由に安心して直接取引できる不動産プラットフォーム」を目指しています。