

4LDK/86.07㎡
物件価格
2,880万円
仲介手数料:最大92.4万円が不要!
頭金0円で月々万円台よりご購入可能
月々の支払金額
円※ このシミュレーションには、諸費用・管理費・修繕積立金等は含まれておりません。あくまでも目安の数値となり、お借り入れを保証するものではありませんので、
実際の購入・借り入れにあたっては、金融機関でご確認いただくか、「お問い合わせ」よりご相談ください。
管理費 : 13,100円 / 修繕積立金 : 14,420円
投資用
ペット可
事務所可
宅配ボックス
オートロック
新耐震
フラット35S
フラット35
リノベーション
R1住宅
リフォーム
⚫ 南向きのため、日当たり良好♪
⚫ 風通しの良い両面バルコニー!
⚫ 管理体制良好な大規模マンション
アフターサービス保証付
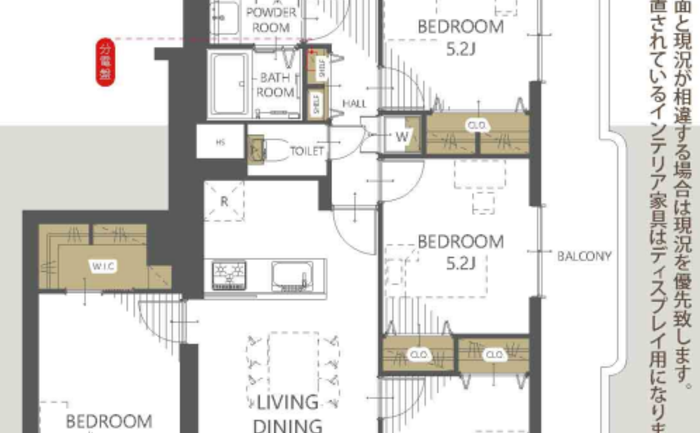
※図面と現況に相違がある場合は、現況優先とさせていただきます

陽光あふれる南向き、風通しの良い両面バルコニーが魅力の4LDK。室内は新規リフォーム済みで、食洗機や浴室乾燥機など暮らしを豊かにする設備が充実しています。ウォークインクローゼットもあり収納豊富。管理体制良好な大規模マンションで、2駅3路線利用可能。スーパーも徒歩5分と、利便性の高い住環境が新生活を支えます。
室内の照明等を点灯せず、自然光の明るさを計測しております。計測期間の平均値を使用しております。
| 100ルクス以下 | 100~200ルクス | 200~500ルクス | 500~750ルクス | 750ルクス以上 |
|---|---|---|---|---|
人々のさまざまな活動が安全・快適に行える環境を作るために、推奨する照度基準を定めたもので、作業内容や空間の用途に応じて推奨照度が設定されています。JIS照明基準では、200lx(ルクス)をリビングでの団らんや娯楽(軽い読書も含む)に推奨される照度と定めており、200ルクス以上の照度が取れていれば自然光でもリラックスして過ごすことができます。
勉強やPC作業等の作業は750ルクス以上が必要とされており、裁縫等のさらに緻密な作業には1000以上のルクスが推奨されています。
計測期間の平均値を使用しております。
| 70デシベル以上(地下鉄の車内・ 蝉の声) | 60~70デシベル(ファミレス・ コーヒーショップ店内) | 50~60デシベル(書店の店内・ 役所の窓口周辺) | 40~50デシベル(図書館の館内・美術館の館内) | 30~40デシベル(ホテルの室内) |
|---|---|---|---|---|
※参考:環境省
| マンション名 | サンライトパストラル弐番街C棟 | 住所 | 千葉県松戸市新松戸6丁目70 |
|---|---|---|---|
| 価格 | 2,880万円 購入シミュレーションClose 購入シミュレーション物件価格 2,880万円 仲介手数料:最大92.4万円が不要! 頭金 02,880 金利(年) 05.000 返済年数 145 借入金額 万円 月々の支払金額 円 返済総額 円 諸費用概算 約万円 上記の諸費用が必要となります。 ※ 借入条件を(物件価格、期間35年)で算出。 ※ 借地権の際は誤差が生じます。 ※ このシミュレーションは、あくまでも目安の数値となり、お借り入れを保証するものではありません。 | 土地権利 | 所有権 |
| 交通 | 千代田・常磐緩行線 新松戸駅 まで 徒歩 17 分 武蔵野線 新松戸駅 まで 徒歩 17 分 流鉄流山線 幸谷駅 まで 徒歩 17 分 | 用途地域 | 第一種中高層住居専用地域 / 第一種住居地域 |
| 築年月 | 1979年02月(築47年) | ||
| 管理費 | 13,100円 | 修繕積立金 | 14,420円 |
| その他費用 | |||
| 管理方式 | 一部委託 | 管理会社 | 東武ビルマネジメント株式会社㈱ |
| 管理人 | 日勤 | 現況 | 空室 |
| 引渡し時期 | 相談 | 固定資産税・ 都市計画税 |
| 構造 | 鉄骨鉄筋コンクリート造(SRC) | 建物階数 | 地上10階 |
|---|---|---|---|
| 所在階 | 6階 | 総戸数 | 140 戸 |
| 専有面積 | 壁芯 86.07㎡ | バルコニー面積 | 11.99㎡ |
| 間取り | 4LDK | 方角 | 南 |
| 駐車場 | 確認中 : 月額8,000円 | ||
| バイク置き場 | 確認中 : 年額3,000円 | 駐輪場 | 確認中 : 年額500円 |
| ペット | 不可 | 事務所利用 |
| 施工会社 | 清水建設㈱ | 耐震診断 | |
|---|---|---|---|
| 再建築不可 | 既存不適格 | ||
| その他説明事項 | ■司法書士は売主指定とさせていただきます
■総棟数:4棟 ■総戸数:508戸 ■C号棟:140戸 | ||
| その他 |
| 修繕積立金の総額 | 修繕積立金の滞納額 | ||
|---|---|---|---|
| 管理費の滞納額 | 管理組合の借入額 |
| 項目 | リフォーム | 内装完了日 | 2026年03月(上旬) |
|---|---|---|---|
| 内容 | システムキッチン(食洗器付)新規交換
|
| 位置 | 部屋 | ||
|---|---|---|---|
| 収納 | WICあり | キッチン | 食洗機 / システムキッチン / 3口以上コンロ |
| 浴室・トイレ・洗面所 | 浴室乾燥機 / 温水便座洗浄機 / 三面鏡 | バルコニー | 2面バルコニー / 両面バルコニー |
| 設備 | その他 | リフォーム | |
| 構造 | 設備 | エレベーター | |
| セキュリティ | 立地・環境 | スーパーまで5分 / 2沿線以上利用可 |

東京都知事(7)第71992号
所属団体名(公益社団法人 全国宅地建物取引業保証協会)
◆お問い合わせ対応窓口◆
取引態様:媒介
本サイト運営会社/株式会社FLIE(FLIEエージェント)
東京都中央区京橋1-1-5 セントラルビル3F
免許番号:国土交通大臣(1)第10892号
※売主様が対応可能な場合、直接手続きとなる場合があります。
-----------------------------------------------------------------
「タウングループ」はお陰様で創立45周年を迎え、お客様のよきパートナーとして、今後もご一緒に歩んで行きたいと思います。
※売主HPより引用
物件価格
仲介手数料:最大92.4万円が不要!
頭金
金利(年)
返済年数
返済総額 円
上記の諸費用が必要となります。
※ このシミュレーションは、あくまでも目安の数値となり、お借り入れを保証するものではありません。
※ 実際の購入・借り入れにあたっては、金融機関でご確認いただくか、「お問い合わせ」よりご相談ください。
※ 諸費用を含めた住宅ローンのご提案も承っておりますので、お気軽にご相談ください。
サンライトパストラル弐番街C棟
無料通話番号
不動産取引の新しい常識へ
「買主と売主が自由に安心して直接取引できる不動産プラットフォーム」を目指しています。