

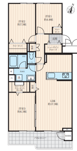
3LDK + WIC+SIC/80.77㎡
物件価格
2,998万円
仲介手数料:最大95.9万円が不要!
頭金0円で月々万円台よりご購入可能
月々の支払金額
円※ このシミュレーションには、諸費用・管理費・修繕積立金等は含まれておりません。あくまでも目安の数値となり、お借り入れを保証するものではありませんので、
実際の購入・借り入れにあたっては、金融機関でご確認いただくか、「お問い合わせ」よりご相談ください。
管理費 : 10,500円 / 修繕積立金 : 7,700円
投資用
ペット可
事務所可
宅配ボックス
オートロック
新耐震
フラット35S
フラット35
リノベーション
R1住宅
リフォーム
新耐震基準×内装フルリノベーション
大規模マンションならではのスケールメリット多数
■3駅3路線が徒歩圏+バス停目の前(聖蹟桜ヶ丘駅行)
■敷地内に公園・広場あり
■緑溢れる閑静な住宅街に立地
■自走式駐車場
■小中学校徒歩圏内
■WIC新設・各居室収納附設
■2026年大規模修繕工事実施予定
■土日も管理員勤務あり
室内の照明等を点灯せず、自然光の明るさを計測しております。計測期間の平均値を使用しております。
| 100ルクス以下 | 100~200ルクス | 200~500ルクス | 500~750ルクス | 750ルクス以上 |
|---|---|---|---|---|
人々のさまざまな活動が安全・快適に行える環境を作るために、推奨する照度基準を定めたもので、作業内容や空間の用途に応じて推奨照度が設定されています。JIS照明基準では、200lx(ルクス)をリビングでの団らんや娯楽(軽い読書も含む)に推奨される照度と定めており、200ルクス以上の照度が取れていれば自然光でもリラックスして過ごすことができます。
勉強やPC作業等の作業は750ルクス以上が必要とされており、裁縫等のさらに緻密な作業には1000以上のルクスが推奨されています。
計測期間の平均値を使用しております。
| 70デシベル以上(地下鉄の車内・ 蝉の声) | 60~70デシベル(ファミレス・ コーヒーショップ店内) | 50~60デシベル(書店の店内・ 役所の窓口周辺) | 40~50デシベル(図書館の館内・美術館の館内) | 30~40デシベル(ホテルの室内) |
|---|---|---|---|---|
※参考:環境省
| マンション名 | グリーンコープ鹿島 | 住所 | 東京都八王子市鹿島22-1 |
|---|---|---|---|
| 価格 | 2,998万円 購入シミュレーションClose 購入シミュレーション物件価格 2,998万円 仲介手数料:最大95.9万円が不要! 頭金 02,998 金利(年) 05.000 返済年数 145 借入金額 万円 月々の支払金額 円 返済総額 円 諸費用概算 約万円 上記の諸費用が必要となります。 ※ 借入条件を(物件価格、期間35年)で算出。 ※ 借地権の際は誤差が生じます。 ※ このシミュレーションは、あくまでも目安の数値となり、お借り入れを保証するものではありません。 | 土地権利 | 所有権 |
| 交通 | 多摩モノレール 松が谷駅 まで 徒歩 5 分 京王電鉄相模原線 京王多摩センター駅 まで 徒歩 10 分 小田急電鉄多摩線 小田急多摩センター駅 まで 徒歩 10 分 | 用途地域 | 第一種中高層住居専用地域 |
| 築年月 | 1983年01月(築42年) | ||
| 管理費 | 10,500円 | 修繕積立金 | 7,700円 |
| その他費用 | |||
| 管理方式 | 一部委託 | 管理会社 | 富士建物管理株式会社 |
| 管理人 | 常駐 | 現況 | 空室 |
| 引渡し時期 | 相談 | 固定資産税・ 都市計画税 | 約88,150円/年額 |
| 構造 | 鉄筋コンクリート造(RC) | 建物階数 | 地上8階 |
|---|---|---|---|
| 所在階 | 1階 | 総戸数 | 167 戸 |
| 専有面積 | 壁芯 80.77㎡ | バルコニー面積 | 9.14㎡ |
| 間取り | 3LDK + WIC+SIC | 方角 | 南東 |
| 駐車場 | 確認中 : 月額6,000円 | ||
| バイク置き場 | 確認中 : 年額100円(2年毎)(登録料1000円) | 駐輪場 | 確認中 : 年額100円(2年毎)(登録料500円) |
| ペット | 不可 | 事務所利用 |
| 施工会社 | 耐震診断 | ||
|---|---|---|---|
| 再建築不可 | 既存不適格 | ||
| その他説明事項 | ※固定資産税・都市計画税:88,150円(令和7年度)
| ||
| その他 |
| 修繕積立金の総額 | 334,195,000円 (マンション全体) | 修繕積立金の滞納額 | |
|---|---|---|---|
| 管理費の滞納額 | 管理組合の借入額 |
| 項目 | リノベーション | 内装完了日 | 2025年11月 |
|---|---|---|---|
| 内容 | ■キッチン(食洗器・浄水器付)
※内装完了日については別途お問い合わせください。 |
| 位置 | 部屋 | 全居室フローリング | |
|---|---|---|---|
| 収納 | WICあり / SICあり | キッチン | カウンターキッチン / 食洗機 / 浄水器 / システムキッチン / 3口以上コンロ |
| 浴室・トイレ・洗面所 | 浴室乾燥機 / 追い焚き | バルコニー | |
| 設備 | 全居室収納あり | その他 | リノベーション / フラット35適用 |
| 構造 | 新耐震基準 | 設備 | 敷地内公園 / エレベーター |
| セキュリティ | 立地・環境 | 3駅以上利用可 / 2沿線以上利用可 |
情報提供日:2025年11月22日 / 次回更新日:2025年12月06日
| 近隣施設 1 | 京王ストア多摩センター店 1000m |
|---|---|
| 近隣施設 2 | セブンイレブン多摩ニュータウン通り店 750m |
| 近隣施設 3 | 八王子市立鹿島小学校 450m |
| 近隣施設 4 | 多摩市立東愛宕中学校 600m |
| 近隣施設 5 | マツモトキヨシ京王多摩センター店 1000m |

国土交通大臣(1)第10661号
公正取引協議会加盟事業者((公社)全日本不動産協会)
◆お問い合わせ対応窓口◆
取引態様:媒介
本サイト運営会社/株式会社FLIE(FLIEエージェント)
東京都中央区京橋1-1-5 セントラルビル3F
免許番号:国土交通大臣 (1) 第10892号
※売主様が対応可能な場合、直接手続きとなる場合があります。
中古マンション・中古戸建をリノベーションを施し、
新たな付加価値を付け販売しております。
これまでの建てては壊すという「スクラップ・アンド・ビルド」から、
既存建物の良いところをリノベーションによって「再生」し、
今の時代に合ったお客様の理想の住宅の供給を行います。
※売主HPより引用
物件価格
仲介手数料:最大95.9万円が不要!
頭金
金利(年)
返済年数
返済総額 円
上記の諸費用が必要となります。
※ このシミュレーションは、あくまでも目安の数値となり、お借り入れを保証するものではありません。
※ 実際の購入・借り入れにあたっては、金融機関でご確認いただくか、「お問い合わせ」よりご相談ください。
※ 諸費用を含めた住宅ローンのご提案も承っておりますので、お気軽にご相談ください。
グリーンコープ鹿島
無料通話番号
不動産取引の新しい常識へ
「買主と売主が自由に安心して直接取引できる不動産プラットフォーム」を目指しています。