

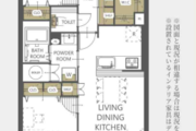
3LDK + WIC/72.42㎡
物件価格
2,490万円
仲介手数料:最大80.7万円が不要!
頭金0円で月々万円台よりご購入可能
月々の支払金額
円※ このシミュレーションには、諸費用・管理費・修繕積立金等は含まれておりません。あくまでも目安の数値となり、お借り入れを保証するものではありませんので、
実際の購入・借り入れにあたっては、金融機関でご確認いただくか、「お問い合わせ」よりご相談ください。
管理費 : 8,000円 / 修繕積立金 : 18,000円 / その他費用 : 特別積立金:200,000円(一括) 専用庭使用料:月額1,000円
■小手指駅徒歩5分圏内
■南東向き日当たり良好
■長期修繕計画有
■アフターサービス保証付き
■24時間365日緊急対応サービス
室内の照明等を点灯せず、自然光の明るさを計測しております。計測期間の平均値を使用しております。
| 100ルクス以下 | 100~200ルクス | 200~500ルクス | 500~750ルクス | 750ルクス以上 |
|---|---|---|---|---|
人々のさまざまな活動が安全・快適に行える環境を作るために、推奨する照度基準を定めたもので、作業内容や空間の用途に応じて推奨照度が設定されています。JIS照明基準では、200lx(ルクス)をリビングでの団らんや娯楽(軽い読書も含む)に推奨される照度と定めており、200ルクス以上の照度が取れていれば自然光でもリラックスして過ごすことができます。
勉強やPC作業等の作業は750ルクス以上が必要とされており、裁縫等のさらに緻密な作業には1000以上のルクスが推奨されています。
計測期間の平均値を使用しております。
| 70デシベル以上(地下鉄の車内・ 蝉の声) | 60~70デシベル(ファミレス・ コーヒーショップ店内) | 50~60デシベル(書店の店内・ 役所の窓口周辺) | 40~50デシベル(図書館の館内・美術館の館内) | 30~40デシベル(ホテルの室内) |
|---|---|---|---|---|
※参考:環境省
| マンション名 | 西武小手指ハイツA棟 | 住所 | 埼玉県所沢市小手指町2丁目2-2 |
|---|---|---|---|
| 価格 | 2,490万円 購入シミュレーションClose 購入シミュレーション物件価格 2,490万円 仲介手数料:最大80.7万円が不要! 頭金 02,490 金利(年) 05.000 返済年数 145 借入金額 万円 月々の支払金額 円 返済総額 円 諸費用概算 約万円 上記の諸費用が必要となります。 ※ 借入条件を(物件価格、期間35年)で算出。 ※ 借地権の際は誤差が生じます。 ※ このシミュレーションは、あくまでも目安の数値となり、お借り入れを保証するものではありません。 | 土地権利 | 所有権 |
| 交通 | 西武池袋・豊島線 小手指駅 まで 徒歩 4 分 | 用途地域 | 第二種住居地域 / 第一種中高層住居専用地域 |
| 築年月 | 1979年12月(築47年) | ||
| 管理費 | 8,000円 | 修繕積立金 | 18,000円 |
| その他費用 | 特別積立金:200,000円(一括) 専用庭使用料:月額1,000円 | ||
| 管理方式 | 全部委託 | 管理会社 | 三興管理㈱ |
| 管理人 | 日勤 | 現況 | 空室 |
| 引渡し時期 | 相談 | 固定資産税・ 都市計画税 |
| 構造 | 鉄骨鉄筋コンクリート造(SRC) | 建物階数 | 地上8階 |
|---|---|---|---|
| 所在階 | 1階 | 総戸数 | 80 戸 |
| 専有面積 | 壁芯 72.42㎡ | バルコニー面積 | 6.09㎡ |
| 間取り | 3LDK + WIC | 方角 | 南東 |
| 駐車場 | 確認中 : 平面:月額6,000円 | ||
| バイク置き場 | 確認中 | 駐輪場 | 確認中 |
| ペット | 不可 | 事務所利用 |
| 施工会社 | 西武建設(株) | 耐震診断 | |
|---|---|---|---|
| 再建築不可 | 既存不適格 | ||
| その他説明事項 | ※図面と現況が異なる場合は、現況を優先させていただきます。
| ||
| その他 |
| 修繕積立金の総額 | 修繕積立金の滞納額 | ||
|---|---|---|---|
| 管理費の滞納額 | 管理組合の借入額 |
| 項目 | リノベーション | 内装完了日 | 2026年02月(下旬) |
|---|---|---|---|
| 内容 | ■新規交換
■新規張替
■その他
※内装完了日については別途お問い合わせください。 |
| 位置 | 部屋 | 全居室フローリング | |
|---|---|---|---|
| 収納 | WICあり | キッチン | カウンターキッチン / システムキッチン |
| 浴室・トイレ・洗面所 | 温水便座洗浄機 | バルコニー | |
| 設備 | 全居室収納あり / 専用庭 | その他 | |
| 構造 | 設備 | エレベーター | |
| セキュリティ | 立地・環境 | スーパーまで5分 |
情報提供日:2026年02月04日 / 次回更新日:2026年02月18日
| 近隣施設 1 | 所沢市立北中小学校 760m |
|---|---|
| 近隣施設 2 | 所沢市立北野中学校 1490m |
| 近隣施設 3 | ファミリーマート小手指2丁目店 340m |
| 近隣施設 4 | ヨークフーズ小手指店 290m |

国土交通大臣(2)第9073号
所属団体名((一社)日本経済団体連合会(経団連)、 (公社)全国宅地建物取引業保証協会、 (一社)リノベーション住宅推進協議会 、(公社)首都圏不動産公正取引協議会)
◆お問い合わせ対応窓口◆
取引態様:媒介
本サイト運営会社/株式会社FLIE(FLIEエージェント)
東京都中央区京橋1-1-5 セントラルビル3F
免許番号:国土交通大臣(1)第10892号
※売主様が対応可能な場合、直接手続きとなる場合があります。
-----------------------------------------------------------------
【売主PR】
全ては"Re"からはじまる。
中古物件再生事業(Reuse)として、リノベーション(Renovation)を施し、サービスを提供する。
本当に良いもの(Real)を、本当の満足度(Repeat)に向けて。
埼玉県を代表する企業として地域に貢献(Return)し、一つ一つの出会いに感謝(Respect)をしていく。
そんな想いを持ち続ける企業であり続けたい。
それがレジデンシャル不動産です。
※売主HPより引用
物件価格
仲介手数料:最大80.7万円が不要!
頭金
金利(年)
返済年数
返済総額 円
上記の諸費用が必要となります。
※ このシミュレーションは、あくまでも目安の数値となり、お借り入れを保証するものではありません。
※ 実際の購入・借り入れにあたっては、金融機関でご確認いただくか、「お問い合わせ」よりご相談ください。
※ 諸費用を含めた住宅ローンのご提案も承っておりますので、お気軽にご相談ください。
西武小手指ハイツA棟
無料通話番号
不動産取引の新しい常識へ
「買主と売主が自由に安心して直接取引できる不動産プラットフォーム」を目指しています。