

1DK/32.36㎡
物件価格
3,399万円
仲介手数料:最大107.9万円が不要!
頭金0円で月々万円台よりご購入可能
月々の支払金額
円※ このシミュレーションには、諸費用・管理費・修繕積立金等は含まれておりません。あくまでも目安の数値となり、お借り入れを保証するものではありませんので、
実際の購入・借り入れにあたっては、金融機関でご確認いただくか、「お問い合わせ」よりご相談ください。
管理費 : 11,970円 / 修繕積立金 : 8,550円
投資用
ペット可
事務所可
宅配ボックス
オートロック
新耐震
フラット35S
フラット35
リノベーション
R1住宅
リフォーム
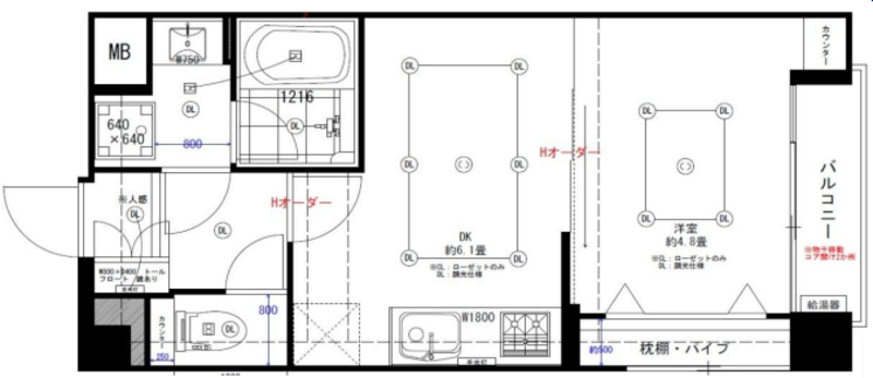
◎「護国寺」駅 徒歩5分・「江戸川橋」駅 徒歩8分、複数駅・路線利用可の好立地!
◎8階部分につき、眺望良好!
◎総戸数31邸×スタック(株)全部委託管理につき管理体制良好!
室内の照明等を点灯せず、自然光の明るさを計測しております。計測期間の平均値を使用しております。
| 100ルクス以下 | 100~200ルクス | 200~500ルクス | 500~750ルクス | 750ルクス以上 |
|---|---|---|---|---|
人々のさまざまな活動が安全・快適に行える環境を作るために、推奨する照度基準を定めたもので、作業内容や空間の用途に応じて推奨照度が設定されています。JIS照明基準では、200lx(ルクス)をリビングでの団らんや娯楽(軽い読書も含む)に推奨される照度と定めており、200ルクス以上の照度が取れていれば自然光でもリラックスして過ごすことができます。
勉強やPC作業等の作業は750ルクス以上が必要とされており、裁縫等のさらに緻密な作業には1000以上のルクスが推奨されています。
計測期間の平均値を使用しております。
| 70デシベル以上(地下鉄の車内・ 蝉の声) | 60~70デシベル(ファミレス・ コーヒーショップ店内) | 50~60デシベル(書店の店内・ 役所の窓口周辺) | 40~50デシベル(図書館の館内・美術館の館内) | 30~40デシベル(ホテルの室内) |
|---|---|---|---|---|
※参考:環境省
| マンション名 | セブンスターマンション護国寺 | 住所 | 東京都文京区音羽1丁目21-9 |
|---|---|---|---|
| 価格 | 3,399万円 購入シミュレーションClose 購入シミュレーション物件価格 3,399万円 仲介手数料:最大107.9万円が不要! 頭金 03,399 金利(年) 05.000 返済年数 145 借入金額 万円 月々の支払金額 円 返済総額 円 諸費用概算 約万円 上記の諸費用が必要となります。 ※ 借入条件を(物件価格、期間35年)で算出。 ※ 借地権の際は誤差が生じます。 ※ このシミュレーションは、あくまでも目安の数値となり、お借り入れを保証するものではありません。 | 土地権利 | 所有権 |
| 交通 | 東京地下鉄有楽町線 護国寺駅 まで 徒歩 5 分 東京地下鉄有楽町線 江戸川橋駅 まで 徒歩 8 分 東京地下鉄丸ノ内線 茗荷谷駅 まで 徒歩 13 分 | 用途地域 | 商業地域 |
| 築年月 | 1976年11月(築49年) | ||
| 管理費 | 11,970円 | 修繕積立金 | 8,550円 |
| その他費用 | |||
| 管理方式 | 全部委託 | 管理会社 | スタック |
| 管理人 | 常駐 | 現況 | 空室 |
| 引渡し時期 | 相談 | 固定資産税・ 都市計画税 |
| 構造 | 鉄骨鉄筋コンクリート造(SRC) | 建物階数 | 地上9階 |
|---|---|---|---|
| 所在階 | 8階 | 総戸数 | 31 戸 |
| 専有面積 | 壁芯 32.36㎡ | バルコニー面積 | 1.99㎡ |
| 間取り | 1DK | 方角 | 東 |
| 駐車場 | なし | ||
| バイク置き場 | なし | 駐輪場 | なし |
| ペット | 不可 | 事務所利用 | 不可 |
| 施工会社 | 木田建設 | 耐震診断 | |
|---|---|---|---|
| 再建築不可 | 既存不適格 | ||
| その他説明事項 | ※図面と現況が異なる場合には現況優先とします。
| ||
| その他 |
| 修繕積立金の総額 | 修繕積立金の滞納額 | ||
|---|---|---|---|
| 管理費の滞納額 | 管理組合の借入額 |
| 項目 | リフォーム | 内装完了日 | 2026年01月(上旬) |
|---|---|---|---|
| 内容 | キッチン:システムキッチン交換 ※浄水器付水栓
※上記内装仕様は変更になる可能性があります。
|
| 位置 | 部屋 | 全居室フローリング | |
|---|---|---|---|
| 収納 | キッチン | 浄水器 / システムキッチン | |
| 浴室・トイレ・洗面所 | 浴室乾燥機 / 追い焚き / 温水便座洗浄機 | バルコニー | |
| 設備 | 全居室収納あり | その他 | リフォーム |
| 構造 | 設備 | 24時間ゴミ / エレベーター | |
| セキュリティ | モニター付インターホン / 24時間セキュリティ / 有人管理 / 防犯カメラ | 立地・環境 | 3駅以上利用可 / スーパーまで5分 / コンビニまで3分 / 2沿線以上利用可 |
情報提供日:2025年11月30日 / 次回更新日:2025年12月14日
| 近隣施設 1 | (ATM)三井住友銀行 音羽出張所 35m |
|---|---|
| 近隣施設 2 | 音羽介護サービス 36m |
| 近隣施設 3 | ローソン 文京音羽一丁目店 40m |
| 近隣施設 4 | 音羽耳鼻咽喉科医院 44m |
| 近隣施設 5 | 友成整形・形成外科 48m |

東京都知事(2)第103710号
公正取引協議会加盟事業者((公社)不動産保証協会、(公社)全日本不動産協会)
◆お問い合わせ対応窓口◆
取引態様:媒介
本サイト運営会社/株式会社FLIE(FLIEエージェント)
東京都中央区京橋1-1-5 セントラルビル3F
免許番号:国土交通大臣(1)第10892号
※売主様が対応可能な場合、直接手続きとなる場合があります。
-----------------------------------------------------------------
株式会社理想デザインは日本一の利用者数を誇る
新宿駅最寄りの不動産会社です。
主に不動産デザイン再生事業、不動産売買、不動産賃貸、不動産コンサルティングなどに特化しております。
エリアは東京都を中心に、神奈川県、埼玉県、千葉県、茨城県、栃木県、群馬県など関東近郊エリアをお取り扱いしております。
当社独自の「情報ネットワーク」「物件査定」「内装プランニング」「販売促進」「交渉」を軸に顧客様と社会のニーズに応えます。
物件価格
仲介手数料:最大107.9万円が不要!
頭金
金利(年)
返済年数
返済総額 円
上記の諸費用が必要となります。
※ このシミュレーションは、あくまでも目安の数値となり、お借り入れを保証するものではありません。
※ 実際の購入・借り入れにあたっては、金融機関でご確認いただくか、「お問い合わせ」よりご相談ください。
※ 諸費用を含めた住宅ローンのご提案も承っておりますので、お気軽にご相談ください。
最近見た物件
セブンスターマンション護国寺
無料通話番号
不動産取引の新しい常識へ
「買主と売主が自由に安心して直接取引できる不動産プラットフォーム」を目指しています。