

◆◇◆ 年末年始のお知らせ ◆◇◆
日頃よりご利用いただきありがとうございます。
FLIE(フリエ)では、年末年始休暇の期間を以下の通りとさせていただきます。
ご不便をお掛け致しますが、何卒ご了承くださいますようお願い申し上げます。
■年末年始休業期間
2025年12月27日(土)から2026年1月4日(日)まで
※2025年1月5日(月)10:00より通常営業とさせていただきます。
年末年始休暇期間中にいただきましたお問い合わせにつきましては、2026年1月5日(月)より順次ご連絡させていただきます。
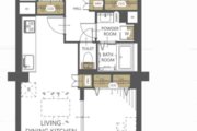
3LDK/68.04㎡
物件価格
2,490万円
仲介手数料:最大80.7万円が不要!
頭金0円で月々万円台よりご購入可能
月々の支払金額
円※ このシミュレーションには、諸費用・管理費・修繕積立金等は含まれておりません。あくまでも目安の数値となり、お借り入れを保証するものではありませんので、
実際の購入・借り入れにあたっては、金融機関でご確認いただくか、「お問い合わせ」よりご相談ください。
管理費 : 8,850円 / 修繕積立金 : 12,200円 / その他費用 : 水道使用料(基本料):月額1,510円
投資用
ペット可
事務所可
宅配ボックス
オートロック
新耐震
フラット35S
フラット35
リノベーション
R1住宅
リフォーム
新規リノベーション物件!令和7年10月上旬完了予定
■全棟総戸数494戸のビッグコミュニティ
■小中学校徒歩10分圈内
■耐震基準適合物件

亀有駅バス19分(約1520m)の「ボナハイツ中川3号棟」2階部分、新規フルリノベーション物件!2025年10月上旬完了予定。広々68.04㎡の3LDK、南向きで陽当り良好!システムキッチン、浴室乾燥機など設備も充実。小学校・中学校も徒歩10分圏内!494戸のビッグコミュニティで安心の暮らし。お問い合わせお待ちしております。
室内の照明等を点灯せず、自然光の明るさを計測しております。計測期間の平均値を使用しております。
| 100ルクス以下 | 100~200ルクス | 200~500ルクス | 500~750ルクス | 750ルクス以上 |
|---|---|---|---|---|
人々のさまざまな活動が安全・快適に行える環境を作るために、推奨する照度基準を定めたもので、作業内容や空間の用途に応じて推奨照度が設定されています。JIS照明基準では、200lx(ルクス)をリビングでの団らんや娯楽(軽い読書も含む)に推奨される照度と定めており、200ルクス以上の照度が取れていれば自然光でもリラックスして過ごすことができます。
勉強やPC作業等の作業は750ルクス以上が必要とされており、裁縫等のさらに緻密な作業には1000以上のルクスが推奨されています。
計測期間の平均値を使用しております。
| 70デシベル以上(地下鉄の車内・ 蝉の声) | 60~70デシベル(ファミレス・ コーヒーショップ店内) | 50~60デシベル(書店の店内・ 役所の窓口周辺) | 40~50デシベル(図書館の館内・美術館の館内) | 30~40デシベル(ホテルの室内) |
|---|---|---|---|---|
※参考:環境省
| マンション名 | ボナハイツ中川3号棟 | 住所 | 東京都足立区大谷田2丁目3-35 |
|---|---|---|---|
| 価格 | 2,490万円 購入シミュレーションClose 購入シミュレーション物件価格 2,490万円 仲介手数料:最大80.7万円が不要! 頭金 02,490 金利(年) 05.000 返済年数 145 借入金額 万円 月々の支払金額 円 返済総額 円 諸費用概算 約万円 上記の諸費用が必要となります。 ※ 借入条件を(物件価格、期間35年)で算出。 ※ 借地権の際は誤差が生じます。 ※ このシミュレーションは、あくまでも目安の数値となり、お借り入れを保証するものではありません。 | 土地権利 | 所有権 |
| 交通 | 千代田・常磐緩行線 亀有駅 バス19分 「中川小学校前(東京都)」バス停より徒歩 7 分 | 用途地域 | 第一種中高層住居専用地域 |
| 築年月 | 1977年09月(築48年) | ||
| 管理費 | 8,850円 | 修繕積立金 | 12,200円 |
| その他費用 | 水道使用料(基本料):月額1,510円 | ||
| 管理方式 | 全部委託 | 管理会社 | 大和ライフネクスト㈱ |
| 管理人 | 日勤 | 現況 | 空室 |
| 引渡し時期 | 相談 | 固定資産税・ 都市計画税 |
| 構造 | 鉄骨鉄筋コンクリート造(SRC) | 建物階数 | 地上14階 |
|---|---|---|---|
| 所在階 | 2階 | 総戸数 | 207 戸 |
| 専有面積 | 壁芯 68.04㎡ | バルコニー面積 | 7.31㎡ |
| 間取り | 3LDK | 方角 | 南 |
| 駐車場 | 確認中 : 平面駐車場/月額13,000円 | ||
| バイク置き場 | 確認中 | 駐輪場 | 確認中 |
| ペット | 不可 | 事務所利用 |
| 施工会社 | (株) 竹中工務店、清水建設(株) | 耐震診断 | |
|---|---|---|---|
| 再建築不可 | 既存不適格 | ||
| その他説明事項 | ※図面と現況が相違する場合は現況を優先致します。
●ポーチ面積/1.37㎡ | ||
| その他 |
| 修繕積立金の総額 | 修繕積立金の滞納額 | ||
|---|---|---|---|
| 管理費の滞納額 | 管理組合の借入額 |
| 項目 | リフォーム | 内装完了日 | 2025年10月(上旬) |
|---|---|---|---|
| 内容 | キッチン 浴室 トイレ 壁 床 全室 フルリノベーション |
| 位置 | 部屋 | 全居室フローリング | |
|---|---|---|---|
| 収納 | キッチン | システムキッチン / 3口以上コンロ | |
| 浴室・トイレ・洗面所 | 浴室乾燥機 / 温水便座洗浄機 | バルコニー | |
| 設備 | 全居室収納あり / ポーチ | その他 | リノベーション / リフォーム |
| 構造 | 設備 | 24時間ゴミ / エレベーター | |
| セキュリティ | モニター付インターホン | 立地・環境 | 学校まで5分 |

国土交通大臣(1)第9073号
公正取引協議会加盟事業者((公社)首都圏不動産公正取引協議会)
◆お問い合わせ対応窓口◆
取引態様:媒介
本サイト運営会社/株式会社FLIE(FLIEエージェント)
東京都中央区京橋1-1-5 セントラルビル3F
免許番号:国土交通大臣(1)第10892号
※売主様が対応可能な場合、直接手続きとなる場合があります。
-----------------------------------------------------------------
【売主PR】
全ては"Re"からはじまる。
中古物件再生事業(Reuse)として、リノベーション(Renovation)を施し、サービスを提供する。
本当に良いもの(Real)を、本当の満足度(Repeat)に向けて。
埼玉県を代表する企業として地域に貢献(Return)し、一つ一つの出会いに感謝(Respect)をしていく。
そんな想いを持ち続ける企業であり続けたい。
それがレジデンシャル不動産です。
※売主HPより引用
物件価格
仲介手数料:最大80.7万円が不要!
頭金
金利(年)
返済年数
返済総額 円
上記の諸費用が必要となります。
※ このシミュレーションは、あくまでも目安の数値となり、お借り入れを保証するものではありません。
※ 実際の購入・借り入れにあたっては、金融機関でご確認いただくか、「お問い合わせ」よりご相談ください。
※ 諸費用を含めた住宅ローンのご提案も承っておりますので、お気軽にご相談ください。
ボナハイツ中川3号棟
無料通話番号
不動産取引の新しい常識へ
「買主と売主が自由に安心して直接取引できる不動産プラットフォーム」を目指しています。