





































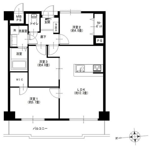
3LDK/57.87㎡
投資用
ペット可
事務所可
宅配ボックス
オートロック
新耐震
フラット35S
フラット35
リノベーション
R1住宅
リフォーム
◆リノベーション物件
◆オートロック・防犯カメラ付マンション
◆2026年4月大規模修繕工事実施済み
◆対面キッチンのため、家族との会話を楽しみながらお料理ができます
◆大容量のウォークインクローゼットを新設
◆百貨店・総合病院・銀行など、生活に便利な東戸塚駅前エリア

「東戸塚」駅徒歩7分の好立地。2026年4月に大規模修繕工事実施済みで管理体制も良好です。室内はフルリノベーションを施し、新築のように快適な空間を実現。大容量のWICを新設し、家族との会話を楽しめる対面キッチンも魅力。イオンまで徒歩2分、百貨店も身近で日々の暮らしを豊かに彩ります。
室内の照明等を点灯せず、自然光の明るさを計測しております。計測期間の平均値を使用しております。
| 100ルクス以下 | 100~200ルクス | 200~500ルクス | 500~750ルクス | 750ルクス以上 |
|---|---|---|---|---|
人々のさまざまな活動が安全・快適に行える環境を作るために、推奨する照度基準を定めたもので、作業内容や空間の用途に応じて推奨照度が設定されています。JIS照明基準では、200lx(ルクス)をリビングでの団らんや娯楽(軽い読書も含む)に推奨される照度と定めており、200ルクス以上の照度が取れていれば自然光でもリラックスして過ごすことができます。
勉強やPC作業等の作業は750ルクス以上が必要とされており、裁縫等のさらに緻密な作業には1000以上のルクスが推奨されています。
計測期間の平均値を使用しております。
| 70デシベル以上(地下鉄の車内・ 蝉の声) | 60~70デシベル(ファミレス・ コーヒーショップ店内) | 50~60デシベル(書店の店内・ 役所の窓口周辺) | 40~50デシベル(図書館の館内・美術館の館内) | 30~40デシベル(ホテルの室内) |
|---|---|---|---|---|
※参考:環境省
| マンション名 | コーラル東戸塚 | 住所 | 神奈川県横浜市戸塚区品濃町534-6 |
|---|---|---|---|
| 価格 | 3,690万円 | 土地権利 | 所有権 |
| 交通 | 横須賀線 東戸塚駅 まで 徒歩 7 分 湘南新宿ライン宇須 東戸塚駅 まで 徒歩 7 分 | 用途地域 | 準住居地域 |
| 築年月 | 1994年06月(築32年) | ||
| 管理費 | 15,600円 | 修繕積立金 | 15,400円 |
| その他費用 | 町内会費:200円/月 | ||
| 管理方式 | 全部委託 | 管理会社 | |
| 管理人 | 巡回 | 現況 | |
| 引渡し時期 | 相談 | 固定資産税・ 都市計画税 |
| 構造 | 鉄筋コンクリート造(RC) | 建物階数 | 地上5階 |
|---|---|---|---|
| 所在階 | 4階 | 総戸数 | 26 戸 |
| 専有面積 | 壁芯 57.87㎡ | バルコニー面積 | 9.27㎡ |
| 間取り | 3LDK | 方角 | 西 |
| 駐車場 | 確認中 : 空無 | ||
| バイク置き場 | 駐輪場 | 確認中 | |
| ペット | 事務所利用 |
| 施工会社 | 耐震診断 | ||
|---|---|---|---|
| 再建築不可 | 既存不適格 | ||
| その他説明事項 | ※司法書士は売主指定です。
| ||
| その他 |
| 修繕積立金の総額 | 修繕積立金の滞納額 | ||
|---|---|---|---|
| 管理費の滞納額 | 管理組合の借入額 |
| 項目 | リノベーション | 内装完了日 | 2026年03月 |
|---|---|---|---|
| 内容 | ■システムキッチン
|
| 位置 | 部屋 | 全居室フローリング | |
|---|---|---|---|
| 収納 | WICあり | キッチン | カウンターキッチン / システムキッチン / 3口以上コンロ |
| 浴室・トイレ・洗面所 | 浴室乾燥機 / 追い焚き / 温水便座洗浄機 / シャワー付洗面台 | バルコニー | |
| 設備 | その他 | リノベーション / リフォーム | |
| 構造 | 設備 | 宅配ボックス / エレベーター | |
| セキュリティ | オートロック / モニター付インターホン / 防犯カメラ | 立地・環境 | スーパーまで5分 / 2沿線以上利用可 |
情報提供日:2026年04月16日 / 次回更新日:2026年04月30日
| 近隣施設 1 | 東戸塚オーロラシティ 120m |
|---|---|
| 近隣施設 2 | イオンスタイル東戸塚 120m |
| 近隣施設 3 | 西武東戸塚S.C 350m |
| 近隣施設 4 | 横浜市立平戸小学校 500m |
| 近隣施設 5 | 横浜市立平戸中学校 950m |

国土交通大臣(4)第7356号
所属団体名((公社)首都圏不動産公正取引協議会)
◆お問い合わせ対応窓口◆
取引態様:媒介
本サイト運営会社/株式会社FLIE(FLIEエージェント)
東京都中央区京橋1-1-5 セントラルビル3F
免許番号:国土交通大臣(1)第10892号
※売主様が対応可能な場合、直接手続きとなる場合があります。
-----------------------------------------------------------------
新しい住空間の創造を目指した総合住宅ディベロップメント企業である「マイプレイス」は、創業以来”人と地球にやさしい住まい”の追求を企業理念として掲げ、お客様にご満足していただくことを何よりの目標として努力を重ねてまいりました。
~まだ住める家から住みたくなる家へ~
年間800戸を超えるリフォーム実績があり、新築同様の高品質なリノベーションを実現しております。リノベーションマンション累計10,000戸の供給を達成いたしました。
※売主HPより引用
コーラル東戸塚
無料通話番号
不動産取引の新しい常識へ
「買主と売主が自由に安心して直接取引できる不動産プラットフォーム」を目指しています。