

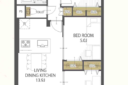
3LDK/71.13㎡
物件価格
6,990万円
仲介手数料:最大215.7万円が不要!
頭金0円で月々万円台よりご購入可能
月々の支払金額
円※ このシミュレーションには、諸費用・管理費・修繕積立金等は含まれておりません。あくまでも目安の数値となり、お借り入れを保証するものではありませんので、
実際の購入・借り入れにあたっては、金融機関でご確認いただくか、「お問い合わせ」よりご相談ください。
管理費 : 7,820円 / 修繕積立金 : 12,925円 / その他費用 : 駐輪場専用使用権2台付:月額500円
投資用
ペット可
事務所可
宅配ボックス
オートロック
新耐震
フラット35S
フラット35
リノベーション
R1住宅
リフォーム
♦新規リノベーション!令和7年6月下旬完了予定
♦西武鉄道新宿線「武蔵関」駅 まで徒歩 2 分
♦総戸数 127戸のビッグコミュニティ
♦南向き・陽当たり良好
♦駐輪場專用使用権2台付(月額500円)
♦フラット対面キッチンで広がる解放感と収納力の充実
♦ダイニング側の引き出しで収納力をしっかり確保
♦トランクルーム付(面積 0.50㎡ 、無償)

武蔵関駅徒歩2分!「ザ・ウインベル練馬武蔵関」3LDK、南向きで陽当たり良好!2025年6月下旬完了予定の新規リノベーション物件。71.13㎡のゆとりある空間、システムキッチン、豊富な収納、トランクルーム付き。スーパー、コンビニも至近で生活便利。ビッグコミュニティの安心感も魅力です。お問い合わせお待ちしております。
室内の照明等を点灯せず、自然光の明るさを計測しております。計測期間の平均値を使用しております。
| 100ルクス以下 | 100~200ルクス | 200~500ルクス | 500~750ルクス | 750ルクス以上 |
|---|---|---|---|---|
人々のさまざまな活動が安全・快適に行える環境を作るために、推奨する照度基準を定めたもので、作業内容や空間の用途に応じて推奨照度が設定されています。JIS照明基準では、200lx(ルクス)をリビングでの団らんや娯楽(軽い読書も含む)に推奨される照度と定めており、200ルクス以上の照度が取れていれば自然光でもリラックスして過ごすことができます。
勉強やPC作業等の作業は750ルクス以上が必要とされており、裁縫等のさらに緻密な作業には1000以上のルクスが推奨されています。
計測期間の平均値を使用しております。
| 70デシベル以上(地下鉄の車内・ 蝉の声) | 60~70デシベル(ファミレス・ コーヒーショップ店内) | 50~60デシベル(書店の店内・ 役所の窓口周辺) | 40~50デシベル(図書館の館内・美術館の館内) | 30~40デシベル(ホテルの室内) |
|---|---|---|---|---|
※参考:環境省
| マンション名 | ザ・ウインベル練馬武蔵関 | 住所 | 東京都練馬区関町北1丁目22-14 |
|---|---|---|---|
| 価格 | 6,990万円 購入シミュレーションClose 購入シミュレーション物件価格 6,990万円 仲介手数料:最大215.7万円が不要! 頭金 06,990 金利(年) 05.000 返済年数 145 借入金額 万円 月々の支払金額 円 返済総額 円 諸費用概算 約万円 上記の諸費用が必要となります。 ※ 借入条件を(物件価格、期間35年)で算出。 ※ 借地権の際は誤差が生じます。 ※ このシミュレーションは、あくまでも目安の数値となり、お借り入れを保証するものではありません。 | 土地権利 | 所有権 |
| 交通 | 西武鉄道新宿線 武蔵関駅 まで 徒歩 2 分 | 用途地域 | 第一種住居地域 / 近隣商業地域 |
| 築年月 | 2000年02月(築25年) | ||
| 管理費 | 7,820円 | 修繕積立金 | 12,925円 |
| その他費用 | 駐輪場専用使用権2台付:月額500円 | ||
| 管理方式 | 全部委託 | 管理会社 | ㈱長谷工コミュニティ |
| 管理人 | 日勤 | 現況 | 空室 |
| 引渡し時期 | 相談 | 固定資産税・ 都市計画税 |
| 構造 | 鉄骨鉄筋コンクリート造(SRC) / 鉄筋コンクリート造(RC) | 建物階数 | 地上11階 |
|---|---|---|---|
| 所在階 | 3階 | 総戸数 | 127 戸 |
| 専有面積 | 壁芯 71.13㎡ | バルコニー面積 | 12.0㎡ |
| 間取り | 3LDK | 方角 | 南 |
| 駐車場 | 確認中 : 平面・機械式駐車場(月額8,000円~17,000円 | ||
| バイク置き場 | 駐輪場 | あり(空有) : 駐輪場専用使用権2台付/月額500円 | |
| ペット | 不可 | 事務所利用 |
| 施工会社 | (株)長谷工コーポレーション | 耐震診断 | |
|---|---|---|---|
| 再建築不可 | 既存不適格 | ||
| その他説明事項 | ※図面と現況が異なる場合は、現況優先となります。
| ||
| その他 |
| 修繕積立金の総額 | 修繕積立金の滞納額 | ||
|---|---|---|---|
| 管理費の滞納額 | 管理組合の借入額 |
| 項目 | リフォーム | 内装完了日 | 2025年06月(下旬) |
|---|---|---|---|
| 内容 | キッチン 浴室 トイレ 壁 床 全室 フルリノベーション |
| 位置 | 部屋 | 全居室フローリング | |
|---|---|---|---|
| 収納 | キッチン | カウンターキッチン / システムキッチン | |
| 浴室・トイレ・洗面所 | 温水便座洗浄機 | バルコニー | |
| 設備 | 全居室収納あり | その他 | リノベーション / リフォーム |
| 構造 | 新耐震基準 | 設備 | トランクルーム / エレベーター |
| セキュリティ | オートロック | 立地・環境 | スーパーまで5分 / コンビニまで3分 |
情報提供日:2025年12月04日 / 次回更新日:2025年12月18日
| 近隣施設 1 | 練馬区立石神井西小学校 500m |
|---|---|
| 近隣施設 2 | 練馬区立石神井西中学校 910m |
| 近隣施設 3 | セブンイレブン練馬関町北1丁目店 110m |
| 近隣施設 4 | アキダイ関町本店 230m |
| 近隣施設 5 | リコス関町北1丁目店 130m |

国土交通大臣(1)第9073号
公正取引協議会加盟事業者((公社)首都圏不動産公正取引協議会)
◆お問い合わせ対応窓口◆
取引態様:媒介
本サイト運営会社/株式会社FLIE(FLIEエージェント)
東京都中央区京橋1-1-5 セントラルビル3F
免許番号:国土交通大臣(1)第10892号
※売主様が対応可能な場合、直接手続きとなる場合があります。
-----------------------------------------------------------------
【売主PR】
全ては"Re"からはじまる。
中古物件再生事業(Reuse)として、リノベーション(Renovation)を施し、サービスを提供する。
本当に良いもの(Real)を、本当の満足度(Repeat)に向けて。
埼玉県を代表する企業として地域に貢献(Return)し、一つ一つの出会いに感謝(Respect)をしていく。
そんな想いを持ち続ける企業であり続けたい。
それがレジデンシャル不動産です。
※売主HPより引用
物件価格
仲介手数料:最大215.7万円が不要!
頭金
金利(年)
返済年数
返済総額 円
上記の諸費用が必要となります。
※ このシミュレーションは、あくまでも目安の数値となり、お借り入れを保証するものではありません。
※ 実際の購入・借り入れにあたっては、金融機関でご確認いただくか、「お問い合わせ」よりご相談ください。
※ 諸費用を含めた住宅ローンのご提案も承っておりますので、お気軽にご相談ください。
最近見た物件
ザ・ウインベル練馬武蔵関
無料通話番号
不動産取引の新しい常識へ
「買主と売主が自由に安心して直接取引できる不動産プラットフォーム」を目指しています。