







































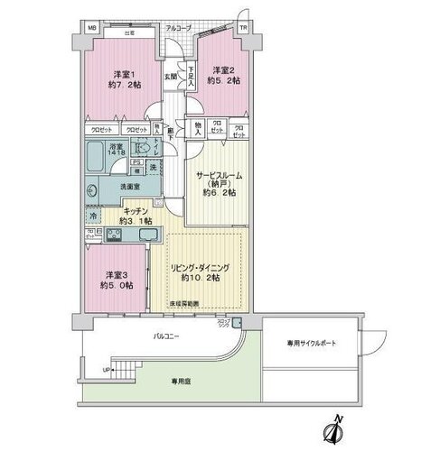
3LDK + S(納戸)+専用庭+専用サークルポート/80.64㎡
物件価格
4,598万円
仲介手数料:最大143.9万円が不要!
頭金0円で月々万円台よりご購入可能
月々の支払金額
円※ このシミュレーションには、諸費用・管理費・修繕積立金等は含まれておりません。あくまでも目安の数値となり、お借り入れを保証するものではありませんので、
実際の購入・借り入れにあたっては、金融機関でご確認いただくか、「お問い合わせ」よりご相談ください。
管理費 : 13,400円 / 修繕積立金 : 12,300円 / その他費用 : 専用庭使用料500円、専用サイクルポート使用料300円、町内会費100円、駐車場維持積立金1,000円
投資用
ペット可
事務所可
宅配ボックス
オートロック
新耐震
フラット35S
フラット35
リノベーション
R1住宅
リフォーム
新規リノベーション×自然と都市機能に囲まれた立地×専用庭付き3SLDK
~おすすめポイント~
・新規リノベーション実施
・80.64平米の3SLDK×専用庭×専用サイクルポート
・四季折々の色彩の変化を感じられる植栽計画
・優れたセキュリティー性能を備えたエントランス

京王線「聖蹟桜ヶ丘」駅へ平坦徒歩9分。新規リノベーション済の80㎡超3LDKが登場。陽光溢れる南東角部屋、1階住戸ならではの専用庭が戸建てのような暮らしを演出します。床暖房や食洗機、浴室乾燥機など先進設備を完備し、快適な毎日をサポート。SICなど収納も充実しており、子育てファミリーにも最適な住環境です。
室内の照明等を点灯せず、自然光の明るさを計測しております。計測期間の平均値を使用しております。
| 100ルクス以下 | 100~200ルクス | 200~500ルクス | 500~750ルクス | 750ルクス以上 |
|---|---|---|---|---|
人々のさまざまな活動が安全・快適に行える環境を作るために、推奨する照度基準を定めたもので、作業内容や空間の用途に応じて推奨照度が設定されています。JIS照明基準では、200lx(ルクス)をリビングでの団らんや娯楽(軽い読書も含む)に推奨される照度と定めており、200ルクス以上の照度が取れていれば自然光でもリラックスして過ごすことができます。
勉強やPC作業等の作業は750ルクス以上が必要とされており、裁縫等のさらに緻密な作業には1000以上のルクスが推奨されています。
計測期間の平均値を使用しております。
| 70デシベル以上(地下鉄の車内・ 蝉の声) | 60~70デシベル(ファミレス・ コーヒーショップ店内) | 50~60デシベル(書店の店内・ 役所の窓口周辺) | 40~50デシベル(図書館の館内・美術館の館内) | 30~40デシベル(ホテルの室内) |
|---|---|---|---|---|
※参考:環境省
| マンション名 | メロディーハイム聖蹟桜ヶ丘 | 住所 | 東京都多摩市関戸3丁目15-1 |
|---|---|---|---|
| 価格 | 4,598万円 購入シミュレーションClose 購入シミュレーション物件価格 4,598万円 仲介手数料:最大143.9万円が不要! 頭金 04,598 金利(年) 05.000 返済年数 145 借入金額 万円 月々の支払金額 円 返済総額 円 諸費用概算 約万円 上記の諸費用が必要となります。 ※ 借入条件を(物件価格、期間35年)で算出。 ※ 借地権の際は誤差が生じます。 ※ このシミュレーションは、あくまでも目安の数値となり、お借り入れを保証するものではありません。 | 土地権利 | 所有権 |
| 交通 | 京王電鉄京王線 聖蹟桜ヶ丘駅 まで 徒歩 9 分 | 用途地域 | 近隣商業地域 |
| 築年月 | 2003年03月(築23年) | ||
| 管理費 | 13,400円 | 修繕積立金 | 12,300円 |
| その他費用 | 専用庭使用料500円、専用サイクルポート使用料300円、町内会費100円、駐車場維持積立金1,000円 | ||
| 管理方式 | 全部委託 | 管理会社 | 日本ハウズイング株式会社 |
| 管理人 | 日勤 | 現況 | 空室 |
| 引渡し時期 | 相談 | 固定資産税・ 都市計画税 |
| 構造 | 鉄筋コンクリート造(RC) | 建物階数 | 地上10階 / 地下1階 |
|---|---|---|---|
| 所在階 | 1階 | 総戸数 | 56 戸 |
| 専有面積 | 壁芯 80.64㎡ | バルコニー面積 | 13.66㎡ |
| 間取り | 3LDK + S(納戸)+専用庭+専用サークルポート | 方角 | 南東 |
| 駐車場 | |||
| バイク置き場 | 駐輪場 | ||
| ペット | 不可 | 事務所利用 |
| 施工会社 | 佐伯建設工業株式会社 | 耐震診断 | |
|---|---|---|---|
| 再建築不可 | 既存不適格 | ||
| その他説明事項 | 掲載と現況が異なる場合は現況優先します。 | ||
| その他 |
| 修繕積立金の総額 | 修繕積立金の滞納額 | ||
|---|---|---|---|
| 管理費の滞納額 | 管理組合の借入額 |
| 項目 | リノベーション | 内装完了日 | 2025年09月 |
|---|---|---|---|
| 内容 | ・システムキッチン交換
|
| 位置 | 角部屋 | 部屋 | 全居室フローリング |
|---|---|---|---|
| 収納 | SICあり | キッチン | カウンターキッチン / 食洗機 / システムキッチン / 3口以上コンロ |
| 浴室・トイレ・洗面所 | 浴室乾燥機 / 追い焚き / 浴室1418サイズ / 温水便座洗浄機 / 三面鏡 / シャワー付洗面台 | バルコニー | スロップシンク |
| 設備 | 全居室収納あり / 床暖房 / 専用庭 / BS / CS / CATV | その他 | リノベーション / リフォーム |
| 構造 | 新耐震基準 | 設備 | 宅配ボックス / エレベーター |
| セキュリティ | オートロック / モニター付インターホン | 立地・環境 | 駅まで平坦 |
情報提供日:2026年03月05日 / 次回更新日:2026年03月19日
| 近隣施設 1 | 京王聖蹟桜ヶ丘ショッピングセンター 670m |
|---|---|
| 近隣施設 2 | 京王ストア桜ヶ丘店 670m |
| 近隣施設 3 | 多摩市立多摩第一小学校 440m |
| 近隣施設 4 | 多摩市立多摩中学校 300m |
| 近隣施設 5 | やまとさくら保育園 410m |

国土交通大臣(8)第4139号
所属団体名((公社)首都圏不動産公正取引協議会)
◆お問い合わせ対応窓口◆
取引態様:媒介
本サイト運営会社/株式会社FLIE(FLIEエージェント)
東京都中央区京橋1-1-5 セントラルビル3F
免許番号:国土交通大臣(1)第10892号
※売主様が対応可能な場合、直接手続きとなる場合があります。
-----------------------------------------------------------------
ひとつのお部屋からマンション全体まで、新たな価値を創造するリノベーション事業。
一室の中古マンションに安心をプラスして、より暮らしやすい住まいを生み出す「リノアルファ」。
立地と周辺環境を活かし、時代に即したプランでマンション全体を再生する「グランディーノ」。
私たちの総合力で住まいの新たな価値を創出します。
※売主HPより引用
物件価格
仲介手数料:最大143.9万円が不要!
頭金
金利(年)
返済年数
返済総額 円
上記の諸費用が必要となります。
※ このシミュレーションは、あくまでも目安の数値となり、お借り入れを保証するものではありません。
※ 実際の購入・借り入れにあたっては、金融機関でご確認いただくか、「お問い合わせ」よりご相談ください。
※ 諸費用を含めた住宅ローンのご提案も承っておりますので、お気軽にご相談ください。
メロディーハイム聖蹟桜ヶ丘
無料通話番号
不動産取引の新しい常識へ
「買主と売主が自由に安心して直接取引できる不動産プラットフォーム」を目指しています。