

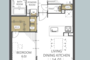
3LDK + WIC/70.82㎡
物件価格
5,790万円
仲介手数料:最大179.7万円が不要!
頭金0円で月々万円台よりご購入可能
月々の支払金額
円※ このシミュレーションには、諸費用・管理費・修繕積立金等は含まれておりません。あくまでも目安の数値となり、お借り入れを保証するものではありませんので、
実際の購入・借り入れにあたっては、金融機関でご確認いただくか、「お問い合わせ」よりご相談ください。
管理費 : 8,500円 / 修繕積立金 : 21,030円 / その他費用 : ハムレットクラブ負担金月:500円、テレビシステム維持管理費月:400円、防犯カメラ使用料月:200円
投資用
ペット可
事務所可
宅配ボックス
オートロック
新耐震
フラット35S
フラット35
リノベーション
R1住宅
リフォーム
・全棟総戸数383戸の大規模マンション
・ペット飼育可(細則有り)
・オートロック付き
・大規模修繕工事中(2025年4月~2026年1月)
・アフターサービス保証付き

武蔵関駅徒歩13分!「ブロッサムコートむさし野ビューウイング」70.82㎡の広々3LDK!2023年築後25年を経て、室内フルリノベーション済み。 システムキッチン、浴室、洗面台など全て新品で快適な暮らしを実現。東向きで陽当たり良好。ペット飼育可(細則有)で、現在空室です。大規模修繕工事実施中のため、将来も安心。周辺にはスーパー、コンビニ、学校も充実。お問い合わせお待ちしております。
室内の照明等を点灯せず、自然光の明るさを計測しております。計測期間の平均値を使用しております。
| 100ルクス以下 | 100~200ルクス | 200~500ルクス | 500~750ルクス | 750ルクス以上 |
|---|---|---|---|---|
人々のさまざまな活動が安全・快適に行える環境を作るために、推奨する照度基準を定めたもので、作業内容や空間の用途に応じて推奨照度が設定されています。JIS照明基準では、200lx(ルクス)をリビングでの団らんや娯楽(軽い読書も含む)に推奨される照度と定めており、200ルクス以上の照度が取れていれば自然光でもリラックスして過ごすことができます。
勉強やPC作業等の作業は750ルクス以上が必要とされており、裁縫等のさらに緻密な作業には1000以上のルクスが推奨されています。
計測期間の平均値を使用しております。
| 70デシベル以上(地下鉄の車内・ 蝉の声) | 60~70デシベル(ファミレス・ コーヒーショップ店内) | 50~60デシベル(書店の店内・ 役所の窓口周辺) | 40~50デシベル(図書館の館内・美術館の館内) | 30~40デシベル(ホテルの室内) |
|---|---|---|---|---|
※参考:環境省
| マンション名 | ブロッサムコートむさし野ビューウイング | 住所 | 東京都練馬区関町北5丁目16-36 |
|---|---|---|---|
| 価格 | 5,790万円 購入シミュレーションClose 購入シミュレーション物件価格 5,790万円 仲介手数料:最大179.7万円が不要! 頭金 05,790 金利(年) 05.000 返済年数 145 借入金額 万円 月々の支払金額 円 返済総額 円 諸費用概算 約万円 上記の諸費用が必要となります。 ※ 借入条件を(物件価格、期間35年)で算出。 ※ 借地権の際は誤差が生じます。 ※ このシミュレーションは、あくまでも目安の数値となり、お借り入れを保証するものではありません。 | 土地権利 | 所有権 |
| 交通 | 西武鉄道新宿線 武蔵関駅 まで 徒歩 13 分 | 用途地域 | 第一種低層住居専用地域 / 第一種住居地域 |
| 築年月 | 2000年10月(築26年) | ||
| 管理費 | 8,500円 | 修繕積立金 | 21,030円 |
| その他費用 | ハムレットクラブ負担金月:500円、テレビシステム維持管理費月:400円、防犯カメラ使用料月:200円 | ||
| 管理方式 | 全部委託 | 管理会社 | 株式会社日鉄コミュニティ |
| 管理人 | 日勤 | 現況 | 空室 |
| 引渡し時期 | 即時 (2026年01月) | 固定資産税・ 都市計画税 |
| 構造 | 鉄筋コンクリート造(RC) | 建物階数 | 地上10階 |
|---|---|---|---|
| 所在階 | 3階 | 総戸数 | 130 戸 |
| 専有面積 | 壁芯 70.82㎡ | バルコニー面積 | 9.93㎡ |
| 間取り | 3LDK + WIC | 方角 | 東 |
| 駐車場 | あり(空有) : 月額11,000円~18,000円 | ||
| バイク置き場 | 駐輪場 | ||
| ペット | 可 (条件 : 細則有) | 事務所利用 |
| 施工会社 | 戸田建設(株) | 耐震診断 | |
|---|---|---|---|
| 再建築不可 | 既存不適格 | ||
| その他説明事項 | ・掲載と現況が異なる場合は現況優先とします
| ||
| その他 |
| 修繕積立金の総額 | 修繕積立金の滞納額 | ||
|---|---|---|---|
| 管理費の滞納額 | 管理組合の借入額 |
| 項目 | リノベーション | 内装完了日 | 2025年10月(下旬) |
|---|---|---|---|
| 内容 | 【新規交換】
【新規貼替】
【新規取付】
【その他】
|
| 位置 | 部屋 | 全居室フローリング | |
|---|---|---|---|
| 収納 | WICあり | キッチン | カウンターキッチン / 食洗機 / システムキッチン / 3口以上コンロ |
| 浴室・トイレ・洗面所 | 温水便座洗浄機 | バルコニー | |
| 設備 | その他 | リノベーション | |
| 構造 | 新耐震基準 | 設備 | エレベーター |
| セキュリティ | オートロック | 立地・環境 |
情報提供日:2026年01月21日 / 次回更新日:2026年02月04日
| 近隣施設 1 | 練馬区立関町北小学校 440m |
|---|---|
| 近隣施設 2 | 練馬区立関中学校 600m |
| 近隣施設 3 | いなげや練馬南大泉店 250m |
| 近隣施設 4 | ファミリーマート 関町庚申通り店 270m |
| 近隣施設 5 | セブンイレブン練馬 南大泉富士街道店 380m |

国土交通大臣(2)第9073号
所属団体名((一社)日本経済団体連合会(経団連)、 (公社)全国宅地建物取引業保証協会、 (一社)リノベーション住宅推進協議会 、(公社)首都圏不動産公正取引協議会)
◆お問い合わせ対応窓口◆
取引態様:媒介
本サイト運営会社/株式会社FLIE(FLIEエージェント)
東京都中央区京橋1-1-5 セントラルビル3F
免許番号:国土交通大臣(1)第10892号
※売主様が対応可能な場合、直接手続きとなる場合があります。
-----------------------------------------------------------------
【売主PR】
全ては"Re"からはじまる。
中古物件再生事業(Reuse)として、リノベーション(Renovation)を施し、サービスを提供する。
本当に良いもの(Real)を、本当の満足度(Repeat)に向けて。
埼玉県を代表する企業として地域に貢献(Return)し、一つ一つの出会いに感謝(Respect)をしていく。
そんな想いを持ち続ける企業であり続けたい。
それがレジデンシャル不動産です。
※売主HPより引用
物件価格
仲介手数料:最大179.7万円が不要!
頭金
金利(年)
返済年数
返済総額 円
上記の諸費用が必要となります。
※ このシミュレーションは、あくまでも目安の数値となり、お借り入れを保証するものではありません。
※ 実際の購入・借り入れにあたっては、金融機関でご確認いただくか、「お問い合わせ」よりご相談ください。
※ 諸費用を含めた住宅ローンのご提案も承っておりますので、お気軽にご相談ください。
最近見た物件
ブロッサムコートむさし野ビューウイング
無料通話番号
不動産取引の新しい常識へ
「買主と売主が自由に安心して直接取引できる不動産プラットフォーム」を目指しています。