



























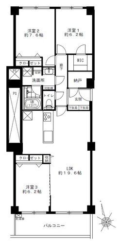
3LDK/88.52㎡
物件価格
5,980万円
仲介手数料:最大185.4万円が不要!
頭金0円で月々万円台よりご購入可能
月々の支払金額
円※ このシミュレーションには、諸費用・管理費・修繕積立金等は含まれておりません。あくまでも目安の数値となり、お借り入れを保証するものではありませんので、
実際の購入・借り入れにあたっては、金融機関でご確認いただくか、「お問い合わせ」よりご相談ください。
管理費 : 20,800円 / 修繕積立金 : 22,145円
投資用
ペット可
事務所可
宅配ボックス
オートロック
新耐震
フラット35S
フラット35
リノベーション
R1住宅
リフォーム
室内の照明等を点灯せず、自然光の明るさを計測しております。計測期間の平均値を使用しております。
| 100ルクス以下 | 100~200ルクス | 200~500ルクス | 500~750ルクス | 750ルクス以上 |
|---|---|---|---|---|
人々のさまざまな活動が安全・快適に行える環境を作るために、推奨する照度基準を定めたもので、作業内容や空間の用途に応じて推奨照度が設定されています。JIS照明基準では、200lx(ルクス)をリビングでの団らんや娯楽(軽い読書も含む)に推奨される照度と定めており、200ルクス以上の照度が取れていれば自然光でもリラックスして過ごすことができます。
勉強やPC作業等の作業は750ルクス以上が必要とされており、裁縫等のさらに緻密な作業には1000以上のルクスが推奨されています。
計測期間の平均値を使用しております。
| 70デシベル以上(地下鉄の車内・ 蝉の声) | 60~70デシベル(ファミレス・ コーヒーショップ店内) | 50~60デシベル(書店の店内・ 役所の窓口周辺) | 40~50デシベル(図書館の館内・美術館の館内) | 30~40デシベル(ホテルの室内) |
|---|---|---|---|---|
※参考:環境省
| マンション名 | 白楽ハウス | 住所 | 神奈川県横浜市港北区篠原台町3-16 |
|---|---|---|---|
| 価格 | 5,980万円 購入シミュレーションClose 購入シミュレーション物件価格 5,980万円 仲介手数料:最大185.4万円が不要! 頭金 05,980 金利(年) 05.000 返済年数 145 借入金額 万円 月々の支払金額 円 返済総額 円 諸費用概算 約万円 上記の諸費用が必要となります。 ※ 借入条件を(物件価格、期間35年)で算出。 ※ 借地権の際は誤差が生じます。 ※ このシミュレーションは、あくまでも目安の数値となり、お借り入れを保証するものではありません。 | 土地権利 | 所有権 |
| 交通 | 東急東横線 白楽駅 まで 徒歩 6 分 | 用途地域 | 第一種低層住居専用地域 |
| 築年月 | 1969年11月(築57年) | ||
| 管理費 | 20,800円 | 修繕積立金 | 22,145円 |
| その他費用 | |||
| 管理方式 | 全部委託 | 管理会社 | 株式会社京急リブコ |
| 管理人 | 常駐 | 現況 | 空室 |
| 引渡し時期 | 即時 (2026年01月) | 固定資産税・ 都市計画税 | 約86,627円/年額 |
| 構造 | 鉄筋コンクリート造(RC) | 建物階数 | 地上9階 |
|---|---|---|---|
| 所在階 | 4階 | 総戸数 | 70 戸 |
| 専有面積 | 壁芯 88.52㎡ | バルコニー面積 | 10.26㎡ |
| 間取り | 3LDK | 方角 | 南西 |
| 駐車場 | 確認中 : 月額17,000円 | ||
| バイク置き場 | なし | 駐輪場 | 確認中 : 小学生以下月額200円/大人月額300円 |
| ペット | 可 (条件 : 飼育細則参照) | 事務所利用 | 不可 |
| 施工会社 | 真柄建設(株)、他4社 | 耐震診断 | |
|---|---|---|---|
| 再建築不可 | 既存不適格 | ||
| その他説明事項 | トランクルーム面積:約1.17㎡(登記簿面積) | ||
| その他 |
| 修繕積立金の総額 | 67,171,165円 (マンション全体) | 修繕積立金の滞納額 | |
|---|---|---|---|
| 管理費の滞納額 | 管理組合の借入額 |
| 項目 | リノベーション | 内装完了日 | 2025年10月(下旬) |
|---|---|---|---|
| 内容 | ■システムキッチン新規交換(LIXIL製:食器洗い乾燥機/浄水器一体型水栓)
|
| 位置 | 部屋 | LDK15畳以上 / 全室6畳以上 / 全居室フローリング | |
|---|---|---|---|
| 収納 | WICあり | キッチン | 食洗機 / 浄水器 / システムキッチン / 3口以上コンロ |
| 浴室・トイレ・洗面所 | 浴室乾燥機 / 追い焚き / 浴室1317サイズ / 温水便座洗浄機 / 三面鏡 / シャワー付洗面台 | バルコニー | |
| 設備 | 全居室収納あり | その他 | リノベーション |
| 構造 | 設備 | トランクルーム / エレベーター | |
| セキュリティ | モニター付インターホン | 立地・環境 | スーパーまで5分 |
情報提供日:2026年01月12日 / 次回更新日:2026年01月26日
| 近隣施設 1 | 食品館あおば六角橋店 700m |
|---|---|
| 近隣施設 2 | まいばすけっと白楽駅前店 400m |
| 近隣施設 3 | ローソンH白楽駅西口店 300m |
| 近隣施設 4 | 白幡小学校 720m |
| 近隣施設 5 | 白楽あいいく保育園 390m |

東京都知事(1)第107211号
所属団体名((公社)全日本不動産協会)
◆お問い合わせ対応窓口◆
取引態様:媒介
本サイト運営会社/株式会社FLIE(FLIEエージェント)
東京都中央区京橋1-1-5 セントラルビル3F
免許番号:国土交通大臣(1)第10892号
※売主様が対応可能な場合、直接手続きとなる場合があります。
物件価格
仲介手数料:最大185.4万円が不要!
頭金
金利(年)
返済年数
返済総額 円
上記の諸費用が必要となります。
※ このシミュレーションは、あくまでも目安の数値となり、お借り入れを保証するものではありません。
※ 実際の購入・借り入れにあたっては、金融機関でご確認いただくか、「お問い合わせ」よりご相談ください。
※ 諸費用を含めた住宅ローンのご提案も承っておりますので、お気軽にご相談ください。
白楽ハウス
無料通話番号
不動産取引の新しい常識へ
「買主と売主が自由に安心して直接取引できる不動産プラットフォーム」を目指しています。