



















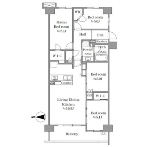
4LDK/85.05㎡
物件価格
5,280万円
仲介手数料:最大164.4万円が不要!
頭金0円で月々万円台よりご購入可能
月々の支払金額
円※ このシミュレーションには、諸費用・管理費・修繕積立金等は含まれておりません。あくまでも目安の数値となり、お借り入れを保証するものではありませんので、
実際の購入・借り入れにあたっては、金融機関でご確認いただくか、「お問い合わせ」よりご相談ください。
管理費 : 15,390円 / 修繕積立金 : 20,920円 / その他費用 : インターネットサービス料/月額880円
投資用
ペット可
事務所可
宅配ボックス
オートロック
新耐震
フラット35S
フラット35
リノベーション
R1住宅
リフォーム
■新規スケルトンリノベーション(令和8年2月完了)
■リビング拡張利用も可能な2WAYタイプの4LDK
■開放的な約16.5帖のゆとりあるLDK
■徒歩圏内に買い物・教育施設が揃う利便性
■大切な家族と暮らすペット飼育可(飼育細則有)
■前建てのない西向き住戸のため開放感良好
■西友辻堂店・・・・・約80m
■セブンイレブン藤沢辻堂東海岸4丁目店・・・・・約80m
■クリエイトSD 辻堂東海岸店・・・・・約550m
■辻堂海浜公園・・・・・約200m
■辻堂海水浴場・・・・・約400m
■藤沢市立浜見小学校・・・・・約600m
■藤沢市立高浜中学校・・・・・約750m
※駅徒歩表示および上記表示はメインエントランス利用

2026年2月、フルスケルトンリノベーションで新築同様に生まれ変わった住まい。85㎡超の広々4LDK、約16.5帖の開放的なLDKが魅力です。辻堂海浜公園や海が身近な湘南の住環境と、スーパー徒歩1分の利便性を両立。大切なペットとの暮らしも叶います(細則有)。家具付きで新生活もスムーズにスタート。
室内の照明等を点灯せず、自然光の明るさを計測しております。計測期間の平均値を使用しております。
| 100ルクス以下 | 100~200ルクス | 200~500ルクス | 500~750ルクス | 750ルクス以上 |
|---|---|---|---|---|
人々のさまざまな活動が安全・快適に行える環境を作るために、推奨する照度基準を定めたもので、作業内容や空間の用途に応じて推奨照度が設定されています。JIS照明基準では、200lx(ルクス)をリビングでの団らんや娯楽(軽い読書も含む)に推奨される照度と定めており、200ルクス以上の照度が取れていれば自然光でもリラックスして過ごすことができます。
勉強やPC作業等の作業は750ルクス以上が必要とされており、裁縫等のさらに緻密な作業には1000以上のルクスが推奨されています。
計測期間の平均値を使用しております。
| 70デシベル以上(地下鉄の車内・ 蝉の声) | 60~70デシベル(ファミレス・ コーヒーショップ店内) | 50~60デシベル(書店の店内・ 役所の窓口周辺) | 40~50デシベル(図書館の館内・美術館の館内) | 30~40デシベル(ホテルの室内) |
|---|---|---|---|---|
※参考:環境省
| マンション名 | グランシティ湘南海岸Ⅱガレリア・プラージュ | 住所 | 神奈川県藤沢市辻堂西海岸3丁目1-27 |
|---|---|---|---|
| 価格 | 5,280万円 購入シミュレーションClose 購入シミュレーション物件価格 5,280万円 仲介手数料:最大164.4万円が不要! 頭金 05,280 金利(年) 05.000 返済年数 145 借入金額 万円 月々の支払金額 円 返済総額 円 諸費用概算 約万円 上記の諸費用が必要となります。 ※ 借入条件を(物件価格、期間35年)で算出。 ※ 借地権の際は誤差が生じます。 ※ このシミュレーションは、あくまでも目安の数値となり、お借り入れを保証するものではありません。 | 土地権利 | 所有権 |
| 交通 | 東海道本線 辻堂駅 バス6分 「真砂通り」バス停より徒歩 1 分 | 用途地域 | 第一種中高層住居専用地域 |
| 築年月 | 2007年03月(築19年) | ||
| 管理費 | 15,390円 | 修繕積立金 | 20,920円 |
| その他費用 | インターネットサービス料/月額880円 | ||
| 管理方式 | 全部委託 | 管理会社 | 大和地所コミュニティライフ(株) |
| 管理人 | 日勤 | 現況 | 空室 |
| 引渡し時期 | 相談 | 固定資産税・ 都市計画税 |
| 構造 | 鉄筋コンクリート造(RC) | 建物階数 | 地上5階 / 地下1階 |
|---|---|---|---|
| 所在階 | 2階 | 総戸数 | 286 戸 |
| 専有面積 | 壁芯 85.05㎡ | バルコニー面積 | 9.84㎡ |
| 間取り | 4LDK | 方角 | 西 |
| 駐車場 | |||
| バイク置き場 | 駐輪場 | ||
| ペット | 可 (条件 : 飼育細則有) | 事務所利用 |
| 施工会社 | (株)長谷工コーポレーション | 耐震診断 | |
|---|---|---|---|
| 再建築不可 | 既存不適格 | ||
| その他説明事項 | ※司法書士は売主の指定とさせていただきます。
| ||
| その他 |
| 修繕積立金の総額 | 修繕積立金の滞納額 | ||
|---|---|---|---|
| 管理費の滞納額 | 管理組合の借入額 |
| 項目 | リノベーション | 内装完了日 | 2026年02月 |
|---|---|---|---|
| 内容 | ■フルスケルトンリノベーション工事
|
| 位置 | 部屋 | LDK15畳以上 / 全居室フローリング | |
|---|---|---|---|
| 収納 | WICあり | キッチン | カウンターキッチン / システムキッチン / 3口以上コンロ |
| 浴室・トイレ・洗面所 | 浴室乾燥機 / 温水便座洗浄機 / 三面鏡 | バルコニー | スロップシンク |
| 設備 | 全居室収納あり | その他 | 家具付き / リノベーション / リフォーム |
| 構造 | 新耐震基準 | 設備 | |
| セキュリティ | 立地・環境 | スーパーまで5分 / コンビニまで3分 / 公園まで3分 |

神奈川県知事(4)第27293号
所属団体名((一社)全国住宅産業協会)
◆お問い合わせ対応窓口◆
取引態様:媒介
本サイト運営会社/株式会社FLIE(FLIEエージェント)
東京都中央区京橋1-1-5 セントラルビル3F
免許番号:国土交通大臣(1)第10892号
※売主が対応可能な場合、直接手続きとなる場合があります。
----------------------------------------------------------------
【売主事業内容】
リナイス株式会社は横浜市・川崎市を中心に不動産業を手がけ、2020年に創業70周年を迎えたナイス株式会社のグループ会社です。
エンゼルハイム、ニックハイム、ナイスアーバン、ノブレスシリーズ等、ナイス株式会社が過去に分譲したマンションを高く買い取りいたします。
またリナイスのリノベーションは、仕入れ担当、設計担当が膝を突き合わせてリノベーションプランの打ち合わせを何度も重ねます。
特に、内装については女性スタッフの意見を取り入れながら、最良のプランをご提案しています。
※売主HPより引用
物件価格
仲介手数料:最大164.4万円が不要!
頭金
金利(年)
返済年数
返済総額 円
上記の諸費用が必要となります。
※ このシミュレーションは、あくまでも目安の数値となり、お借り入れを保証するものではありません。
※ 実際の購入・借り入れにあたっては、金融機関でご確認いただくか、「お問い合わせ」よりご相談ください。
※ 諸費用を含めた住宅ローンのご提案も承っておりますので、お気軽にご相談ください。
グランシティ湘南海岸Ⅱガレリア・プラージュ
無料通話番号
不動産取引の新しい常識へ
「買主と売主が自由に安心して直接取引できる不動産プラットフォーム」を目指しています。