











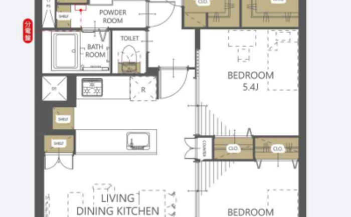
3LDK/70.99㎡
物件価格
6,390万円
頭金0円で月々万円台よりご購入可能
月々の支払金額
円※ このシミュレーションには、諸費用・管理費・修繕積立金等は含まれておりません。あくまでも目安の数値となり、お借り入れを保証するものではありませんので、
実際の購入・借り入れにあたっては、金融機関でご確認いただくか、「お問い合わせ」よりご相談ください。
管理費 : 10,360円 / 修繕積立金 : 7,810円 / その他費用 : 外部居住組合員協力金 月額2,500円
投資用
ペット可
事務所可
宅配ボックス
オートロック
新耐震
フラット35S
フラット35
リノベーション
R1住宅
リフォーム
■新規フルリノベーション物件(2025年11月中旬完了予定)
■13階西向き角住戸のため日照・眺望・通風良好
■全居室バルコニーに面した開放的なレイアウト
■ペット飼育可(細則有)
■箕面船場阪大前駅徒歩2分

新駅「箕面船場阪大前」駅より徒歩2分、利便性に優れたタワーマンション。2025年11月にフルリノベーションを完了し、室内は一新されました。13階の西向き角住戸で、陽当たり・眺望・通風は格別です。全居室がバルコニーに面した開放的な3LDKで、床暖房や食洗機など設備も充実。大切なペットと一緒に新生活を始められます(細則有)。
室内の照明等を点灯せず、自然光の明るさを計測しております。計測期間の平均値を使用しております。
| 100ルクス以下 | 100~200ルクス | 200~500ルクス | 500~750ルクス | 750ルクス以上 |
|---|---|---|---|---|
人々のさまざまな活動が安全・快適に行える環境を作るために、推奨する照度基準を定めたもので、作業内容や空間の用途に応じて推奨照度が設定されています。JIS照明基準では、200lx(ルクス)をリビングでの団らんや娯楽(軽い読書も含む)に推奨される照度と定めており、200ルクス以上の照度が取れていれば自然光でもリラックスして過ごすことができます。
勉強やPC作業等の作業は750ルクス以上が必要とされており、裁縫等のさらに緻密な作業には1000以上のルクスが推奨されています。
計測期間の平均値を使用しております。
| 70デシベル以上(地下鉄の車内・ 蝉の声) | 60~70デシベル(ファミレス・ コーヒーショップ店内) | 50~60デシベル(書店の店内・ 役所の窓口周辺) | 40~50デシベル(図書館の館内・美術館の館内) | 30~40デシベル(ホテルの室内) |
|---|---|---|---|---|
※参考:環境省
| マンション名 | シティゲートタワー千里中央 | 住所 | 大阪府箕面市船場東3丁目2-35 |
|---|---|---|---|
| 価格 | 6,390万円 購入シミュレーションClose 購入シミュレーション物件価格 6,390万円 頭金 06,390 金利(年) 05.000 返済年数 145 借入金額 万円 月々の支払金額 円 返済総額 円 諸費用概算 約万円 上記の諸費用が必要となります。 ※ 借入条件を(物件価格、期間35年)で算出。 ※ 借地権の際は誤差が生じます。 ※ このシミュレーションは、あくまでも目安の数値となり、お借り入れを保証するものではありません。 | 土地権利 | 所有権 |
| 交通 | 大阪モノレール本線 千里中央駅 まで 徒歩 19 分 | 用途地域 | 商業地域 |
| 築年月 | 2005年01月(築21年) | ||
| 管理費 | 10,360円 | 修繕積立金 | 7,810円 |
| その他費用 | 外部居住組合員協力金 月額2,500円 | ||
| 管理方式 | 全部委託 | 管理会社 | 伊藤忠アーバンコミュニティ株式会社 |
| 管理人 | 日勤 | 現況 | 空室 |
| 引渡し時期 | 相談 | 固定資産税・ 都市計画税 |
| 構造 | 鉄筋コンクリート造(RC) | 建物階数 | 地上26階 / 地下1階 |
|---|---|---|---|
| 所在階 | 13階 | 総戸数 | 119 戸 |
| 専有面積 | 壁芯 70.99㎡ | バルコニー面積 | 23.85㎡ |
| 間取り | 3LDK | 方角 | 西 |
| 駐車場 | 確認中 : 月額 7,300~15,200円 | ||
| バイク置き場 | 確認中 : 月額1,100~1,300円 | 駐輪場 | 確認中 : 月額100~200円 |
| ペット | 可 (条件 : 規約有) | 事務所利用 |
| 施工会社 | 前田建設工業(株) | 耐震診断 | |
|---|---|---|---|
| 再建築不可 | 既存不適格 | ||
| その他説明事項 | 掲載と現況が異なる場合は現況優先します。 | ||
| その他 |
| 修繕積立金の総額 | 修繕積立金の滞納額 | ||
|---|---|---|---|
| 管理費の滞納額 | 管理組合の借入額 |
| 項目 | リノベーション | 内装完了日 | 2025年11月 |
|---|---|---|---|
| 内容 | 全居室クロス・フローリング張替、建具・下足入交換、設備交換(キッチン、UB、洗面台、トイレ、給湯器)※変更になる場合がございます。 |
| 位置 | 角部屋 | 部屋 | LDK15畳以上 |
|---|---|---|---|
| 収納 | キッチン | 食洗機 / 浄水器 / システムキッチン | |
| 浴室・トイレ・洗面所 | 浴室乾燥機 / 追い焚き / 温水便座洗浄機 | バルコニー | |
| 設備 | 全居室収納あり / 床暖房 / BS / CS / CATV | その他 | リノベーション / リフォーム / フラット35適用 / フラット35S適用 |
| 構造 | 新耐震基準 | 設備 | 宅配ボックス / エレベーター |
| セキュリティ | オートロック / モニター付インターホン | 立地・環境 | 2沿線以上利用可 |
情報提供日:2026年03月05日 / 次回更新日:2026年03月19日
| 近隣施設 1 | ベビー・子供用品バースデイ船場店 995m |
|---|---|
| 近隣施設 2 | ワークマンプラス箕面西宿店 1503m |
| 近隣施設 3 | 阪急オアシス箕面船場店 107m |
| 近隣施設 4 | サンディ箕面船場西店 360m |
| 近隣施設 5 | フレスコ箕面船場店 513m |

国土交通大臣(1)第10177号
所属団体名(公益社団法人 全日本不動産協会)
◆お問い合わせ対応窓口◆
取引態様:媒介
本サイト運営会社/株式会社FLIE(FLIEエージェント)
東京都中央区京橋1-1-5 セントラルビル3F
免許番号:国土交通大臣(1)第10892号
※売主様が対応可能な場合、直接手続きとなる場合があります。
-----------------------------------------------------------------
住まいの売り買いをもっと簡単にする。
いつでも好きなタイミングで、適切な価格で、余計な中間コストがない、透明性の高い取引きを実現すること。
一人ひとりが「理想的な選択ができる社会に」していくことが、私たちのミッションです。
※売主HPより引用
物件価格
頭金
金利(年)
返済年数
返済総額 円
上記の諸費用が必要となります。
※ このシミュレーションは、あくまでも目安の数値となり、お借り入れを保証するものではありません。
※ 実際の購入・借り入れにあたっては、金融機関でご確認いただくか、「お問い合わせ」よりご相談ください。
※ 諸費用を含めた住宅ローンのご提案も承っておりますので、お気軽にご相談ください。
シティゲートタワー千里中央
無料通話番号
不動産取引の新しい常識へ
「買主と売主が自由に安心して直接取引できる不動産プラットフォーム」を目指しています。