







































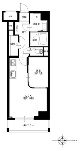
1LDK/40.74㎡
物件価格
6,090万円
仲介手数料:最大188.7万円が不要!
頭金0円で月々万円台よりご購入可能
月々の支払金額
円※ このシミュレーションには、諸費用・管理費・修繕積立金等は含まれておりません。あくまでも目安の数値となり、お借り入れを保証するものではありませんので、
実際の購入・借り入れにあたっては、金融機関でご確認いただくか、「お問い合わせ」よりご相談ください。
管理費 : 9,980円 / 修繕積立金 : 14,990円
投資用
ペット可
事務所可
宅配ボックス
オートロック
新耐震
フラット35S
フラット35
リノベーション
R1住宅
リフォーム
◆リノベーション物件◆
○オートロック・防犯カメラ・宅配ボックス付きマンション
○犬・猫2匹まで飼育可(細則あり)
○14階建13階部分のお部屋、開放感のある眺望です!
○曲面壁と、装飾窓が可愛いらしい、デザインにこだわった内装♪
○マルチクロークを新設し、収納力も良好です!
○スーパー、コンビニ、ホームセンターも近くにあり暮らしやすい立地
室内の照明等を点灯せず、自然光の明るさを計測しております。計測期間の平均値を使用しております。
| 100ルクス以下 | 100~200ルクス | 200~500ルクス | 500~750ルクス | 750ルクス以上 |
|---|---|---|---|---|
人々のさまざまな活動が安全・快適に行える環境を作るために、推奨する照度基準を定めたもので、作業内容や空間の用途に応じて推奨照度が設定されています。JIS照明基準では、200lx(ルクス)をリビングでの団らんや娯楽(軽い読書も含む)に推奨される照度と定めており、200ルクス以上の照度が取れていれば自然光でもリラックスして過ごすことができます。
勉強やPC作業等の作業は750ルクス以上が必要とされており、裁縫等のさらに緻密な作業には1000以上のルクスが推奨されています。
計測期間の平均値を使用しております。
| 70デシベル以上(地下鉄の車内・ 蝉の声) | 60~70デシベル(ファミレス・ コーヒーショップ店内) | 50~60デシベル(書店の店内・ 役所の窓口周辺) | 40~50デシベル(図書館の館内・美術館の館内) | 30~40デシベル(ホテルの室内) |
|---|---|---|---|---|
※参考:環境省
| マンション名 | シティインデックス武蔵小山 | 住所 | 東京都品川区荏原6丁目11-6 |
|---|---|---|---|
| 価格 | 6,090万円 購入シミュレーションClose 購入シミュレーション物件価格 6,090万円 仲介手数料:最大188.7万円が不要! 頭金 06,090 金利(年) 05.000 返済年数 145 借入金額 万円 月々の支払金額 円 返済総額 円 諸費用概算 約万円 上記の諸費用が必要となります。 ※ 借入条件を(物件価格、期間35年)で算出。 ※ 借地権の際は誤差が生じます。 ※ このシミュレーションは、あくまでも目安の数値となり、お借り入れを保証するものではありません。 | 土地権利 | 所有権 |
| 交通 | 東急池上線 荏原中延駅 まで 徒歩 9 分 東急大井町線 旗の台駅 まで 徒歩 11 分 東急目黒線 西小山駅 まで 徒歩 12 分 | 用途地域 | 商業地域 / 準工業地域 |
| 築年月 | 2010年08月(築16年) | ||
| 管理費 | 9,980円 | 修繕積立金 | 14,990円 |
| その他費用 | |||
| 管理方式 | 全部委託 | 管理会社 | 大和ライフネクスト(株) |
| 管理人 | 日勤 | 現況 | 空室 |
| 引渡し時期 | 相談 | 固定資産税・ 都市計画税 |
| 構造 | 鉄筋コンクリート造(RC) | 建物階数 | 地上14階 |
|---|---|---|---|
| 所在階 | 13階 | 総戸数 | 46 戸 |
| 専有面積 | 壁芯 40.74㎡ | バルコニー面積 | 4.44㎡ |
| 間取り | 1LDK | 方角 | 東 |
| 駐車場 | 確認中 : 月額30,000円 | ||
| バイク置き場 | 確認中 : 月額800~1,000円 | 駐輪場 | 確認中 : 月額100~300円 |
| ペット | 可 (条件 : 犬・猫2匹迄飼育可(細則有)) | 事務所利用 |
| 施工会社 | 耐震診断 | ||
|---|---|---|---|
| 再建築不可 | 既存不適格 | ||
| その他説明事項 | 掲載と現況が異なる場合は現況優先します。 | ||
| その他 |
| 修繕積立金の総額 | 修繕積立金の滞納額 | ||
|---|---|---|---|
| 管理費の滞納額 | 管理組合の借入額 |
| 項目 | リノベーション | 内装完了日 | 2025年10月 |
|---|---|---|---|
| 内容 | ◆給湯器交換
|
| 位置 | 部屋 | 全居室フローリング | |
|---|---|---|---|
| 収納 | 納戸あり | キッチン | 浄水器 / システムキッチン / 3口以上コンロ |
| 浴室・トイレ・洗面所 | 浴室乾燥機 / 追い焚き / 温水便座洗浄機 | バルコニー | |
| 設備 | BS / CS / CATV | その他 | リノベーション / リフォーム / フラット35適用 |
| 構造 | 新耐震基準 | 設備 | 宅配ボックス / エレベーター |
| セキュリティ | オートロック / モニター付インターホン / 防犯カメラ | 立地・環境 | 3駅以上利用可 / 2沿線以上利用可 |
情報提供日:2026年02月03日 / 次回更新日:2026年02月17日
| 近隣施設 1 | セブンイレブン 品川荏原6丁目店 160m |
|---|---|
| 近隣施設 2 | サミットストア 荏原4丁目店 210m |
| 近隣施設 3 | マツモトキヨシ 武蔵小山Part2店 600m |
| 近隣施設 4 | 荏原西公園 350m |
| 近隣施設 5 | 昭和大学病院 600m |

国土交通大臣(4)第7356号
所属団体名((公社)首都圏不動産公正取引協議会)
◆お問い合わせ対応窓口◆
取引態様:媒介
本サイト運営会社/株式会社FLIE(FLIEエージェント)
東京都中央区京橋1-1-5 セントラルビル3F
免許番号:国土交通大臣(1)第10892号
※売主様が対応可能な場合、直接手続きとなる場合があります。
-----------------------------------------------------------------
新しい住空間の創造を目指した総合住宅ディベロップメント企業である「マイプレイス」は、創業以来”人と地球にやさしい住まい”の追求を企業理念として掲げ、お客様にご満足していただくことを何よりの目標として努力を重ねてまいりました。
~まだ住める家から住みたくなる家へ~
年間800戸を超えるリフォーム実績があり、新築同様の高品質なリノベーションを実現しております。リノベーションマンション累計10,000戸の供給を達成いたしました。
※売主HPより引用
物件価格
仲介手数料:最大188.7万円が不要!
頭金
金利(年)
返済年数
返済総額 円
上記の諸費用が必要となります。
※ このシミュレーションは、あくまでも目安の数値となり、お借り入れを保証するものではありません。
※ 実際の購入・借り入れにあたっては、金融機関でご確認いただくか、「お問い合わせ」よりご相談ください。
※ 諸費用を含めた住宅ローンのご提案も承っておりますので、お気軽にご相談ください。
シティインデックス武蔵小山
無料通話番号
不動産取引の新しい常識へ
「買主と売主が自由に安心して直接取引できる不動産プラットフォーム」を目指しています。