

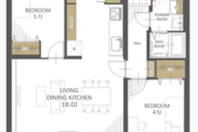
2LDK/63.0㎡
物件価格
2,390万円
仲介手数料:最大77.7万円が不要!
頭金0円で月々万円台よりご購入可能
月々の支払金額
円※ このシミュレーションには、諸費用・管理費・修繕積立金等は含まれておりません。あくまでも目安の数値となり、お借り入れを保証するものではありませんので、
実際の購入・借り入れにあたっては、金融機関でご確認いただくか、「お問い合わせ」よりご相談ください。
管理費 : 6,800円 / 修繕積立金 : 14,000円
投資用
ペット可
事務所可
宅配ボックス
オートロック
新耐震
フラット35S
フラット35
リノベーション
R1住宅
リフォーム
新規リノベーション物件 令和7年12月上旬完了予定
♦金沢シーサイドライン「並木北」駅徒歩3分
♦南向き陽当り良好
♦長期修繕計画書有

金沢シーサイドタウン並木1丁目、南向き陽当り良好な2LDK!12月上旬完成予定のリノベーション物件で、キッチン、浴室、トイレ、壁、床などフル改装済。広々63㎡、2面バルコニー付き。金沢シーサイドライン「並木北」駅徒歩3分(約240m)でアクセス良好。小学校・中学校も徒歩圏内。生活便利なスーパー、ドラッグストアも近く、快適な新生活を始められます。お問い合わせお待ちしております。
室内の照明等を点灯せず、自然光の明るさを計測しております。計測期間の平均値を使用しております。
| 100ルクス以下 | 100~200ルクス | 200~500ルクス | 500~750ルクス | 750ルクス以上 |
|---|---|---|---|---|
人々のさまざまな活動が安全・快適に行える環境を作るために、推奨する照度基準を定めたもので、作業内容や空間の用途に応じて推奨照度が設定されています。JIS照明基準では、200lx(ルクス)をリビングでの団らんや娯楽(軽い読書も含む)に推奨される照度と定めており、200ルクス以上の照度が取れていれば自然光でもリラックスして過ごすことができます。
勉強やPC作業等の作業は750ルクス以上が必要とされており、裁縫等のさらに緻密な作業には1000以上のルクスが推奨されています。
計測期間の平均値を使用しております。
| 70デシベル以上(地下鉄の車内・ 蝉の声) | 60~70デシベル(ファミレス・ コーヒーショップ店内) | 50~60デシベル(書店の店内・ 役所の窓口周辺) | 40~50デシベル(図書館の館内・美術館の館内) | 30~40デシベル(ホテルの室内) |
|---|---|---|---|---|
※参考:環境省
| マンション名 | 金沢シーサイドタウン並木1丁目第1住宅11-4号棟 | 住所 | 神奈川県横浜市金沢区並木1丁目11-4 |
|---|---|---|---|
| 価格 | 2,390万円 購入シミュレーションClose 購入シミュレーション物件価格 2,390万円 仲介手数料:最大77.7万円が不要! 頭金 02,390 金利(年) 05.000 返済年数 145 借入金額 万円 月々の支払金額 円 返済総額 円 諸費用概算 約万円 上記の諸費用が必要となります。 ※ 借入条件を(物件価格、期間35年)で算出。 ※ 借地権の際は誤差が生じます。 ※ このシミュレーションは、あくまでも目安の数値となり、お借り入れを保証するものではありません。 | 土地権利 | 所有権 |
| 交通 | 金沢シーサイドL 並木北駅 まで 徒歩 3 分 | 用途地域 | 第一種中高層住居専用地域 |
| 築年月 | 1978年08月(築48年) | ||
| 管理費 | 6,800円 | 修繕積立金 | 14,000円 |
| その他費用 | |||
| 管理方式 | 一部委託 | 管理会社 | 日本総合住生活㈱ |
| 管理人 | 日勤 | 現況 | 空室 |
| 引渡し時期 | 相談 | 固定資産税・ 都市計画税 |
| 構造 | 鉄筋コンクリート造(RC) | 建物階数 | 地上5階 |
|---|---|---|---|
| 所在階 | 1階 | 総戸数 | 20 戸 |
| 専有面積 | 壁芯 63.0㎡ | バルコニー面積 | 9.42㎡ |
| 間取り | 2LDK | 方角 | 南 |
| 駐車場 | 確認中 : 月額10,000円~11,000円:敷金30,000円 | ||
| バイク置き場 | 確認中 | 駐輪場 | 確認中 |
| ペット | 不可 | 事務所利用 |
| 施工会社 | 耐震診断 | ||
|---|---|---|---|
| 再建築不可 | 既存不適格 | ||
| その他説明事項 | ※図面と現況が相違する場合は現況を優先致します。
| ||
| その他 |
| 修繕積立金の総額 | 修繕積立金の滞納額 | ||
|---|---|---|---|
| 管理費の滞納額 | 管理組合の借入額 |
| 項目 | リノベーション | 内装完了日 | 2025年12月(上旬) |
|---|---|---|---|
| 内容 | キッチン 浴室 トイレ 壁 床 全室 フルリノベーション |
| 位置 | 部屋 | LDK15畳以上 / 全居室フローリング | |
|---|---|---|---|
| 収納 | キッチン | システムキッチン | |
| 浴室・トイレ・洗面所 | 浴室乾燥機 / 温水便座洗浄機 | バルコニー | 2面バルコニー / 両面バルコニー |
| 設備 | 全居室収納あり | その他 | リノベーション / リフォーム |
| 構造 | 設備 | ||
| セキュリティ | 立地・環境 | 学校まで5分 |
情報提供日:2026年01月20日 / 次回更新日:2026年02月03日
| 近隣施設 1 | 横浜市立並木第一小学校 390m |
|---|---|
| 近隣施設 2 | 横浜市立富岡東中学校 410m |
| 近隣施設 3 | そうてつローゼン並木店 500m |
| 近隣施設 4 | ファミリーマート金沢幸浦一丁目店 680m |
| 近隣施設 5 | ハックドラック金沢シーサイド店 550m |

国土交通大臣(2)第9073号
所属団体名((一社)日本経済団体連合会(経団連)、 (公社)全国宅地建物取引業保証協会、 (一社)リノベーション住宅推進協議会 、(公社)首都圏不動産公正取引協議会)
◆お問い合わせ対応窓口◆
取引態様:媒介
本サイト運営会社/株式会社FLIE(FLIEエージェント)
東京都中央区京橋1-1-5 セントラルビル3F
免許番号:国土交通大臣(1)第10892号
※売主様が対応可能な場合、直接手続きとなる場合があります。
-----------------------------------------------------------------
【売主PR】
全ては"Re"からはじまる。
中古物件再生事業(Reuse)として、リノベーション(Renovation)を施し、サービスを提供する。
本当に良いもの(Real)を、本当の満足度(Repeat)に向けて。
埼玉県を代表する企業として地域に貢献(Return)し、一つ一つの出会いに感謝(Respect)をしていく。
そんな想いを持ち続ける企業であり続けたい。
それがレジデンシャル不動産です。
※売主HPより引用
物件価格
仲介手数料:最大77.7万円が不要!
頭金
金利(年)
返済年数
返済総額 円
上記の諸費用が必要となります。
※ このシミュレーションは、あくまでも目安の数値となり、お借り入れを保証するものではありません。
※ 実際の購入・借り入れにあたっては、金融機関でご確認いただくか、「お問い合わせ」よりご相談ください。
※ 諸費用を含めた住宅ローンのご提案も承っておりますので、お気軽にご相談ください。
最近見た物件
金沢シーサイドタウン並木1丁目第1住宅11-4号棟
無料通話番号
不動産取引の新しい常識へ
「買主と売主が自由に安心して直接取引できる不動産プラットフォーム」を目指しています。