

















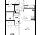
3LDK/66.67㎡
物件価格
3,790万円
仲介手数料:最大119.7万円が不要!
頭金0円で月々万円台よりご購入可能
月々の支払金額
円※ このシミュレーションには、諸費用・管理費・修繕積立金等は含まれておりません。あくまでも目安の数値となり、お借り入れを保証するものではありませんので、
実際の購入・借り入れにあたっては、金融機関でご確認いただくか、「お問い合わせ」よりご相談ください。
管理費 : 12,400円 / 修繕積立金 : 26,400円
投資用
ペット可
事務所可
宅配ボックス
オートロック
新耐震
フラット35S
フラット35
リノベーション
R1住宅
リフォーム
◆リノベーション物件
◆総戸数226戸、オートロック付き大規模マンション
◆ウォークインクローゼットや物入など、整理しやすい室内
◆商業施設や飲食店など生活に便利な平塚駅周辺エリア
◆海まで2km以内

「平塚」駅徒歩5分の好立地!室内はリノベーションにより、新築同様の快適な空間に生まれ変わりました。人気のカウンターキッチンや大容量WICを備え、収納も豊富。総戸数226戸のオートロック付大規模マンションで、安心の暮らしを実現。スーパーや小学校も徒歩5分圏内と、子育て世代にも嬉しい住環境です。
室内の照明等を点灯せず、自然光の明るさを計測しております。計測期間の平均値を使用しております。
| 100ルクス以下 | 100~200ルクス | 200~500ルクス | 500~750ルクス | 750ルクス以上 |
|---|---|---|---|---|
人々のさまざまな活動が安全・快適に行える環境を作るために、推奨する照度基準を定めたもので、作業内容や空間の用途に応じて推奨照度が設定されています。JIS照明基準では、200lx(ルクス)をリビングでの団らんや娯楽(軽い読書も含む)に推奨される照度と定めており、200ルクス以上の照度が取れていれば自然光でもリラックスして過ごすことができます。
勉強やPC作業等の作業は750ルクス以上が必要とされており、裁縫等のさらに緻密な作業には1000以上のルクスが推奨されています。
計測期間の平均値を使用しております。
| 70デシベル以上(地下鉄の車内・ 蝉の声) | 60~70デシベル(ファミレス・ コーヒーショップ店内) | 50~60デシベル(書店の店内・ 役所の窓口周辺) | 40~50デシベル(図書館の館内・美術館の館内) | 30~40デシベル(ホテルの室内) |
|---|---|---|---|---|
※参考:環境省
| マンション名 | ライオンズプラザ平塚見附町 | 住所 | 神奈川県平塚市見附町1-28 |
|---|---|---|---|
| 価格 | 3,790万円 購入シミュレーションClose 購入シミュレーション物件価格 3,790万円 仲介手数料:最大119.7万円が不要! 頭金 03,790 金利(年) 05.000 返済年数 145 借入金額 万円 月々の支払金額 円 返済総額 円 諸費用概算 約万円 上記の諸費用が必要となります。 ※ 借入条件を(物件価格、期間35年)で算出。 ※ 借地権の際は誤差が生じます。 ※ このシミュレーションは、あくまでも目安の数値となり、お借り入れを保証するものではありません。 | 土地権利 | 所有権 |
| 交通 | 東海道本線 平塚駅 まで 徒歩 5 分 | 用途地域 | 商業地域 |
| 築年月 | 1998年11月(築28年) | ||
| 管理費 | 12,400円 | 修繕積立金 | 26,400円 |
| その他費用 | |||
| 管理方式 | 全部委託 | 管理会社 | |
| 管理人 | 無 | 現況 | 空室 |
| 引渡し時期 | 相談 | 固定資産税・ 都市計画税 |
| 構造 | 鉄筋コンクリート造(RC) | 建物階数 | 地上15階 |
|---|---|---|---|
| 所在階 | 4階 | 総戸数 | 226 戸 |
| 専有面積 | 壁芯 66.67㎡ | バルコニー面積 | 11.8㎡ |
| 間取り | 3LDK | 方角 | 西 |
| 駐車場 | 確認中 | ||
| バイク置き場 | 確認中 | 駐輪場 | 確認中 |
| ペット | 事務所利用 |
| 施工会社 | 耐震診断 | ||
|---|---|---|---|
| 再建築不可 | 既存不適格 | ||
| その他説明事項 | ※司法書士は売主指定です。
| ||
| その他 |
| 修繕積立金の総額 | 修繕積立金の滞納額 | ||
|---|---|---|---|
| 管理費の滞納額 | 管理組合の借入額 |
| 項目 | リノベーション | 内装完了日 | 2026年06月(下旬) |
|---|---|---|---|
| 内容 | ■システムキッチン
|
| 位置 | 部屋 | 全居室フローリング | |
|---|---|---|---|
| 収納 | WICあり | キッチン | カウンターキッチン / 浄水器 / システムキッチン / 3口以上コンロ |
| 浴室・トイレ・洗面所 | 浴室乾燥機 / 追い焚き / 温水便座洗浄機 / シャワー付洗面台 | バルコニー | |
| 設備 | BS / CS / CATV | その他 | リノベーション / リフォーム |
| 構造 | 設備 | 宅配ボックス / エレベーター | |
| セキュリティ | モニター付インターホン / 防犯カメラ | 立地・環境 | 学校まで5分 / スーパーまで5分 / コンビニまで3分 |
情報提供日:2026年05月29日 / 次回更新日:2026年06月12日
| 近隣施設 1 | ローソン 平塚見附町店 190m |
|---|---|
| 近隣施設 2 | オーケー 平塚店 180m |
| 近隣施設 3 | ラスカ平塚 700m |
| 近隣施設 4 | 三井ショッピングパーク ららぽーと湘南平塚 1400m |
| 近隣施設 5 | 平塚市立崇善小学校 400m |

国土交通大臣(4)第7356号
所属団体名((公社)首都圏不動産公正取引協議会)
◆お問い合わせ対応窓口◆
取引態様:媒介
本サイト運営会社/株式会社FLIE(FLIEエージェント)
東京都中央区京橋1-1-5 セントラルビル3F
免許番号:国土交通大臣(1)第10892号
※売主様が対応可能な場合、直接手続きとなる場合があります。
-----------------------------------------------------------------
新しい住空間の創造を目指した総合住宅ディベロップメント企業である「マイプレイス」は、創業以来”人と地球にやさしい住まい”の追求を企業理念として掲げ、お客様にご満足していただくことを何よりの目標として努力を重ねてまいりました。
~まだ住める家から住みたくなる家へ~
年間800戸を超えるリフォーム実績があり、新築同様の高品質なリノベーションを実現しております。リノベーションマンション累計10,000戸の供給を達成いたしました。
※売主HPより引用
物件価格
仲介手数料:最大119.7万円が不要!
頭金
金利(年)
返済年数
返済総額 円
上記の諸費用が必要となります。
※ このシミュレーションは、あくまでも目安の数値となり、お借り入れを保証するものではありません。
※ 実際の購入・借り入れにあたっては、金融機関でご確認いただくか、「お問い合わせ」よりご相談ください。
※ 諸費用を含めた住宅ローンのご提案も承っておりますので、お気軽にご相談ください。
ライオンズプラザ平塚見附町
無料通話番号
不動産取引の新しい常識へ
「買主と売主が自由に安心して直接取引できる不動産プラットフォーム」を目指しています。