











































◆◆ GW休暇のお知らせ ◆◆
拝啓 時下ますますご清祥のこととお慶び申し上げます。
平素は格別のお引き立てを賜り厚く御礼申し上げます。
誠に勝手ながら、以下の期間を休業とさせていただきます。
****************************************
ゴールデンウィーク休暇期間
2026年5月2日(土)~2026年5月6日(水)
****************************************
※休業期間中にお問い合わせいただきました件に関しては、
2026年5月7日(木)より順次ご対応させていただきます。
ご迷惑をお掛けいたしますが、何卒ご了承くださいますよう宜しくお願い申し上げます。
敬具
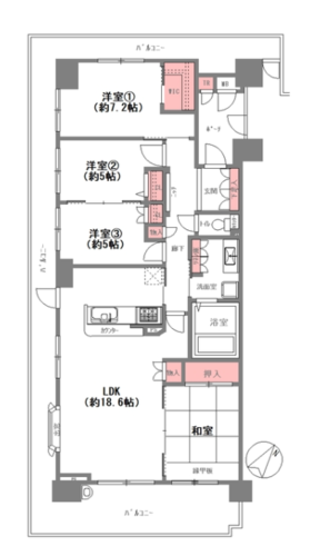
4LDK + WIC+TR/94.43㎡
物件価格
4,898万円
仲介手数料:最大152.9万円が不要!
頭金0円で月々万円台よりご購入可能
月々の支払金額
円※ このシミュレーションには、諸費用・管理費・修繕積立金等は含まれておりません。あくまでも目安の数値となり、お借り入れを保証するものではありませんので、
実際の購入・借り入れにあたっては、金融機関でご確認いただくか、「お問い合わせ」よりご相談ください。
管理費 : 17,940円 / 修繕積立金 : 14,160円 / その他費用 : ●UCW EV 使用料:月額 160 円 ●駐車場維持積立金:月額 1,000 円
投資用
ペット可
事務所可
宅配ボックス
オートロック
新耐震
フラット35S
フラット35
リノベーション
R1住宅
リフォーム
★引き回しバルコニー
★角部屋
★駐車場専用使用権付
★ペット飼育可(条件付)
★床暖房・食洗器・浴室乾燥機付

ユニバーサルシティ駅徒歩2分!地上20階建17階、94㎡超の広々とした4LDK角部屋です。開放感あふれる3面バルコニーが魅力。室内はキッチンや浴室など水回りを含めリフォーム済みで、新築のように快適です。床暖房や食洗機、WICなど設備・収納も充実。大切なペットと暮らせる、眺望良好な住まいです。
室内の照明等を点灯せず、自然光の明るさを計測しております。計測期間の平均値を使用しております。
| 100ルクス以下 | 100~200ルクス | 200~500ルクス | 500~750ルクス | 750ルクス以上 |
|---|---|---|---|---|
人々のさまざまな活動が安全・快適に行える環境を作るために、推奨する照度基準を定めたもので、作業内容や空間の用途に応じて推奨照度が設定されています。JIS照明基準では、200lx(ルクス)をリビングでの団らんや娯楽(軽い読書も含む)に推奨される照度と定めており、200ルクス以上の照度が取れていれば自然光でもリラックスして過ごすことができます。
勉強やPC作業等の作業は750ルクス以上が必要とされており、裁縫等のさらに緻密な作業には1000以上のルクスが推奨されています。
計測期間の平均値を使用しております。
| 70デシベル以上(地下鉄の車内・ 蝉の声) | 60~70デシベル(ファミレス・ コーヒーショップ店内) | 50~60デシベル(書店の店内・ 役所の窓口周辺) | 40~50デシベル(図書館の館内・美術館の館内) | 30~40デシベル(ホテルの室内) |
|---|---|---|---|---|
※参考:環境省
| マンション名 | リバーガーデンこのはな | 住所 | 大阪府大阪市此花区島屋6丁目2-100 |
|---|---|---|---|
| 価格 | 4,898万円 購入シミュレーションClose 購入シミュレーション物件価格 4,898万円 仲介手数料:最大152.9万円が不要! 頭金 04,898 金利(年) 05.000 返済年数 145 借入金額 万円 月々の支払金額 円 返済総額 円 諸費用概算 約万円 上記の諸費用が必要となります。 ※ 借入条件を(物件価格、期間35年)で算出。 ※ 借地権の際は誤差が生じます。 ※ このシミュレーションは、あくまでも目安の数値となり、お借り入れを保証するものではありません。 | 土地権利 | 所有権 |
| 交通 | 桜島線 ユニバーサルシティ駅 まで 徒歩 2 分 桜島線 安治川口駅 まで 徒歩 8 分 | 用途地域 | 商業地域 |
| 築年月 | 2006年08月(築20年) | ||
| 管理費 | 17,940円 | 修繕積立金 | 14,160円 |
| その他費用 | ●UCW EV 使用料:月額 160 円 ●駐車場維持積立金:月額 1,000 円 | ||
| 管理方式 | 全部委託 | 管理会社 | 東洋近畿建物管理㈱ |
| 管理人 | 常駐 | 現況 | 空室 |
| 引渡し時期 | 相談 | 固定資産税・ 都市計画税 |
| 構造 | 鉄筋コンクリート造(RC) | 建物階数 | 地上20階 |
|---|---|---|---|
| 所在階 | 17階 | 総戸数 | 279 戸 |
| 専有面積 | 壁芯 94.43㎡ | バルコニー面積 | 37.95㎡ |
| 間取り | 4LDK + WIC+TR | 方角 | 北西 |
| 駐車場 | 確認中 | ||
| バイク置き場 | 確認中 | 駐輪場 | 確認中 |
| ペット | 可 (条件 : 条件付き) | 事務所利用 |
| 施工会社 | 西松建設㈱ | 耐震診断 | |
|---|---|---|---|
| 再建築不可 | 既存不適格 | ||
| その他説明事項 | ※駐車場維持積立金:月額 1,000 円 ※駐車場を使用しない時は空き区画の有効利用として管理組合が使用希望者に貸与する事ができる。組合に一時返還した区分所有者は駐車場特別使用料月額 5,000 円の受取資格者となり、内 1,000円は駐車場維持積立金として管理組合へ納入しなければなりません。
●メーターボックス面積:0.51 ㎡
| ||
| その他 |
| 修繕積立金の総額 | 修繕積立金の滞納額 | ||
|---|---|---|---|
| 管理費の滞納額 | 管理組合の借入額 |
| 項目 | リフォーム | 内装完了日 | 2026年02月(下旬) |
|---|---|---|---|
| 内容 | ◆システムキッチン新調
|
| 位置 | 角部屋 | 部屋 | LDK15畳以上 / 和室あり |
|---|---|---|---|
| 収納 | WICあり | キッチン | 食洗機 / システムキッチン |
| 浴室・トイレ・洗面所 | 浴室乾燥機 / 温水便座洗浄機 | バルコニー | 3面バルコニー |
| 設備 | 床暖房 | その他 | リフォーム |
| 構造 | 新耐震基準 | 設備 | トランクルーム |
| セキュリティ | オートロック | 立地・環境 |

国土交通大臣(13)第2430号
所属団体名((公社)全国宅地建物取引業協会連合会の会員である各協会、(一社)全国住宅産業協会又はその会員である各協会)
◆お問い合わせ対応窓口◆
取引態様:媒介
本サイト運営会社/株式会社FLIE(FLIEエージェント)
東京都中央区京橋1-1-5 セントラルビル3F
免許番号:国土交通大臣(1)第10892号
※売主様が対応可能な場合、直接手続きとなる場合があります。
住まいのトータルクリエーター
地域密着型経営の特長を活かし、顧客に顔を向けた”売りっ放し”、
”建てっ放し”のない顧客満足度の高い住宅づくりを継続すると同時に
より高い水準を目指します。
※売主HPより引用
物件価格
仲介手数料:最大152.9万円が不要!
頭金
金利(年)
返済年数
返済総額 円
上記の諸費用が必要となります。
※ このシミュレーションは、あくまでも目安の数値となり、お借り入れを保証するものではありません。
※ 実際の購入・借り入れにあたっては、金融機関でご確認いただくか、「お問い合わせ」よりご相談ください。
※ 諸費用を含めた住宅ローンのご提案も承っておりますので、お気軽にご相談ください。
リバーガーデンこのはな
無料通話番号
不動産取引の新しい常識へ
「買主と売主が自由に安心して直接取引できる不動産プラットフォーム」を目指しています。