





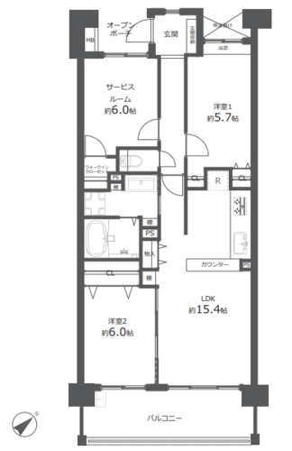
2SLDK/76.41㎡
物件価格
4,780万円
仲介手数料:最大149.4万円が不要!
頭金0円で月々万円台よりご購入可能
月々の支払金額
円※ このシミュレーションには、諸費用・管理費・修繕積立金等は含まれておりません。あくまでも目安の数値となり、お借り入れを保証するものではありませんので、
実際の購入・借り入れにあたっては、金融機関でご確認いただくか、「お問い合わせ」よりご相談ください。
管理費 : 8,290円 / 修繕積立金 : 11,560円 / その他費用 : ■町内会費:月額100円
投資用
ペット可
事務所可
宅配ボックス
オートロック
新耐震
フラット35S
フラット35
リノベーション
R1住宅
リフォーム
●眺望・陽当り良好!収納豊富な新規リフォーム物件♪
●近くにバス停有り 西船橋駅までバス利用可能!
●柱の出っ張りが無く、家具の配置がしやすい居室空間◎
●オープンポーチ有り バルコニーにスロップシンク有り
●アフターサービス保証付き

複数路線利用可能な「西船橋」駅徒歩圏。南東向き5階部分、76㎡超の広々とした2SLDKが新規リフォームで登場しました。陽光あふれる15畳以上のLDKが魅力。水回りをはじめ内装を一新し、食洗機や浴室乾燥機など人気の設備も充実。WICなど豊富な収納で、家具の配置がしやすいすっきりとした空間を実現します。
室内の照明等を点灯せず、自然光の明るさを計測しております。計測期間の平均値を使用しております。
| 100ルクス以下 | 100~200ルクス | 200~500ルクス | 500~750ルクス | 750ルクス以上 |
|---|---|---|---|---|
人々のさまざまな活動が安全・快適に行える環境を作るために、推奨する照度基準を定めたもので、作業内容や空間の用途に応じて推奨照度が設定されています。JIS照明基準では、200lx(ルクス)をリビングでの団らんや娯楽(軽い読書も含む)に推奨される照度と定めており、200ルクス以上の照度が取れていれば自然光でもリラックスして過ごすことができます。
勉強やPC作業等の作業は750ルクス以上が必要とされており、裁縫等のさらに緻密な作業には1000以上のルクスが推奨されています。
計測期間の平均値を使用しております。
| 70デシベル以上(地下鉄の車内・ 蝉の声) | 60~70デシベル(ファミレス・ コーヒーショップ店内) | 50~60デシベル(書店の店内・ 役所の窓口周辺) | 40~50デシベル(図書館の館内・美術館の館内) | 30~40デシベル(ホテルの室内) |
|---|---|---|---|---|
※参考:環境省
| マンション名 | コスモクラルテ西船橋 | 住所 | 千葉県船橋市印内2丁目8-29 |
|---|---|---|---|
| 価格 | 4,780万円 購入シミュレーションClose 購入シミュレーション物件価格 4,780万円 仲介手数料:最大149.4万円が不要! 頭金 04,780 金利(年) 05.000 返済年数 145 借入金額 万円 月々の支払金額 円 返済総額 円 諸費用概算 約万円 上記の諸費用が必要となります。 ※ 借入条件を(物件価格、期間35年)で算出。 ※ 借地権の際は誤差が生じます。 ※ このシミュレーションは、あくまでも目安の数値となり、お借り入れを保証するものではありません。 | 土地権利 | 所有権 |
| 交通 | 京成電鉄本線 京成西船駅 まで 徒歩 11 分 総武・中央緩行線 西船橋駅 まで 徒歩 15 分 東京地下鉄東西線 西船橋駅 まで 徒歩 15 分 | 用途地域 | 第一種中高層住居専用地域 |
| 築年月 | 2001年11月(築25年) | ||
| 管理費 | 8,290円 | 修繕積立金 | 11,560円 |
| その他費用 | ■町内会費:月額100円 | ||
| 管理方式 | 全部委託 | 管理会社 | 大和ライフネクスト株式会社 |
| 管理人 | 日勤 | 現況 | 空室 |
| 引渡し時期 | 相談 | 固定資産税・ 都市計画税 |
| 構造 | 鉄筋コンクリート造(RC) | 建物階数 | 地上8階 |
|---|---|---|---|
| 所在階 | 5階 | 総戸数 | 98 戸 |
| 専有面積 | 壁芯 76.41㎡ | バルコニー面積 | 12.4㎡ |
| 間取り | 2SLDK | 方角 | 南東 |
| 駐車場 | 確認中 : 月額 10,000 ~ 12,000 円 | ||
| バイク置き場 | 確認中 : 年額 6,000 円 | 駐輪場 | 確認中 : 年額 1,200 ~ 1,800 円 |
| ペット | 不可 | 事務所利用 |
| 施工会社 | 耐震診断 | ||
|---|---|---|---|
| 再建築不可 | 既存不適格 | ||
| その他説明事項 | ※図面と現況に相違がある場合は現況優先とします。
| ||
| その他 |
| 修繕積立金の総額 | 修繕積立金の滞納額 | ||
|---|---|---|---|
| 管理費の滞納額 | 管理組合の借入額 |
| 項目 | リフォーム | 内装完了日 | 2026年06月(上旬) |
|---|---|---|---|
| 内容 | ◆ システムキッチン新規交換
|
| 位置 | 部屋 | LDK15畳以上 | |
|---|---|---|---|
| 収納 | WICあり | キッチン | 食洗機 / 浄水器 / システムキッチン |
| 浴室・トイレ・洗面所 | 浴室乾燥機 / 温水便座洗浄機 / 三面鏡 | バルコニー | スロップシンク |
| 設備 | 全居室収納あり / ポーチ | その他 | リフォーム |
| 構造 | 新耐震基準 | 設備 | 宅配ボックス / エレベーター |
| セキュリティ | オートロック | 立地・環境 | 2沿線以上利用可 |
| 履歴 1 |
|
|---|

国土交通大臣(3)第8603号
所属団体名((公社)首都圏不動産公正取引協議会/(一社)リノベーション協議会)
◆お問い合わせ対応窓口◆
取引態様:媒介
本サイト運営会社/株式会社FLIE(FLIEエージェント)
東京都中央区京橋1-1-5 セントラルビル3F
免許番号:国土交通大臣(1)第10892号
※売主様が対応可能な場合、直接手続きとなる場合があります。
-----------------------------------------------------------------
「都心、首都圏、地方大都市で、やはりアクセスの良い立地に、理想の家を持ちたい。」 当社の中古マンションリノベーション物件はお手頃な価格で理想の家を提供いたします。理想と品質にこだわったホームネットのリノベーションで快適な価値ある生活をお過ごしください。 またホームネットでは、「価値ある生活空間をご提供する」リノベーションブランド「FURVAL」 を展開しています。
※売主HPより引用
物件価格
仲介手数料:最大149.4万円が不要!
頭金
金利(年)
返済年数
返済総額 円
上記の諸費用が必要となります。
※ このシミュレーションは、あくまでも目安の数値となり、お借り入れを保証するものではありません。
※ 実際の購入・借り入れにあたっては、金融機関でご確認いただくか、「お問い合わせ」よりご相談ください。
※ 諸費用を含めた住宅ローンのご提案も承っておりますので、お気軽にご相談ください。
コスモクラルテ西船橋
無料通話番号
不動産取引の新しい常識へ
「買主と売主が自由に安心して直接取引できる不動産プラットフォーム」を目指しています。