



◆◇◆ 年末年始のお知らせ ◆◇◆
日頃よりご利用いただきありがとうございます。
FLIE(フリエ)では、年末年始休暇の期間を以下の通りとさせていただきます。
ご不便をお掛け致しますが、何卒ご了承くださいますようお願い申し上げます。
■年末年始休業期間
2025年12月27日(土)から2026年1月4日(日)まで
※2025年1月5日(月)10:00より通常営業とさせていただきます。
年末年始休暇期間中にいただきましたお問い合わせにつきましては、2026年1月5日(月)より順次ご連絡させていただきます。
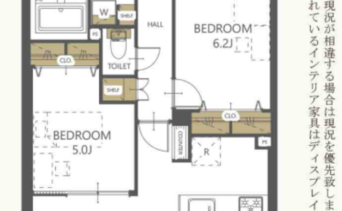
3LDK/64.7㎡
R1住宅 (適合リノベーション住宅) は、リノベーション協議会が定める「検査→工事→開示→保証→住宅履歴」の5つのフローに則ったリノベーションの統一規格です。
住宅のタイプ別に基準を設け、給排水や下地など目に見えない、分かりにくい重要なインフラ部分の検査 + 2年以上の保証、住宅履歴などを義務としています。
物件価格
2,999万円
仲介手数料:最大95.9万円が不要!
頭金0円で月々万円台よりご購入可能
月々の支払金額
円※ このシミュレーションには、諸費用・管理費・修繕積立金等は含まれておりません。あくまでも目安の数値となり、お借り入れを保証するものではありませんので、
実際の購入・借り入れにあたっては、金融機関でご確認いただくか、「お問い合わせ」よりご相談ください。
管理費 : 13,820円 / 修繕積立金 : 21,030円 / その他費用 : 自治会費:300/月
投資用
ペット可
事務所可
宅配ボックス
オートロック
新耐震
フラット35S
フラット35
リノベーション
R1住宅
リフォーム
お買い物便利な「イオンスタイルつきみ野」まで徒歩約3分!!住環境整っています
内装・設備一新のフルリフォーム物件です!新築気分でお住まいいただけます
◆南向きで陽当り良好♪全室新規エアコン付きで快適に新生活を始められます
◆家族との会話が弾む対面キッチン!食器洗浄機・水栓一体型浄水器付き!
◆追焚機能付きの経済的なユニットバス!雨の日も快適な浴室乾燥機付き!

つきみ野駅徒歩13分(約1040m)!「コスモつきみ野」2階部分、南東向きで陽当たり良好な3LDK!イオンスタイルつきみ野まで徒歩約3分でお買い物も便利!フルリノベーション済で新築のように綺麗なお部屋です。システムキッチン、浴室乾燥機、食洗機など設備も充実。快適な新生活を始めませんか?
室内の照明等を点灯せず、自然光の明るさを計測しております。計測期間の平均値を使用しております。
| 100ルクス以下 | 100~200ルクス | 200~500ルクス | 500~750ルクス | 750ルクス以上 |
|---|---|---|---|---|
人々のさまざまな活動が安全・快適に行える環境を作るために、推奨する照度基準を定めたもので、作業内容や空間の用途に応じて推奨照度が設定されています。JIS照明基準では、200lx(ルクス)をリビングでの団らんや娯楽(軽い読書も含む)に推奨される照度と定めており、200ルクス以上の照度が取れていれば自然光でもリラックスして過ごすことができます。
勉強やPC作業等の作業は750ルクス以上が必要とされており、裁縫等のさらに緻密な作業には1000以上のルクスが推奨されています。
計測期間の平均値を使用しております。
| 70デシベル以上(地下鉄の車内・ 蝉の声) | 60~70デシベル(ファミレス・ コーヒーショップ店内) | 50~60デシベル(書店の店内・ 役所の窓口周辺) | 40~50デシベル(図書館の館内・美術館の館内) | 30~40デシベル(ホテルの室内) |
|---|---|---|---|---|
※参考:環境省
| マンション名 | コスモつきみ野 | 住所 | 神奈川県大和市つきみ野1丁目7-1 |
|---|---|---|---|
| 価格 | 2,999万円 購入シミュレーションClose 購入シミュレーション物件価格 2,999万円 仲介手数料:最大95.9万円が不要! 頭金 02,999 金利(年) 05.000 返済年数 145 借入金額 万円 月々の支払金額 円 返済総額 円 諸費用概算 約万円 上記の諸費用が必要となります。 ※ 借入条件を(物件価格、期間35年)で算出。 ※ 借地権の際は誤差が生じます。 ※ このシミュレーションは、あくまでも目安の数値となり、お借り入れを保証するものではありません。 | 土地権利 | 所有権 |
| 交通 | 東急田園都市線 つきみ野駅 まで 徒歩 13 分 | 用途地域 | 第一種住居地域 |
| 築年月 | 1991年11月(築34年) | ||
| 管理費 | 13,820円 | 修繕積立金 | 21,030円 |
| その他費用 | 自治会費:300/月 | ||
| 管理方式 | 全部委託 | 管理会社 | 大和ライフネクスト(株) |
| 管理人 | 日勤 | 現況 | 空室 |
| 引渡し時期 | 相談 | 固定資産税・ 都市計画税 |
| 構造 | 鉄筋コンクリート造(RC) | 建物階数 | 地上4階 |
|---|---|---|---|
| 所在階 | 2階 | 総戸数 | 33 戸 |
| 専有面積 | 壁芯 64.7㎡ | バルコニー面積 | 8.68㎡ |
| 間取り | 3LDK | 方角 | 南東 |
| 駐車場 | 確認中 : 月額9,600円~12,000円 | ||
| バイク置き場 | 確認中 | 駐輪場 | 確認中 |
| ペット | 不可 | 事務所利用 |
| 施工会社 | 野村建設工業(株)・(株)田中建設 | 耐震診断 | |
|---|---|---|---|
| 再建築不可 | 既存不適格 | ||
| その他説明事項 | ※室内一部既存利用設備がございますのでご了承ください。
| ||
| その他 |
| 修繕積立金の総額 | 修繕積立金の滞納額 | ||
|---|---|---|---|
| 管理費の滞納額 | 管理組合の借入額 |
| 項目 | リフォーム | 内装完了日 | 2025年09月(下旬) |
|---|---|---|---|
| 内容 | 全室クロス張替
|
| 位置 | 部屋 | 全居室フローリング | |
|---|---|---|---|
| 収納 | キッチン | カウンターキッチン / 食洗機 / 浄水器 / システムキッチン | |
| 浴室・トイレ・洗面所 | 浴室乾燥機 / 追い焚き / 温水便座洗浄機 | バルコニー | |
| 設備 | 全居室収納あり | その他 | リノベーション / リフォーム / R1住宅適合物件 / フラット35適用 |
| 構造 | 新耐震基準 | 設備 | エレベーター |
| セキュリティ | オートロック / モニター付インターホン | 立地・環境 | スーパーまで5分 |

東京都知事(4)第83810号
公正取引協議会加盟事業者((公社)首都圏不動産公正取引協議会)
◆お問い合わせ対応窓口◆
取引態様:媒介
本サイト運営会社/株式会社FLIE(FLIEエージェント)
東京都中央区京橋1-1-5 セントラルビル3F
免許番号:国土交通大臣(1)第10892号
※売主様が対応可能な場合、直接手続きとなる場合があります。
-----------------------------------------------------------------
【売主事業内容】
芸術的センスをもって事業を創造し(アート)、熟練技術者かのような技能によって事業を磨き(クラフト)、科学者のごときロジックで事業を仕組化する(サイエンス)ことを目指しています。
現在、ACSは従来手掛けてきたディベロップメント事業を継続しながら、リノベーション事業を中核事業へと育成すべく経営資源を傾注しています。
ACSのリノベーション事業が担う役割は、永住に相応しい中古マンションを厳選し、設備とデザインを最適にリフォームし、リーズナブルな価格でお客様に提供することです。
※売主HPより引用
物件価格
仲介手数料:最大95.9万円が不要!
頭金
金利(年)
返済年数
返済総額 円
上記の諸費用が必要となります。
※ このシミュレーションは、あくまでも目安の数値となり、お借り入れを保証するものではありません。
※ 実際の購入・借り入れにあたっては、金融機関でご確認いただくか、「お問い合わせ」よりご相談ください。
※ 諸費用を含めた住宅ローンのご提案も承っておりますので、お気軽にご相談ください。
コスモつきみ野
無料通話番号
不動産取引の新しい常識へ
「買主と売主が自由に安心して直接取引できる不動産プラットフォーム」を目指しています。