









































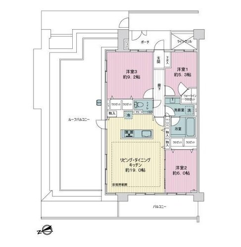
3LDK + ルーフバルコニー+WIC/86.82㎡
R1住宅 (適合リノベーション住宅) は、リノベーション協議会が定める「検査→工事→開示→保証→住宅履歴」の5つのフローに則ったリノベーションの統一規格です。
住宅のタイプ別に基準を設け、給排水や下地など目に見えない、分かりにくい重要なインフラ部分の検査 + 2年以上の保証、住宅履歴などを義務としています。
物件価格
4,898万円
仲介手数料:最大152.9万円が不要!
頭金0円で月々万円台よりご購入可能
月々の支払金額
円※ このシミュレーションには、諸費用・管理費・修繕積立金等は含まれておりません。あくまでも目安の数値となり、お借り入れを保証するものではありませんので、
実際の購入・借り入れにあたっては、金融機関でご確認いただくか、「お問い合わせ」よりご相談ください。
管理費 : 15,500円 / 修繕積立金 : 16,240円 / その他費用 : ルーフバルコニー使用料:月額1,290円、駐車場使用料:月額1,000円、インターネット保守料:月額 399円、光配信設備利用料:月額473円
投資用
ペット可
事務所可
宅配ボックス
オートロック
新耐震
フラット35S
フラット35
リノベーション
R1住宅
リフォーム
大京穴吹不動産が売主のリノベーション物件
・2008年2月築、6階建て5階部分、三方向角住戸
・約42.9平米のルーフバルコニー(スロップシンク付き)
・ペット飼育可(1住戸につき犬猫2匹まで、飼育細則有り)
・専用使用権付き駐車場(月額1,000円・サイズ制限有)
・不在時でも荷物を受け取れる宅配ボックス

横浜シーサイドの開放感溢れる暮らし!「クレッセント横浜シーサイド」5階角部屋、86.82㎡の3LDKリノベーション物件。約43㎡の広々ルーフバルコニーでBBQも楽しめます。ペット飼育可(規約有)。鳥浜駅徒歩5分、アウトレットやスーパーも近く生活至便。システムキッチン、浴室乾燥機など設備も充実。お問い合わせお待ちしております!
室内の照明等を点灯せず、自然光の明るさを計測しております。計測期間の平均値を使用しております。
| 100ルクス以下 | 100~200ルクス | 200~500ルクス | 500~750ルクス | 750ルクス以上 |
|---|---|---|---|---|
人々のさまざまな活動が安全・快適に行える環境を作るために、推奨する照度基準を定めたもので、作業内容や空間の用途に応じて推奨照度が設定されています。JIS照明基準では、200lx(ルクス)をリビングでの団らんや娯楽(軽い読書も含む)に推奨される照度と定めており、200ルクス以上の照度が取れていれば自然光でもリラックスして過ごすことができます。
勉強やPC作業等の作業は750ルクス以上が必要とされており、裁縫等のさらに緻密な作業には1000以上のルクスが推奨されています。
計測期間の平均値を使用しております。
| 70デシベル以上(地下鉄の車内・ 蝉の声) | 60~70デシベル(ファミレス・ コーヒーショップ店内) | 50~60デシベル(書店の店内・ 役所の窓口周辺) | 40~50デシベル(図書館の館内・美術館の館内) | 30~40デシベル(ホテルの室内) |
|---|---|---|---|---|
※参考:環境省
| マンション名 | クレッセント横浜シーサイド | 住所 | 神奈川県横浜市金沢区富岡東2丁目4-56 |
|---|---|---|---|
| 価格 | 4,898万円 購入シミュレーションClose 購入シミュレーション物件価格 4,898万円 仲介手数料:最大152.9万円が不要! 頭金 04,898 金利(年) 05.000 返済年数 145 借入金額 万円 月々の支払金額 円 返済総額 円 諸費用概算 約万円 上記の諸費用が必要となります。 ※ 借入条件を(物件価格、期間35年)で算出。 ※ 借地権の際は誤差が生じます。 ※ このシミュレーションは、あくまでも目安の数値となり、お借り入れを保証するものではありません。 | 土地権利 | 所有権 |
| 交通 | 金沢シーサイドL 鳥浜駅 まで 徒歩 5 分 | 用途地域 | 工業地域 |
| 築年月 | 2008年02月(築17年) | ||
| 管理費 | 15,500円 | 修繕積立金 | 16,240円 |
| その他費用 | ルーフバルコニー使用料:月額1,290円、駐車場使用料:月額1,000円、インターネット保守料:月額 399円、光配信設備利用料:月額473円 | ||
| 管理方式 | 全部委託 | 管理会社 | 株式会社モリモトクオリティ |
| 管理人 | 日勤 | 現況 | 空室 |
| 引渡し時期 | 相談 | 固定資産税・ 都市計画税 |
| 構造 | 鉄筋コンクリート造(RC) | 建物階数 | 地上6階 |
|---|---|---|---|
| 所在階 | 5階 | 総戸数 | 125 戸 |
| 専有面積 | 壁芯 86.82㎡ | バルコニー面積 | 12.82㎡ |
| 間取り | 3LDK + ルーフバルコニー+WIC | 方角 | 西 |
| 駐車場 | あり(空有) : 専用使用権付き駐車場(月額1,000円・サイズ制限有) | ||
| バイク置き場 | 確認中 | 駐輪場 | 確認中 |
| ペット | 可 (条件 : 1住戸につき犬猫2匹まで、飼育細則有り) | 事務所利用 |
| 施工会社 | 三井住友建設株式会社 | 耐震診断 | |
|---|---|---|---|
| 再建築不可 | 既存不適格 | ||
| その他説明事項 | ※この図面と現況が異なる場合は現況優先となります。
■ポーチ面積:約6.36㎡
| ||
| その他 |
| 修繕積立金の総額 | 修繕積立金の滞納額 | ||
|---|---|---|---|
| 管理費の滞納額 | 管理組合の借入額 |
| 項目 | リノベーション | 内装完了日 | 2025年05月(下旬) |
|---|---|---|---|
| 内容 | システムキッチン交換、ユニットバス交換、
|
| 位置 | 角部屋 | 部屋 | LDK15畳以上 / 全居室フローリング |
|---|---|---|---|
| 収納 | WICあり | キッチン | アイランドキッチン / 食洗機 / 浄水器 / システムキッチン / 3口以上コンロ |
| 浴室・トイレ・洗面所 | 浴室乾燥機 / 温水便座洗浄機 / 三面鏡 | バルコニー | 2面バルコニー / スロップシンク / ルーフバルコニー |
| 設備 | 全居室収納あり / 床暖房 / ポーチ | その他 | リノベーション / リフォーム / R1住宅適合物件 |
| 構造 | 新耐震基準 | 設備 | 宅配ボックス / エレベーター |
| セキュリティ | オートロック / モニター付インターホン | 立地・環境 | スーパーまで5分 / コンビニまで3分 |
情報提供日:2025年11月24日 / 次回更新日:2025年12月08日
| 近隣施設 1 | ローソン富岡東二丁目店 170m |
|---|---|
| 近隣施設 2 | そうてつローゼン並木店 400m |
| 近隣施設 3 | ヤマダデンキ横浜金沢店 380m |
| 近隣施設 4 | 三井アウトレットパーク横浜ベイサイド 860m |
| 近隣施設 5 | 小浜公園 350m |

国土交通大臣(8)第4139号
公正取引協議会加盟事業者((公社)首都圏不動産公正取引協議会)
◆お問い合わせ対応窓口◆
取引態様:媒介
本サイト運営会社/株式会社FLIE(FLIEエージェント)
東京都中央区京橋1-1-5 セントラルビル3F
免許番号:国土交通大臣(1)第10892号
※売主様が対応可能な場合、直接手続きとなる場合があります。
-----------------------------------------------------------------
ひとつのお部屋からマンション全体まで、新たな価値を創造するリノベーション事業。
一室の中古マンションに安心をプラスして、より暮らしやすい住まいを生み出す「リノアルファ」。
立地と周辺環境を活かし、時代に即したプランでマンション全体を再生する「グランディーノ」。
私たちの総合力で住まいの新たな価値を創出します。
※売主HPより引用
物件価格
仲介手数料:最大152.9万円が不要!
頭金
金利(年)
返済年数
返済総額 円
上記の諸費用が必要となります。
※ このシミュレーションは、あくまでも目安の数値となり、お借り入れを保証するものではありません。
※ 実際の購入・借り入れにあたっては、金融機関でご確認いただくか、「お問い合わせ」よりご相談ください。
※ 諸費用を含めた住宅ローンのご提案も承っておりますので、お気軽にご相談ください。
最近見た物件
クレッセント横浜シーサイド
無料通話番号
不動産取引の新しい常識へ
「買主と売主が自由に安心して直接取引できる不動産プラットフォーム」を目指しています。