

3LDK/57.9㎡
物件価格
1,780万円
仲介手数料:最大59.4万円が不要!
頭金0円で月々万円台よりご購入可能
月々の支払金額
円※ このシミュレーションには、諸費用・管理費・修繕積立金等は含まれておりません。あくまでも目安の数値となり、お借り入れを保証するものではありませんので、
実際の購入・借り入れにあたっては、金融機関でご確認いただくか、「お問い合わせ」よりご相談ください。
管理費 : 15,000円 / 修繕積立金 : 0円
投資用
ペット可
事務所可
宅配ボックス
オートロック
新耐震
フラット35S
フラット35
リノベーション
R1住宅
リフォーム
新規リノベーション実施済み
令和6年12月大規模修繕工事実施済み
2路線利用可能
南向き日照良好!
室内の照明等を点灯せず、自然光の明るさを計測しております。計測期間の平均値を使用しております。
| 100ルクス以下 | 100~200ルクス | 200~500ルクス | 500~750ルクス | 750ルクス以上 |
|---|---|---|---|---|
人々のさまざまな活動が安全・快適に行える環境を作るために、推奨する照度基準を定めたもので、作業内容や空間の用途に応じて推奨照度が設定されています。JIS照明基準では、200lx(ルクス)をリビングでの団らんや娯楽(軽い読書も含む)に推奨される照度と定めており、200ルクス以上の照度が取れていれば自然光でもリラックスして過ごすことができます。
勉強やPC作業等の作業は750ルクス以上が必要とされており、裁縫等のさらに緻密な作業には1000以上のルクスが推奨されています。
計測期間の平均値を使用しております。
| 70デシベル以上(地下鉄の車内・ 蝉の声) | 60~70デシベル(ファミレス・ コーヒーショップ店内) | 50~60デシベル(書店の店内・ 役所の窓口周辺) | 40~50デシベル(図書館の館内・美術館の館内) | 30~40デシベル(ホテルの室内) |
|---|---|---|---|---|
※参考:環境省
| マンション名 | 都民サンライズマンション | 住所 | 埼玉県さいたま市南区南浦和1丁目10-8 |
|---|---|---|---|
| 価格 | 1,780万円 購入シミュレーションClose 購入シミュレーション物件価格 1,780万円 仲介手数料:最大59.4万円が不要! 頭金 01,780 金利(年) 05.000 返済年数 145 借入金額 万円 月々の支払金額 円 返済総額 円 諸費用概算 約万円 上記の諸費用が必要となります。 ※ 借入条件を(物件価格、期間35年)で算出。 ※ 借地権の際は誤差が生じます。 ※ このシミュレーションは、あくまでも目安の数値となり、お借り入れを保証するものではありません。 | 土地権利 | 所有権 |
| 交通 | 京浜東北・根岸線 南浦和駅 まで 徒歩 10 分 京浜東北・根岸線 浦和駅 まで 徒歩 18 分 | 用途地域 | 第二種中高層住居専用地域 / 第一種住居地域 |
| 築年月 | 1980年11月(築45年) | ||
| 管理費 | 15,000円 | 修繕積立金 | 0円 |
| その他費用 | |||
| 管理方式 | 自主管理 | 管理会社 | |
| 管理人 | 無 | 現況 | 空室 |
| 引渡し時期 | 相談 | 固定資産税・ 都市計画税 |
| 構造 | 鉄筋コンクリート造(RC) | 建物階数 | 地上3階 |
|---|---|---|---|
| 所在階 | 2階 | 総戸数 | 12 戸 |
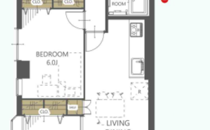
| 専有面積 | 壁芯 57.9㎡ | バルコニー面積 | 7.4㎡ |
| 間取り | 3LDK | 方角 | 南東 |
| 駐車場 | なし | ||
| バイク置き場 | 駐輪場 | ||
| ペット | 可 (条件 : 細則有) | 事務所利用 | 不可 |
| 施工会社 | 耐震診断 | ||
|---|---|---|---|
| 再建築不可 | 既存不適格 | ||
| その他説明事項 | ※図面と現況が相違ある場合は現況を優先とします。
| ||
| その他 |
| 修繕積立金の総額 | 修繕積立金の滞納額 | ||
|---|---|---|---|
| 管理費の滞納額 | 管理組合の借入額 |
| 項目 | リノベーション | 内装完了日 | 2025年10月 |
|---|---|---|---|
| 内容 | システムキッチン、ユニットバス(浴室乾燥機付)、給湯器(追焚き付)、洗面化粧台、トイレ、洗濯パン、下足入、エアコン1基、レースカーテン、建具、照明新規取付、フローリング・クロス新規張替え
|
| 位置 | 部屋 | 全居室フローリング | |
|---|---|---|---|
| 収納 | キッチン | カウンターキッチン / 浄水器 / システムキッチン / 3口以上コンロ | |
| 浴室・トイレ・洗面所 | 浴室乾燥機 / 追い焚き / 浴室に窓 / 温水便座洗浄機 | バルコニー | |
| 設備 | 全居室収納あり | その他 | 家具付き / リノベーション / リフォーム |
| 構造 | 設備 | ||
| セキュリティ | モニター付インターホン / 防犯カメラ | 立地・環境 | 学校まで5分 / 2沿線以上利用可 |
情報提供日:2025年12月02日 / 次回更新日:2025年12月16日
| 近隣施設 1 | 葉根木公園 84m |
|---|---|
| 近隣施設 2 | さいたま市立大谷場小学校 145m |
| 近隣施設 3 | アースサポート南浦和 184m |
| 近隣施設 4 | セブンイレブン 南浦和1丁目店 213m |
| 近隣施設 5 | 南浦和クリニック 244m |

東京都知事(9)第51030号
公正取引協議会加盟事業者((公社)全国宅地建物取引業保証協会 (公社)東京都宅地建物取引業協会)
◆お問い合わせ対応窓口◆
取引態様:媒介
本サイト運営会社/株式会社FLIE(FLIEエージェント)
東京都中央区京橋1-1-5 セントラルビル3F
免許番号:国土交通大臣(1)第10892号
※売主様が対応可能な場合、直接手続きとなる場合があります。
-----------------------------------------------------------------
【売主事業内容】
アイオスは中古マンションのリフォーム再販事業のパイオニアとして、様々なノウハウを活かし、リノベーションによって中古ストックの価値を高め、広く一般の皆様にご提供できるよう心掛けております。
アイオス独自のリノベーションによって、現代の多様化するライフスタイルやニーズにお応えできる快適な住空間を創造し、そこに住む人の生活を豊かに、そして大切な資源を資産として次世代に受け継いでいくお手伝いが出来ればと思います。
※売主HPより引用
物件価格
仲介手数料:最大59.4万円が不要!
頭金
金利(年)
返済年数
返済総額 円
上記の諸費用が必要となります。
※ このシミュレーションは、あくまでも目安の数値となり、お借り入れを保証するものではありません。
※ 実際の購入・借り入れにあたっては、金融機関でご確認いただくか、「お問い合わせ」よりご相談ください。
※ 諸費用を含めた住宅ローンのご提案も承っておりますので、お気軽にご相談ください。
最近見た物件
都民サンライズマンション
無料通話番号
不動産取引の新しい常識へ
「買主と売主が自由に安心して直接取引できる不動産プラットフォーム」を目指しています。