

3LDK/65.92㎡
物件価格
3,980万円
仲介手数料:最大125.4万円が不要!
頭金0円で月々万円台よりご購入可能
月々の支払金額
円※ このシミュレーションには、諸費用・管理費・修繕積立金等は含まれておりません。あくまでも目安の数値となり、お借り入れを保証するものではありませんので、
実際の購入・借り入れにあたっては、金融機関でご確認いただくか、「お問い合わせ」よりご相談ください。
管理費 : 9,800円 / 修繕積立金 : 17,800円 / その他費用 : 町会費:250円/月、CATV利用料:500円 /月
投資用
ペット可
事務所可
宅配ボックス
オートロック
新耐震
フラット35S
フラット35
リノベーション
R1住宅
リフォーム
⚫ フルリフォーム物件で快適生活!!
⚫ 物件目の前にスーパー建設予定!!
⚫ 南西向きで日当たり良好!!
アフターサービス保証付
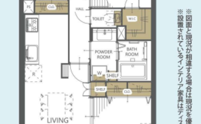
※図面と現況に相違がある場合は、現況優先とさせていただきます

陽光あふれる南西向き5階!室内はフルリフォームで生まれ変わった3LDKです。食洗機や浴室乾燥機、エアコン等の最新設備に加え、家具も付いているのですぐに新生活を始められます。オートロックや宅配ボックスも完備。徒歩1分に保育園があり、目の前にはスーパーが建設予定と、子育てにも嬉しい便利な住環境が魅力です。
室内の照明等を点灯せず、自然光の明るさを計測しております。計測期間の平均値を使用しております。
| 100ルクス以下 | 100~200ルクス | 200~500ルクス | 500~750ルクス | 750ルクス以上 |
|---|---|---|---|---|
人々のさまざまな活動が安全・快適に行える環境を作るために、推奨する照度基準を定めたもので、作業内容や空間の用途に応じて推奨照度が設定されています。JIS照明基準では、200lx(ルクス)をリビングでの団らんや娯楽(軽い読書も含む)に推奨される照度と定めており、200ルクス以上の照度が取れていれば自然光でもリラックスして過ごすことができます。
勉強やPC作業等の作業は750ルクス以上が必要とされており、裁縫等のさらに緻密な作業には1000以上のルクスが推奨されています。
計測期間の平均値を使用しております。
| 70デシベル以上(地下鉄の車内・ 蝉の声) | 60~70デシベル(ファミレス・ コーヒーショップ店内) | 50~60デシベル(書店の店内・ 役所の窓口周辺) | 40~50デシベル(図書館の館内・美術館の館内) | 30~40デシベル(ホテルの室内) |
|---|---|---|---|---|
※参考:環境省
| マンション名 | グリーンミユキ蕨北町 | 住所 | 埼玉県蕨市北町4丁目1-17 |
|---|---|---|---|
| 価格 | 3,980万円 購入シミュレーションClose 購入シミュレーション物件価格 3,980万円 仲介手数料:最大125.4万円が不要! 頭金 03,980 金利(年) 05.000 返済年数 145 借入金額 万円 月々の支払金額 円 返済総額 円 諸費用概算 約万円 上記の諸費用が必要となります。 ※ 借入条件を(物件価格、期間35年)で算出。 ※ 借地権の際は誤差が生じます。 ※ このシミュレーションは、あくまでも目安の数値となり、お借り入れを保証するものではありません。 | 土地権利 | 所有権 |
| 交通 | 京浜東北・根岸線 蕨駅 バス5分 「北町四丁目」バス停より徒歩 3 分 埼京線 戸田駅 まで 徒歩 24 分 埼京線 北戸田駅 まで 徒歩 25 分 | 用途地域 | 第一種住居地域 |
| 築年月 | 2005年09月(築21年) | ||
| 管理費 | 9,800円 | 修繕積立金 | 17,800円 |
| その他費用 | 町会費:250円/月、CATV利用料:500円 /月 | ||
| 管理方式 | 全部委託 | 管理会社 | 株式会社ライフポート西洋 |
| 管理人 | 日勤 | 現況 | 空室 |
| 引渡し時期 | 相談 | 固定資産税・ 都市計画税 |
| 構造 | 鉄筋コンクリート造(RC) | 建物階数 | 地上7階 |
|---|---|---|---|
| 所在階 | 5階 | 総戸数 | 49 戸 |
| 専有面積 | 壁芯 65.92㎡ | バルコニー面積 | 11.52㎡ |
| 間取り | 3LDK | 方角 | 南西 |
| 駐車場 | 確認中 | ||
| バイク置き場 | 確認中 | 駐輪場 | 確認中 |
| ペット | 不可 | 事務所利用 |
| 施工会社 | 株式会社本間組 | 耐震診断 | |
|---|---|---|---|
| 再建築不可 | 既存不適格 | ||
| その他説明事項 | ■司法書士は売主指定とさせていただきます
| ||
| その他 |
| 修繕積立金の総額 | 修繕積立金の滞納額 | ||
|---|---|---|---|
| 管理費の滞納額 | 管理組合の借入額 |
| 項目 | リフォーム | 内装完了日 | 2026年03月(下旬) |
|---|---|---|---|
| 内容 | システムキッチン(食洗器付)新規交換
|
| 位置 | 部屋 | 全居室フローリング | |
|---|---|---|---|
| 収納 | キッチン | カウンターキッチン / 食洗機 / システムキッチン / 3口以上コンロ | |
| 浴室・トイレ・洗面所 | 浴室乾燥機 / 温水便座洗浄機 / 三面鏡 | バルコニー | |
| 設備 | その他 | 家具付き / リフォーム | |
| 構造 | 新耐震基準 | 設備 | 24時間ゴミ / 宅配ボックス / エレベーター |
| セキュリティ | オートロック / モニター付インターホン / 24時間セキュリティ / ディンプルキー / 防犯カメラ | 立地・環境 | スーパーまで5分 / コンビニまで3分 / 2沿線以上利用可 |
情報提供日:2026年05月05日 / 次回更新日:2026年05月19日
| 近隣施設 1 | みどり保育園 80m |
|---|---|
| 近隣施設 2 | 北町柔整骨院 178m |
| 近隣施設 3 | 北町公園 181m |
| 近隣施設 4 | セブンイレブン 蕨北町店 190m |
| 近隣施設 5 | メリーポピンズ蕨北町ルーム 203m |

東京都知事(7)第71992号
所属団体名(公益社団法人 全国宅地建物取引業保証協会)
◆お問い合わせ対応窓口◆
取引態様:媒介
本サイト運営会社/株式会社FLIE(FLIEエージェント)
東京都中央区京橋1-1-5 セントラルビル3F
免許番号:国土交通大臣(1)第10892号
※売主様が対応可能な場合、直接手続きとなる場合があります。
-----------------------------------------------------------------
「タウングループ」はお陰様で創立45周年を迎え、お客様のよきパートナーとして、今後もご一緒に歩んで行きたいと思います。
※売主HPより引用
物件価格
仲介手数料:最大125.4万円が不要!
頭金
金利(年)
返済年数
返済総額 円
上記の諸費用が必要となります。
※ このシミュレーションは、あくまでも目安の数値となり、お借り入れを保証するものではありません。
※ 実際の購入・借り入れにあたっては、金融機関でご確認いただくか、「お問い合わせ」よりご相談ください。
※ 諸費用を含めた住宅ローンのご提案も承っておりますので、お気軽にご相談ください。
グリーンミユキ蕨北町
無料通話番号
不動産取引の新しい常識へ
「買主と売主が自由に安心して直接取引できる不動産プラットフォーム」を目指しています。