









◆◆ GW休暇のお知らせ ◆◆
拝啓 時下ますますご清祥のこととお慶び申し上げます。
平素は格別のお引き立てを賜り厚く御礼申し上げます。
誠に勝手ながら、以下の期間を休業とさせていただきます。
****************************************
ゴールデンウィーク休暇期間
2026年5月2日(土)~2026年5月6日(水)
****************************************
※休業期間中にお問い合わせいただきました件に関しては、
2026年5月7日(木)より順次ご対応させていただきます。
ご迷惑をお掛けいたしますが、何卒ご了承くださいますよう宜しくお願い申し上げます。
敬具
3LDK/110.96㎡
R1住宅 (適合リノベーション住宅) は、リノベーション協議会が定める「検査→工事→開示→保証→住宅履歴」の5つのフローに則ったリノベーションの統一規格です。
住宅のタイプ別に基準を設け、給排水や下地など目に見えない、分かりにくい重要なインフラ部分の検査 + 2年以上の保証、住宅履歴などを義務としています。
物件価格
10,490万円
頭金0円で月々万円台よりご購入可能
月々の支払金額
円※ このシミュレーションには、諸費用・管理費・修繕積立金等は含まれておりません。あくまでも目安の数値となり、お借り入れを保証するものではありませんので、
実際の購入・借り入れにあたっては、金融機関でご確認いただくか、「お問い合わせ」よりご相談ください。
管理費 : 26,400円 / 修繕積立金 : 33,740円 / その他費用 : インターネット利用料:2640円/月
投資用
ペット可
事務所可
宅配ボックス
オートロック
新耐震
フラット35S
フラット35
リノベーション
R1住宅
リフォーム
◆専有面積110m2をこえる大型3LDK、南西角住戸で陽当り良好!
・設計や内装にこだわり、物件の価値を磨き上げた弊社リノベーション物件です!
・アフターサービス付きなので安心してご入居いただけます。
【 物件特徴 】
■ 南西角住戸
□ 陽当たり・通風良好
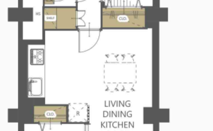
■ 専有面積110m2をこえる3LDK
□ 二面採光で明るいLDK約28.1帖
■ 回遊動線を取り入れた機能的な間取り
□ 全居室6帖以上
■ 田中工藝製オリジナルキッチン採用
□ 専用トランクルーム付

神戸北野の閑静な地に佇む、110㎡超のリノベーション住戸。南西角部屋ならではの陽光が注ぐ約28.1帖の広々としたLDKが魅力です。こだわりの田中工藝製キッチンをはじめ、床暖房やディスポーザーなど暮らしを豊かにする最新設備が充実。三宮へも徒歩圏内で、都心での上質な暮らしが叶います。
室内の照明等を点灯せず、自然光の明るさを計測しております。計測期間の平均値を使用しております。
| 100ルクス以下 | 100~200ルクス | 200~500ルクス | 500~750ルクス | 750ルクス以上 |
|---|---|---|---|---|
人々のさまざまな活動が安全・快適に行える環境を作るために、推奨する照度基準を定めたもので、作業内容や空間の用途に応じて推奨照度が設定されています。JIS照明基準では、200lx(ルクス)をリビングでの団らんや娯楽(軽い読書も含む)に推奨される照度と定めており、200ルクス以上の照度が取れていれば自然光でもリラックスして過ごすことができます。
勉強やPC作業等の作業は750ルクス以上が必要とされており、裁縫等のさらに緻密な作業には1000以上のルクスが推奨されています。
計測期間の平均値を使用しております。
| 70デシベル以上(地下鉄の車内・ 蝉の声) | 60~70デシベル(ファミレス・ コーヒーショップ店内) | 50~60デシベル(書店の店内・ 役所の窓口周辺) | 40~50デシベル(図書館の館内・美術館の館内) | 30~40デシベル(ホテルの室内) |
|---|---|---|---|---|
※参考:環境省
| マンション名 | ファミール・グラン神戸北野ザ・クラブハウス | 住所 | 兵庫県神戸市中央区山本通3丁目17-1 |
|---|---|---|---|
| 価格 | 10,490万円 購入シミュレーションClose 購入シミュレーション物件価格 10,490万円 頭金 010,490 金利(年) 05.000 返済年数 145 借入金額 万円 月々の支払金額 円 返済総額 円 諸費用概算 約万円 上記の諸費用が必要となります。 ※ 借入条件を(物件価格、期間35年)で算出。 ※ 借地権の際は誤差が生じます。 ※ このシミュレーションは、あくまでも目安の数値となり、お借り入れを保証するものではありません。 | 土地権利 | 所有権 |
| 交通 | 神戸市西神山手線 三宮駅 まで 徒歩 11 分 阪急電鉄神戸線 神戸三宮駅 まで 徒歩 14 分 東海道本線 三ノ宮駅 まで 徒歩 15 分 | 用途地域 | 第二種中高層住居専用地域 |
| 築年月 | 2003年03月(築23年) | ||
| 管理費 | 26,400円 | 修繕積立金 | 33,740円 |
| その他費用 | インターネット利用料:2640円/月 | ||
| 管理方式 | 全部委託 | 管理会社 | 三菱地所コミュニティ㈱ |
| 管理人 | 日勤 | 現況 | 空室 |
| 引渡し時期 | 相談 | 固定資産税・ 都市計画税 |
| 構造 | 鉄筋コンクリート造(RC) | 建物階数 | 地上4階 / 地下1階 |
|---|---|---|---|
| 所在階 | 2階 | 総戸数 | 19 戸 |
| 専有面積 | 壁芯 110.96㎡ | バルコニー面積 | 15.43㎡ |
| 間取り | 3LDK | 方角 | 南東 |
| 駐車場 | 確認中 : 20,000円~30,000円/月 | ||
| バイク置き場 | 確認中 : 2,000円/月 | 駐輪場 | 確認中 : 無償 |
| ペット | 不可 | 事務所利用 | 不可 |
| 施工会社 | 大成建設株式会社 | 耐震診断 | |
|---|---|---|---|
| 再建築不可 | 既存不適格 | ||
| その他説明事項 | ※登記時の司法書士は売主指定となります
■トランクルーム:無償(地下1階1.09㎡、専用使用権)
| ||
| その他 |
| 修繕積立金の総額 | 修繕積立金の滞納額 | ||
|---|---|---|---|
| 管理費の滞納額 | 管理組合の借入額 |
| 項目 | リノベーション | 内装完了日 | 2025年11月(下旬) |
|---|---|---|---|
| 内容 | フローリング新規貼替
|
| 位置 | 角部屋 | 部屋 | LDK15畳以上 / 全室6畳以上 / 全居室フローリング |
|---|---|---|---|
| 収納 | キッチン | カウンターキッチン / ディスポーザー / 浄水器 / システムキッチン / 3口以上コンロ | |
| 浴室・トイレ・洗面所 | 浴室乾燥機 / 追い焚き / 温水便座洗浄機 | バルコニー | |
| 設備 | 床暖房 / BS / CS / CATV | その他 | リノベーション / リフォーム / R1住宅適合物件 / 瑕疵保険(国交省) / 瑕疵保険(独自) |
| 構造 | 新耐震基準 | 設備 | 宅配ボックス / トランクルーム / エレベーター |
| セキュリティ | オートロック / モニター付インターホン | 立地・環境 | 2沿線以上利用可 |
情報提供日:2026年04月18日 / 次回更新日:2026年05月02日
| 近隣施設 1 | 神戸市立こうべ小学校 690m |
|---|---|
| 近隣施設 2 | 神戸市立神戸生田中学校 1080m |
| 近隣施設 3 | 聖ミカエル北野園 110m |
| 近隣施設 4 | 山手幼稚園 130m |
| 近隣施設 5 | スギ薬局北野坂店 560m |

国土交通大臣(1)第9863号
所属団体名((公社)首都圏不動産公正取引協議会)
◆お問い合わせ対応窓口◆
取引態様:媒介
本サイト運営会社/株式会社FLIE(FLIEエージェント)
東京都中央区京橋1-1-5 セントラルビル3F
免許番号:国土交通大臣(1)第10892号
※売主様が対応可能な場合、直接手続きとなる場合があります。
-----------------------------------------------------------------
創業20年を迎えてリノベーションマンションの供給戸数は4,500戸を超えました。渋谷クロスタワー2階に常設のショールームがあり、弊社が手掛けるリノベ物件の中でも特に人気の高い「カリフォルニアスタイル」「オーガニックスタイル」「ビンテージスタイル」を展示、物件購入からリノベーションまでをサポートするオーダーメイドリノベーションサービスも展開しています。
※売主HPより引用
物件価格
頭金
金利(年)
返済年数
返済総額 円
上記の諸費用が必要となります。
※ このシミュレーションは、あくまでも目安の数値となり、お借り入れを保証するものではありません。
※ 実際の購入・借り入れにあたっては、金融機関でご確認いただくか、「お問い合わせ」よりご相談ください。
※ 諸費用を含めた住宅ローンのご提案も承っておりますので、お気軽にご相談ください。
ファミール・グラン神戸北野ザ・クラブハウス
無料通話番号
不動産取引の新しい常識へ
「買主と売主が自由に安心して直接取引できる不動産プラットフォーム」を目指しています。