





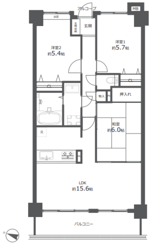
3LDK/72.39㎡
物件価格
2,680万円
仲介手数料:最大86.4万円が不要!
頭金0円で月々万円台よりご購入可能
月々の支払金額
円※ このシミュレーションには、諸費用・管理費・修繕積立金等は含まれておりません。あくまでも目安の数値となり、お借り入れを保証するものではありませんので、
実際の購入・借り入れにあたっては、金融機関でご確認いただくか、「お問い合わせ」よりご相談ください。
管理費 : 17,180円 / 修繕積立金 : 17,230円
投資用
ペット可
事務所可
宅配ボックス
オートロック
新耐震
フラット35S
フラット35
リノベーション
R1住宅
リフォーム
JR 武蔵野線「船橋法典駅」徒歩圏内
閑静な住宅街での落ち着きのあるくらし
●安心のオートロック&不在時に嬉しい宅配ボックス完備!
●東京スカイツリーを望む見晴らしのよい好眺望!
●アフターサービス保証付き

2026年に内装リフォーム完了。東京スカイツリーを望む開放的な眺望が魅力の3LDKです。南西向きで陽光あふれるLDKは15畳以上の広さ。システムキッチン等の水回りも一新し、快適にお過ごしいただけます。オートロックや不在時に便利な宅配ボックスも完備。新耐震基準適合、アフターサービス保証付きで入居後も安心です。
室内の照明等を点灯せず、自然光の明るさを計測しております。計測期間の平均値を使用しております。
| 100ルクス以下 | 100~200ルクス | 200~500ルクス | 500~750ルクス | 750ルクス以上 |
|---|---|---|---|---|
人々のさまざまな活動が安全・快適に行える環境を作るために、推奨する照度基準を定めたもので、作業内容や空間の用途に応じて推奨照度が設定されています。JIS照明基準では、200lx(ルクス)をリビングでの団らんや娯楽(軽い読書も含む)に推奨される照度と定めており、200ルクス以上の照度が取れていれば自然光でもリラックスして過ごすことができます。
勉強やPC作業等の作業は750ルクス以上が必要とされており、裁縫等のさらに緻密な作業には1000以上のルクスが推奨されています。
計測期間の平均値を使用しております。
| 70デシベル以上(地下鉄の車内・ 蝉の声) | 60~70デシベル(ファミレス・ コーヒーショップ店内) | 50~60デシベル(書店の店内・ 役所の窓口周辺) | 40~50デシベル(図書館の館内・美術館の館内) | 30~40デシベル(ホテルの室内) |
|---|---|---|---|---|
※参考:環境省
| マンション名 | コスモ市川東アヴァンタージュ | 住所 | 千葉県市川市北方町4丁目1899-1 |
|---|---|---|---|
| 価格 | 2,680万円 購入シミュレーションClose 購入シミュレーション物件価格 2,680万円 仲介手数料:最大86.4万円が不要! 頭金 02,680 金利(年) 05.000 返済年数 145 借入金額 万円 月々の支払金額 円 返済総額 円 諸費用概算 約万円 上記の諸費用が必要となります。 ※ 借入条件を(物件価格、期間35年)で算出。 ※ 借地権の際は誤差が生じます。 ※ このシミュレーションは、あくまでも目安の数値となり、お借り入れを保証するものではありません。 | 土地権利 | 所有権 |
| 交通 | 武蔵野線 船橋法典駅 まで 徒歩 13 分 | 用途地域 | 第一種住居地域 |
| 築年月 | 1990年02月(築36年) | ||
| 管理費 | 17,180円 | 修繕積立金 | 17,230円 |
| その他費用 | |||
| 管理方式 | 全部委託 | 管理会社 | 大和ライフネクスト株式会社 |
| 管理人 | 日勤 | 現況 | 空室 |
| 引渡し時期 | 相談 | 固定資産税・ 都市計画税 |
| 構造 | 鉄筋コンクリート造(RC) | 建物階数 | 地上7階 |
|---|---|---|---|
| 所在階 | 4階 | 総戸数 | 65 戸 |
| 専有面積 | 壁芯 72.39㎡ | バルコニー面積 | 9.45㎡ |
| 間取り | 3LDK | 方角 | 南西 |
| 駐車場 | 確認中 : 月額7,000円 | ||
| バイク置き場 | 確認中 : 月額500円 | 駐輪場 | 確認中 : 月額100円 |
| ペット | 不可 | 事務所利用 |
| 施工会社 | 耐震診断 | ||
|---|---|---|---|
| 再建築不可 | 既存不適格 | ||
| その他説明事項 | ※図面と現況に相違がある場合は現況優先とします。
| ||
| その他 |
| 修繕積立金の総額 | 修繕積立金の滞納額 | ||
|---|---|---|---|
| 管理費の滞納額 | 管理組合の借入額 |
| 項目 | リフォーム | 内装完了日 | 2026年06月(上旬) |
|---|---|---|---|
| 内容 | ◆ システムキッチン新規交換
|
| 位置 | 部屋 | LDK15畳以上 / 和室あり | |
|---|---|---|---|
| 収納 | キッチン | カウンターキッチン / 浄水器 / システムキッチン / 3口以上コンロ | |
| 浴室・トイレ・洗面所 | 浴室乾燥機 / 温水便座洗浄機 / 三面鏡 | バルコニー | |
| 設備 | その他 | リフォーム | |
| 構造 | 新耐震基準 | 設備 | 宅配ボックス / エレベーター |
| セキュリティ | オートロック | 立地・環境 | コンビニまで3分 |
| 履歴 1 |
|
|---|
情報提供日:2026年05月17日 / 次回更新日:2026年05月31日
| 近隣施設 1 | セブンイレブン市川中山店 100m |
|---|---|
| 近隣施設 2 | スギ薬局船橋藤原店 550m |
| 近隣施設 3 | 東武ストア船橋法典店 900m |

国土交通大臣(3)第8603号
所属団体名((公社)首都圏不動産公正取引協議会/(一社)リノベーション協議会)
◆お問い合わせ対応窓口◆
取引態様:媒介
本サイト運営会社/株式会社FLIE(FLIEエージェント)
東京都中央区京橋1-1-5 セントラルビル3F
免許番号:国土交通大臣(1)第10892号
※売主様が対応可能な場合、直接手続きとなる場合があります。
-----------------------------------------------------------------
「都心、首都圏、地方大都市で、やはりアクセスの良い立地に、理想の家を持ちたい。」 当社の中古マンションリノベーション物件はお手頃な価格で理想の家を提供いたします。理想と品質にこだわったホームネットのリノベーションで快適な価値ある生活をお過ごしください。 またホームネットでは、「価値ある生活空間をご提供する」リノベーションブランド「FURVAL」 を展開しています。
※売主HPより引用
物件価格
仲介手数料:最大86.4万円が不要!
頭金
金利(年)
返済年数
返済総額 円
上記の諸費用が必要となります。
※ このシミュレーションは、あくまでも目安の数値となり、お借り入れを保証するものではありません。
※ 実際の購入・借り入れにあたっては、金融機関でご確認いただくか、「お問い合わせ」よりご相談ください。
※ 諸費用を含めた住宅ローンのご提案も承っておりますので、お気軽にご相談ください。
コスモ市川東アヴァンタージュ
無料通話番号
不動産取引の新しい常識へ
「買主と売主が自由に安心して直接取引できる不動産プラットフォーム」を目指しています。