





◆◆ GW休暇のお知らせ ◆◆
拝啓 時下ますますご清祥のこととお慶び申し上げます。
平素は格別のお引き立てを賜り厚く御礼申し上げます。
誠に勝手ながら、以下の期間を休業とさせていただきます。
****************************************
ゴールデンウィーク休暇期間
2026年5月2日(土)~2026年5月6日(水)
****************************************
※休業期間中にお問い合わせいただきました件に関しては、
2026年5月7日(木)より順次ご対応させていただきます。
ご迷惑をお掛けいたしますが、何卒ご了承くださいますよう宜しくお願い申し上げます。
敬具
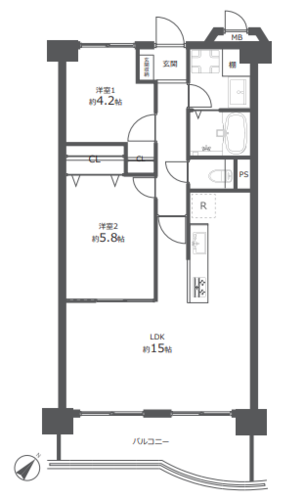
2LDK/56.7㎡
物件価格
3,090万円
仲介手数料:最大98.7万円が不要!
頭金0円で月々万円台よりご購入可能
月々の支払金額
円※ このシミュレーションには、諸費用・管理費・修繕積立金等は含まれておりません。あくまでも目安の数値となり、お借り入れを保証するものではありませんので、
実際の購入・借り入れにあたっては、金融機関でご確認いただくか、「お問い合わせ」よりご相談ください。
管理費 : 11,340円 / 修繕積立金 : 13,500円 / その他費用 : ■町会費:月額200円
投資用
ペット可
事務所可
宅配ボックス
オートロック
新耐震
フラット35S
フラット35
リノベーション
R1住宅
リフォーム
◆最上階のお部屋で眺望良好
◆2 路線利用可能!
◆新規リフォーム物件!
◆イオンタウン幕張西まで車で 5 分♪
《アフターサービス保証付》

最上階11階、南東向きの明るいお部屋から開放的な眺望を楽しめます。室内は水回りを含め新規リフォーム済みで、新築のような空間で快適な新生活を。JR総武線など2路線3駅が徒歩圏内で通勤・通学に便利。オートロック完備でセキュリティも安心。車で5分のイオンタウンでお買い物も楽々です。
室内の照明等を点灯せず、自然光の明るさを計測しております。計測期間の平均値を使用しております。
| 100ルクス以下 | 100~200ルクス | 200~500ルクス | 500~750ルクス | 750ルクス以上 |
|---|---|---|---|---|
人々のさまざまな活動が安全・快適に行える環境を作るために、推奨する照度基準を定めたもので、作業内容や空間の用途に応じて推奨照度が設定されています。JIS照明基準では、200lx(ルクス)をリビングでの団らんや娯楽(軽い読書も含む)に推奨される照度と定めており、200ルクス以上の照度が取れていれば自然光でもリラックスして過ごすことができます。
勉強やPC作業等の作業は750ルクス以上が必要とされており、裁縫等のさらに緻密な作業には1000以上のルクスが推奨されています。
計測期間の平均値を使用しております。
| 70デシベル以上(地下鉄の車内・ 蝉の声) | 60~70デシベル(ファミレス・ コーヒーショップ店内) | 50~60デシベル(書店の店内・ 役所の窓口周辺) | 40~50デシベル(図書館の館内・美術館の館内) | 30~40デシベル(ホテルの室内) |
|---|---|---|---|---|
※参考:環境省
| マンション名 | ダイアパレス幕張 | 住所 | 千葉県千葉市花見川区幕張町5丁目417-105 |
|---|---|---|---|
| 価格 | 3,090万円 購入シミュレーションClose 購入シミュレーション物件価格 3,090万円 仲介手数料:最大98.7万円が不要! 頭金 03,090 金利(年) 05.000 返済年数 145 借入金額 万円 月々の支払金額 円 返済総額 円 諸費用概算 約万円 上記の諸費用が必要となります。 ※ 借入条件を(物件価格、期間35年)で算出。 ※ 借地権の際は誤差が生じます。 ※ このシミュレーションは、あくまでも目安の数値となり、お借り入れを保証するものではありません。 | 土地権利 | 所有権 |
| 交通 | 総武・中央緩行線 幕張駅 まで 徒歩 12 分 京成電鉄千葉線 京成幕張駅 まで 徒歩 14 分 京成電鉄千葉線 検見川駅 まで 徒歩 15 分 | 用途地域 | |
| 築年月 | 1995年08月(築31年) | ||
| 管理費 | 11,340円 | 修繕積立金 | 13,500円 |
| その他費用 | ■町会費:月額200円 | ||
| 管理方式 | 全部委託 | 管理会社 | 株式会社合人社計画研究所 |
| 管理人 | 日勤 | 現況 | 空室 |
| 引渡し時期 | 相談 | 固定資産税・ 都市計画税 |
| 構造 | 鉄骨鉄筋コンクリート造(SRC) | 建物階数 | 地上11階 |
|---|---|---|---|
| 所在階 | 11階 | 総戸数 | 54 戸 |
| 専有面積 | 壁芯 56.7㎡ | バルコニー面積 | 9.16㎡ |
| 間取り | 2LDK | 方角 | 南東 |
| 駐車場 | 確認中 : 月額5,000~10,000円 | ||
| バイク置き場 | 確認中 : 月額500円 | 駐輪場 | 確認中 : 月額250円 |
| ペット | 不可 | 事務所利用 |
| 施工会社 | 耐震診断 | ||
|---|---|---|---|
| 再建築不可 | 既存不適格 | ||
| その他説明事項 | ※図面と現況が異なる場合は、現況を優先させていただきます。
| ||
| その他 |
| 修繕積立金の総額 | 修繕積立金の滞納額 | ||
|---|---|---|---|
| 管理費の滞納額 | 管理組合の借入額 |
| 項目 | リフォーム | 内装完了日 | 2026年02月(上旬) |
|---|---|---|---|
| 内容 | ◆ システムキッチン新規交換
※内装完了日については別途お問い合わせください。 |
| 位置 | 最上階 | 部屋 | |
|---|---|---|---|
| 収納 | キッチン | 浄水器 / システムキッチン | |
| 浴室・トイレ・洗面所 | 浴室乾燥機 / 温水便座洗浄機 / 三面鏡 | バルコニー | |
| 設備 | その他 | ||
| 構造 | 新耐震基準 | 設備 | エレベーター |
| セキュリティ | オートロック / モニター付インターホン | 立地・環境 | 2沿線以上利用可 |

国土交通大臣(3)第8603号
所属団体名((公社)首都圏不動産公正取引協議会/(一社)リノベーション協議会)
◆お問い合わせ対応窓口◆
取引態様:媒介
本サイト運営会社/株式会社FLIE(FLIEエージェント)
東京都中央区京橋1-1-5 セントラルビル3F
免許番号:国土交通大臣(1)第10892号
※売主様が対応可能な場合、直接手続きとなる場合があります。
-----------------------------------------------------------------
「都心、首都圏、地方大都市で、やはりアクセスの良い立地に、理想の家を持ちたい。」 当社の中古マンションリノベーション物件はお手頃な価格で理想の家を提供いたします。理想と品質にこだわったホームネットのリノベーションで快適な価値ある生活をお過ごしください。 またホームネットでは、「価値ある生活空間をご提供する」リノベーションブランド「FURVAL」 を展開しています。
※売主HPより引用
物件価格
仲介手数料:最大98.7万円が不要!
頭金
金利(年)
返済年数
返済総額 円
上記の諸費用が必要となります。
※ このシミュレーションは、あくまでも目安の数値となり、お借り入れを保証するものではありません。
※ 実際の購入・借り入れにあたっては、金融機関でご確認いただくか、「お問い合わせ」よりご相談ください。
※ 諸費用を含めた住宅ローンのご提案も承っておりますので、お気軽にご相談ください。
ダイアパレス幕張
無料通話番号
不動産取引の新しい常識へ
「買主と売主が自由に安心して直接取引できる不動産プラットフォーム」を目指しています。