







































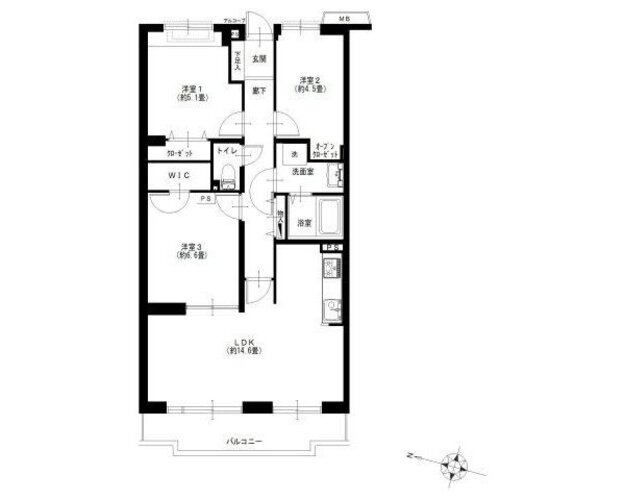
3LDK + WIC/71.02㎡
物件価格
1,790万円
仲介手数料:最大59.7万円が不要!
頭金0円で月々万円台よりご購入可能
月々の支払金額
円※ このシミュレーションには、諸費用・管理費・修繕積立金等は含まれておりません。あくまでも目安の数値となり、お借り入れを保証するものではありませんので、
実際の購入・借り入れにあたっては、金融機関でご確認いただくか、「お問い合わせ」よりご相談ください。
管理費 : 15,410円 / 修繕積立金 : 21,300円 / その他費用 : 町会費(半年毎徴収):250円/月
投資用
ペット可
事務所可
宅配ボックス
オートロック
新耐震
フラット35S
フラット35
リノベーション
R1住宅
リフォーム
○白を基調とした、明るく清潔感のある内装
○各洋室に収納を完備。洋室3には、ウォークインクローゼットを新設しました!
○お風呂には追焚き機能と浴室乾燥機能を完備!
○釜利谷小学校まで徒歩3分、お子様が通いやすい距離です
○金沢自然公園・動物園も気軽に行ける距離!休日のおでかけにぴったりです♪

新規リノベーション済!白を基調とした明るい内装はまるで新築のようです。南西向き4階部分の71㎡超3LDKで、陽当たり・風通し共に良好。洋室にはWICを新設し収納も豊富です。小学校まで徒歩3分、スーパーも徒歩圏内の閑静な住宅街。新耐震基準適合で安心の子育て環境が魅力です。
室内の照明等を点灯せず、自然光の明るさを計測しております。計測期間の平均値を使用しております。
| 100ルクス以下 | 100~200ルクス | 200~500ルクス | 500~750ルクス | 750ルクス以上 |
|---|---|---|---|---|
人々のさまざまな活動が安全・快適に行える環境を作るために、推奨する照度基準を定めたもので、作業内容や空間の用途に応じて推奨照度が設定されています。JIS照明基準では、200lx(ルクス)をリビングでの団らんや娯楽(軽い読書も含む)に推奨される照度と定めており、200ルクス以上の照度が取れていれば自然光でもリラックスして過ごすことができます。
勉強やPC作業等の作業は750ルクス以上が必要とされており、裁縫等のさらに緻密な作業には1000以上のルクスが推奨されています。
計測期間の平均値を使用しております。
| 70デシベル以上(地下鉄の車内・ 蝉の声) | 60~70デシベル(ファミレス・ コーヒーショップ店内) | 50~60デシベル(書店の店内・ 役所の窓口周辺) | 40~50デシベル(図書館の館内・美術館の館内) | 30~40デシベル(ホテルの室内) |
|---|---|---|---|---|
※参考:環境省
| マンション名 | コスモ金沢文庫ルシード | 住所 | 神奈川県横浜市金沢区釜利谷東6丁目34-1 |
|---|---|---|---|
| 価格 | 1,790万円 購入シミュレーションClose 購入シミュレーション物件価格 1,790万円 仲介手数料:最大59.7万円が不要! 頭金 01,790 金利(年) 05.000 返済年数 145 借入金額 万円 月々の支払金額 円 返済総額 円 諸費用概算 約万円 上記の諸費用が必要となります。 ※ 借入条件を(物件価格、期間35年)で算出。 ※ 借地権の際は誤差が生じます。 ※ このシミュレーションは、あくまでも目安の数値となり、お借り入れを保証するものではありません。 | 土地権利 | 所有権 |
| 交通 | 京浜急行電鉄本線 金沢文庫駅 まで 徒歩 19 分 | 用途地域 | 第一種低層住居専用地域 |
| 築年月 | 1989年03月(築37年) | ||
| 管理費 | 15,410円 | 修繕積立金 | 21,300円 |
| その他費用 | 町会費(半年毎徴収):250円/月 | ||
| 管理方式 | 全部委託 | 管理会社 | 大和ライフネクスト(株) |
| 管理人 | 日勤 | 現況 | 空室 |
| 引渡し時期 | 相談 | 固定資産税・ 都市計画税 |
| 構造 | 鉄筋コンクリート造(RC) | 建物階数 | 地上5階 |
|---|---|---|---|
| 所在階 | 4階 | 総戸数 | 56 戸 |
| 専有面積 | 壁芯 71.02㎡ | バルコニー面積 | 7.68㎡ |
| 間取り | 3LDK + WIC | 方角 | 南西 |
| 駐車場 | 確認中 : 月額13,000~17,000円 | ||
| バイク置き場 | 確認中 : 年額2,000円 | 駐輪場 | 確認中 : 年額1,000円、ベビーカー年額500円 |
| ペット | 不可 | 事務所利用 |
| 施工会社 | 山田建設(株) | 耐震診断 | |
|---|---|---|---|
| 再建築不可 | 既存不適格 | ||
| その他説明事項 | ※図面と現況が異なる場合は、現況を優先させていただきます。
■アルコーブ面積:0.34㎡ | ||
| その他 |
| 修繕積立金の総額 | 修繕積立金の滞納額 | ||
|---|---|---|---|
| 管理費の滞納額 | 管理組合の借入額 |
| 項目 | リノベーション | 内装完了日 | 2025年10月(下旬) |
|---|---|---|---|
| 内容 | ◆給湯器交換
|
| 位置 | 部屋 | 全居室フローリング | |
|---|---|---|---|
| 収納 | WICあり | キッチン | システムキッチン / 3口以上コンロ |
| 浴室・トイレ・洗面所 | 浴室乾燥機 / 追い焚き / 温水便座洗浄機 | バルコニー | |
| 設備 | その他 | リノベーション / リフォーム | |
| 構造 | 新耐震基準 | 設備 | |
| セキュリティ | モニター付インターホン | 立地・環境 | 学校まで5分 |
情報提供日:2026年03月11日 / 次回更新日:2026年03月25日
| 近隣施設 1 | ローソン 横浜釜利谷東五丁目店 450m |
|---|---|
| 近隣施設 2 | 全日食チェーン川端屋 300m |
| 近隣施設 3 | そうてつローゼン釜利谷店 700m |
| 近隣施設 4 | クリエイトSD(エス・ディー) 金沢釜利谷店 700m |
| 近隣施設 5 | 横浜市立釜利谷小学校 180m |

国土交通大臣(4)第7356号
所属団体名((公社)首都圏不動産公正取引協議会)
◆お問い合わせ対応窓口◆
取引態様:媒介
本サイト運営会社/株式会社FLIE(FLIEエージェント)
東京都中央区京橋1-1-5 セントラルビル3F
免許番号:国土交通大臣(1)第10892号
※売主様が対応可能な場合、直接手続きとなる場合があります。
-----------------------------------------------------------------
新しい住空間の創造を目指した総合住宅ディベロップメント企業である「マイプレイス」は、創業以来”人と地球にやさしい住まい”の追求を企業理念として掲げ、お客様にご満足していただくことを何よりの目標として努力を重ねてまいりました。
~まだ住める家から住みたくなる家へ~
年間800戸を超えるリフォーム実績があり、新築同様の高品質なリノベーションを実現しております。リノベーションマンション累計10,000戸の供給を達成いたしました。
※売主HPより引用
物件価格
仲介手数料:最大59.7万円が不要!
頭金
金利(年)
返済年数
返済総額 円
上記の諸費用が必要となります。
※ このシミュレーションは、あくまでも目安の数値となり、お借り入れを保証するものではありません。
※ 実際の購入・借り入れにあたっては、金融機関でご確認いただくか、「お問い合わせ」よりご相談ください。
※ 諸費用を含めた住宅ローンのご提案も承っておりますので、お気軽にご相談ください。
コスモ金沢文庫ルシード
無料通話番号
不動産取引の新しい常識へ
「買主と売主が自由に安心して直接取引できる不動産プラットフォーム」を目指しています。