

◆◆ GW休暇のお知らせ ◆◆
拝啓 時下ますますご清祥のこととお慶び申し上げます。
平素は格別のお引き立てを賜り厚く御礼申し上げます。
誠に勝手ながら、以下の期間を休業とさせていただきます。
****************************************
ゴールデンウィーク休暇期間
2026年5月2日(土)~2026年5月6日(水)
****************************************
※休業期間中にお問い合わせいただきました件に関しては、
2026年5月7日(木)より順次ご対応させていただきます。
ご迷惑をお掛けいたしますが、何卒ご了承くださいますよう宜しくお願い申し上げます。
敬具
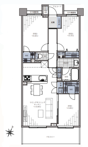
3LDK + 2W/70.78㎡
物件価格
8,999万円
仲介手数料:最大275.9万円が不要!
頭金0円で月々万円台よりご購入可能
月々の支払金額
円※ このシミュレーションには、諸費用・管理費・修繕積立金等は含まれておりません。あくまでも目安の数値となり、お借り入れを保証するものではありませんので、
実際の購入・借り入れにあたっては、金融機関でご確認いただくか、「お問い合わせ」よりご相談ください。
管理費 : 9,900円 / 修繕積立金 : 11,680円
投資用
ペット可
事務所可
宅配ボックス
オートロック
新耐震
フラット35S
フラット35
リノベーション
R1住宅
リフォーム
◆池上線「雪が谷大塚」駅徒歩7分
◆複数の商店街があり充実した住環境
◆南向き5階のため陽当たり眺望良好、ペット飼育可(一住戸二匹まで)

「石川台」駅徒歩6分、2駅利用可能な好立地。陽光あふれる南東向き5階部分、眺望も良好です。室内は新規リフォームにより水回りや内装を一新。食洗機やWICなど人気の設備が揃い、快適な暮らしをサポートします。大切なペットと2匹まで暮らせるのも魅力(細則有)。商店街至近で日々の買い物も便利です。
室内の照明等を点灯せず、自然光の明るさを計測しております。計測期間の平均値を使用しております。
| 100ルクス以下 | 100~200ルクス | 200~500ルクス | 500~750ルクス | 750ルクス以上 |
|---|---|---|---|---|
人々のさまざまな活動が安全・快適に行える環境を作るために、推奨する照度基準を定めたもので、作業内容や空間の用途に応じて推奨照度が設定されています。JIS照明基準では、200lx(ルクス)をリビングでの団らんや娯楽(軽い読書も含む)に推奨される照度と定めており、200ルクス以上の照度が取れていれば自然光でもリラックスして過ごすことができます。
勉強やPC作業等の作業は750ルクス以上が必要とされており、裁縫等のさらに緻密な作業には1000以上のルクスが推奨されています。
計測期間の平均値を使用しております。
| 70デシベル以上(地下鉄の車内・ 蝉の声) | 60~70デシベル(ファミレス・ コーヒーショップ店内) | 50~60デシベル(書店の店内・ 役所の窓口周辺) | 40~50デシベル(図書館の館内・美術館の館内) | 30~40デシベル(ホテルの室内) |
|---|---|---|---|---|
※参考:環境省
| マンション名 | フェアロージュ南雪谷 | 住所 | 東京都大田区南雪谷1丁目20-2 |
|---|---|---|---|
| 価格 | 8,999万円 購入シミュレーションClose 購入シミュレーション物件価格 8,999万円 仲介手数料:最大275.9万円が不要! 頭金 08,999 金利(年) 05.000 返済年数 145 借入金額 万円 月々の支払金額 円 返済総額 円 諸費用概算 約万円 上記の諸費用が必要となります。 ※ 借入条件を(物件価格、期間35年)で算出。 ※ 借地権の際は誤差が生じます。 ※ このシミュレーションは、あくまでも目安の数値となり、お借り入れを保証するものではありません。 | 土地権利 | 所有権 |
| 交通 | 東急池上線 石川台駅 まで 徒歩 6 分 東急池上線 雪が谷大塚駅 まで 徒歩 7 分 | 用途地域 | |
| 築年月 | 2000年01月(築26年) | ||
| 管理費 | 9,900円 | 修繕積立金 | 11,680円 |
| その他費用 | |||
| 管理方式 | 全部委託 | 管理会社 | (株)日鉄コミュニティ |
| 管理人 | 日勤 | 現況 | 空室 |
| 引渡し時期 | 相談 | 固定資産税・ 都市計画税 |
| 構造 | 鉄筋コンクリート造(RC) | 建物階数 | 地上7階 |
|---|---|---|---|
| 所在階 | 5階 | 総戸数 | 65 戸 |
| 専有面積 | 壁芯 70.78㎡ | バルコニー面積 | 11.49㎡ |
| 間取り | 3LDK + 2W | 方角 | 南東 |
| 駐車場 | 確認中 : 月額23,500~27,000円 | ||
| バイク置き場 | 確認中 : 月額1,000円 | 駐輪場 | 確認中 : 月額300円 |
| ペット | 可 (条件 : 細則有) | 事務所利用 |
| 施工会社 | 耐震診断 | ||
|---|---|---|---|
| 再建築不可 | 既存不適格 | ||
| その他説明事項 | ※販売図面の内容と現況が異なる場合は現況優先とさせていただきます。 | ||
| その他 |
| 修繕積立金の総額 | 修繕積立金の滞納額 | ||
|---|---|---|---|
| 管理費の滞納額 | 管理組合の借入額 |
| 項目 | リフォーム | 内装完了日 | 2026年01月(下旬) |
|---|---|---|---|
| 内容 | フローリング新規貼替
|
| 位置 | 部屋 | LDK15畳以上 | |
|---|---|---|---|
| 収納 | WICあり | キッチン | カウンターキッチン / 食洗機 / 浄水器 / システムキッチン / 3口以上コンロ |
| 浴室・トイレ・洗面所 | 浴室乾燥機 / 追い焚き | バルコニー | |
| 設備 | 全居室収納あり | その他 | リフォーム |
| 構造 | 新耐震基準 | 設備 | |
| セキュリティ | オートロック / モニター付インターホン | 立地・環境 |
情報提供日:2026年04月25日 / 次回更新日:2026年05月09日
| 近隣施設 1 | 石川台希望ヶ丘商店街 130m |
|---|---|
| 近隣施設 2 | 雪ヶ谷児童遊園 350m |
| 近隣施設 3 | LAWSON+toks 石川台駅前店 500m |
| 近隣施設 4 | ピーコックストア 石川台店 500m |
| 近隣施設 5 | 東京都立荏原病院 800m |

国土交通大臣(1)第10414号
所属団体名((公社)首都圏不動産公正取引協議会)
◆お問い合わせ対応窓口◆
取引態様:媒介
本サイト運営会社/株式会社FLIE(FLIEエージェント)
東京都中央区京橋1-1-5 セントラルビル3F
免許番号:国土交通大臣(1)第10892号
※売主様が対応可能な場合、直接手続きとなる場合があります。
-----------------------------
市場に眠っている誰もが気付かないような価値のある物件を見つけ出し、リノベーションでその価値を最大限に引き出し再び市場へ提供することが、私たちの使命です。
※売主HPより引用
物件価格
仲介手数料:最大275.9万円が不要!
頭金
金利(年)
返済年数
返済総額 円
上記の諸費用が必要となります。
※ このシミュレーションは、あくまでも目安の数値となり、お借り入れを保証するものではありません。
※ 実際の購入・借り入れにあたっては、金融機関でご確認いただくか、「お問い合わせ」よりご相談ください。
※ 諸費用を含めた住宅ローンのご提案も承っておりますので、お気軽にご相談ください。
フェアロージュ南雪谷
無料通話番号
不動産取引の新しい常識へ
「買主と売主が自由に安心して直接取引できる不動産プラットフォーム」を目指しています。