













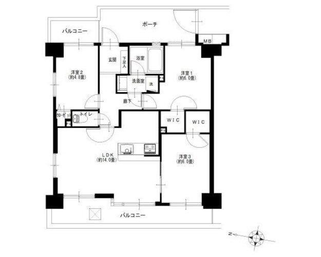
3LDK + 2WIC/66.86㎡
物件価格
4,990万円
仲介手数料:最大155.7万円が不要!
頭金0円で月々万円台よりご購入可能
月々の支払金額
円※ このシミュレーションには、諸費用・管理費・修繕積立金等は含まれておりません。あくまでも目安の数値となり、お借り入れを保証するものではありませんので、
実際の購入・借り入れにあたっては、金融機関でご確認いただくか、「お問い合わせ」よりご相談ください。
管理費 : 14,590円 / 修繕積立金 : 11,370円
投資用
ペット可
事務所可
宅配ボックス
オートロック
新耐震
フラット35S
フラット35
リノベーション
R1住宅
リフォーム
○オートロック・宅配ボックス付きマンション
○駐車場1住戸1区画完備!無償で利用可能です♪
○犬・猫2匹まで飼育可(細則あり)
○最上階・角住戸、風通しがよく開放感のある室内♪
○ウォークインクローゼットを2か所新設し、豊富な収納スペースをご用意
○湘南台駅東口前にある「ダイエー 湘南台店」は23時まで営業!仕事帰りの買い物にも便利です
《アフターサービス保証付》

小田急・相鉄線「湘南台」駅徒歩6分。陽光と風が心地よい最上階・角住戸がリノベーションで美しく一新。WICを2か所備え収納も豊富です。大切なペット2匹(犬・猫)と暮らせ、駐車場も1台無償で利用可能。スーパーやコンビニ至近で生活至便。オートロック・宅配ボックス完備、アフターサービス保証付で安心の新生活を。
室内の照明等を点灯せず、自然光の明るさを計測しております。計測期間の平均値を使用しております。
| 100ルクス以下 | 100~200ルクス | 200~500ルクス | 500~750ルクス | 750ルクス以上 |
|---|---|---|---|---|
人々のさまざまな活動が安全・快適に行える環境を作るために、推奨する照度基準を定めたもので、作業内容や空間の用途に応じて推奨照度が設定されています。JIS照明基準では、200lx(ルクス)をリビングでの団らんや娯楽(軽い読書も含む)に推奨される照度と定めており、200ルクス以上の照度が取れていれば自然光でもリラックスして過ごすことができます。
勉強やPC作業等の作業は750ルクス以上が必要とされており、裁縫等のさらに緻密な作業には1000以上のルクスが推奨されています。
計測期間の平均値を使用しております。
| 70デシベル以上(地下鉄の車内・ 蝉の声) | 60~70デシベル(ファミレス・ コーヒーショップ店内) | 50~60デシベル(書店の店内・ 役所の窓口周辺) | 40~50デシベル(図書館の館内・美術館の館内) | 30~40デシベル(ホテルの室内) |
|---|---|---|---|---|
※参考:環境省
| マンション名 | ナイスステージ湘南台 | 住所 | 神奈川県藤沢市湘南台4丁目11-13 |
|---|---|---|---|
| 価格 | 4,990万円 購入シミュレーションClose 購入シミュレーション物件価格 4,990万円 仲介手数料:最大155.7万円が不要! 頭金 04,990 金利(年) 05.000 返済年数 145 借入金額 万円 月々の支払金額 円 返済総額 円 諸費用概算 約万円 上記の諸費用が必要となります。 ※ 借入条件を(物件価格、期間35年)で算出。 ※ 借地権の際は誤差が生じます。 ※ このシミュレーションは、あくまでも目安の数値となり、お借り入れを保証するものではありません。 | 土地権利 | 所有権 |
| 交通 | 小田急電鉄江ノ島線 湘南台駅 まで 徒歩 6 分 相模鉄道いずみ野線 湘南台駅 まで 徒歩 6 分 | 用途地域 | 第一種住居地域 |
| 築年月 | 1997年09月(築29年) | ||
| 管理費 | 14,590円 | 修繕積立金 | 11,370円 |
| その他費用 | |||
| 管理方式 | 全部委託 | 管理会社 | (株)合人社計画研究所 |
| 管理人 | 日勤 | 現況 | 空室 |
| 引渡し時期 | 相談 | 固定資産税・ 都市計画税 |
| 構造 | 鉄筋コンクリート造(RC) | 建物階数 | 地上6階 |
|---|---|---|---|
| 所在階 | 6階 | 総戸数 | 62 戸 |
| 専有面積 | 壁芯 66.86㎡ | バルコニー面積 | 14.36㎡ |
| 間取り | 3LDK + 2WIC | 方角 | 西 |
| 駐車場 | 確認中 : 1住戸1区画専用使用権有(無償) | ||
| バイク置き場 | 確認中 : 月額2,000円 | 駐輪場 | 確認中 : 年額2,400円 |
| ペット | 可 (条件 : 犬猫1住戸2匹まで飼育可(細則有)) | 事務所利用 |
| 施工会社 | (株)長谷工コーポレーション | 耐震診断 | |
|---|---|---|---|
| 再建築不可 | 既存不適格 | ||
| その他説明事項 | ※図面と現況が異なる場合は、現況を優先させていただきます。
■ポーチ面積:9.69㎡
| ||
| その他 |
| 修繕積立金の総額 | 修繕積立金の滞納額 | ||
|---|---|---|---|
| 管理費の滞納額 | 管理組合の借入額 |
| 項目 | リノベーション | 内装完了日 | 2026年03月(上旬) |
|---|---|---|---|
| 内容 | ◆給湯器交換
※内装完了日については別途お問い合わせください。 |
| 位置 | 角部屋 / 最上階 | 部屋 | 全居室フローリング |
|---|---|---|---|
| 収納 | WICあり | キッチン | カウンターキッチン / 浄水器 / システムキッチン / 3口以上コンロ |
| 浴室・トイレ・洗面所 | 浴室乾燥機 / 追い焚き / 温水便座洗浄機 | バルコニー | 2面バルコニー |
| 設備 | その他 | リノベーション / リフォーム | |
| 構造 | 新耐震基準 | 設備 | 宅配ボックス / エレベーター |
| セキュリティ | モニター付インターホン | 立地・環境 | コンビニまで3分 / 2沿線以上利用可 |
情報提供日:2026年03月11日 / 次回更新日:2026年03月25日
| 近隣施設 1 | ローソン 藤沢湘南台店 50m |
|---|---|
| 近隣施設 2 | ビッグパワー 新鮮湘南台市場 270m |
| 近隣施設 3 | 湘南台ウエストプラザ 400m |
| 近隣施設 4 | ドラッグセイムス 湘南台店 280m |
| 近隣施設 5 | つばめのこ保育園湘南台 200m |

国土交通大臣(4)第7356号
所属団体名((公社)首都圏不動産公正取引協議会)
◆お問い合わせ対応窓口◆
取引態様:媒介
本サイト運営会社/株式会社FLIE(FLIEエージェント)
東京都中央区京橋1-1-5 セントラルビル3F
免許番号:国土交通大臣(1)第10892号
※売主様が対応可能な場合、直接手続きとなる場合があります。
-----------------------------------------------------------------
新しい住空間の創造を目指した総合住宅ディベロップメント企業である「マイプレイス」は、創業以来”人と地球にやさしい住まい”の追求を企業理念として掲げ、お客様にご満足していただくことを何よりの目標として努力を重ねてまいりました。
~まだ住める家から住みたくなる家へ~
年間800戸を超えるリフォーム実績があり、新築同様の高品質なリノベーションを実現しております。リノベーションマンション累計10,000戸の供給を達成いたしました。
※売主HPより引用
物件価格
仲介手数料:最大155.7万円が不要!
頭金
金利(年)
返済年数
返済総額 円
上記の諸費用が必要となります。
※ このシミュレーションは、あくまでも目安の数値となり、お借り入れを保証するものではありません。
※ 実際の購入・借り入れにあたっては、金融機関でご確認いただくか、「お問い合わせ」よりご相談ください。
※ 諸費用を含めた住宅ローンのご提案も承っておりますので、お気軽にご相談ください。
ナイスステージ湘南台
無料通話番号
不動産取引の新しい常識へ
「買主と売主が自由に安心して直接取引できる不動産プラットフォーム」を目指しています。