

◆◆ GW休暇のお知らせ ◆◆
拝啓 時下ますますご清祥のこととお慶び申し上げます。
平素は格別のお引き立てを賜り厚く御礼申し上げます。
誠に勝手ながら、以下の期間を休業とさせていただきます。
****************************************
ゴールデンウィーク休暇期間
2026年5月2日(土)~2026年5月6日(水)
****************************************
※休業期間中にお問い合わせいただきました件に関しては、
2026年5月7日(木)より順次ご対応させていただきます。
ご迷惑をお掛けいたしますが、何卒ご了承くださいますよう宜しくお願い申し上げます。
敬具
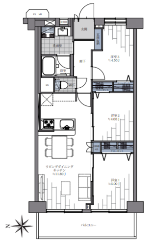
3LDK/61.6㎡
物件価格
4,499万円
仲介手数料:最大140.9万円が不要!
頭金0円で月々万円台よりご購入可能
月々の支払金額
円※ このシミュレーションには、諸費用・管理費・修繕積立金等は含まれておりません。あくまでも目安の数値となり、お借り入れを保証するものではありませんので、
実際の購入・借り入れにあたっては、金融機関でご確認いただくか、「お問い合わせ」よりご相談ください。
管理費 : 9,980円 / 修繕積立金 : 17,090円 / その他費用 : 組合費:月額500円
投資用
ペット可
事務所可
宅配ボックス
オートロック
新耐震
フラット35S
フラット35
リノベーション
R1住宅
リフォーム
長谷工不動産(株)旧分譲
総戸数156戸、新耐震基準適合物件
日当たり・眺望良好!
工事履歴
2024年 非常警報設備更新工事
2024年 増圧給水ポンプ分解整備工事
2023年 共用部排水管改修工事
2012年 大規模修繕工事

新耐震基準適合、管理体制も良好な総戸数156戸の大規模マンション。室内はフルリノベーションにより、快適な3LDKへ生まれ変わりました。10階建ての8階部分につき、陽当たり・眺望は良好。食洗機や浴室乾燥機など暮らしを彩る設備も充実しています。公園や小学校も至近で、子育て世帯にも嬉しい住環境です。
室内の照明等を点灯せず、自然光の明るさを計測しております。計測期間の平均値を使用しております。
| 100ルクス以下 | 100~200ルクス | 200~500ルクス | 500~750ルクス | 750ルクス以上 |
|---|---|---|---|---|
人々のさまざまな活動が安全・快適に行える環境を作るために、推奨する照度基準を定めたもので、作業内容や空間の用途に応じて推奨照度が設定されています。JIS照明基準では、200lx(ルクス)をリビングでの団らんや娯楽(軽い読書も含む)に推奨される照度と定めており、200ルクス以上の照度が取れていれば自然光でもリラックスして過ごすことができます。
勉強やPC作業等の作業は750ルクス以上が必要とされており、裁縫等のさらに緻密な作業には1000以上のルクスが推奨されています。
計測期間の平均値を使用しております。
| 70デシベル以上(地下鉄の車内・ 蝉の声) | 60~70デシベル(ファミレス・ コーヒーショップ店内) | 50~60デシベル(書店の店内・ 役所の窓口周辺) | 40~50デシベル(図書館の館内・美術館の館内) | 30~40デシベル(ホテルの室内) |
|---|---|---|---|---|
※参考:環境省
| マンション名 | 芦花公園スカイハイツ | 住所 | 東京都世田谷区千歳台4丁目26-2 |
|---|---|---|---|
| 価格 | 4,499万円 購入シミュレーションClose 購入シミュレーション物件価格 4,499万円 仲介手数料:最大140.9万円が不要! 頭金 04,499 金利(年) 05.000 返済年数 145 借入金額 万円 月々の支払金額 円 返済総額 円 諸費用概算 約万円 上記の諸費用が必要となります。 ※ 借入条件を(物件価格、期間35年)で算出。 ※ 借地権の際は誤差が生じます。 ※ このシミュレーションは、あくまでも目安の数値となり、お借り入れを保証するものではありません。 | 土地権利 | 所有権 |
| 交通 | 京王電鉄京王線 八幡山駅 まで 徒歩 18 分 京王電鉄京王線 芦花公園駅 まで 徒歩 21 分 小田急電鉄小田原線 千歳船橋駅 まで 徒歩 22 分 | 用途地域 | |
| 築年月 | 1978年03月(築48年) | ||
| 管理費 | 9,980円 | 修繕積立金 | 17,090円 |
| その他費用 | 組合費:月額500円 | ||
| 管理方式 | 全部委託 | 管理会社 | (株)東急コミュニティー |
| 管理人 | 日勤 | 現況 | 空室 |
| 引渡し時期 | 相談 | 固定資産税・ 都市計画税 |
| 構造 | 鉄骨鉄筋コンクリート造(SRC) | 建物階数 | 地上10階 |
|---|---|---|---|
| 所在階 | 8階 | 総戸数 | 156 戸 |
| 専有面積 | 壁芯 61.6㎡ | バルコニー面積 | 7.6㎡ |
| 間取り | 3LDK | 方角 | 西 |
| 駐車場 | 確認中 | ||
| バイク置き場 | 確認中 | 駐輪場 | 確認中 |
| ペット | 不可 | 事務所利用 |
| 施工会社 | 長谷川工務店 | 耐震診断 | |
|---|---|---|---|
| 再建築不可 | 既存不適格 | ||
| その他説明事項 | ※販売図面の内容と現況が異なる場合は現況優先とさせていただきます。
◇駐車場:有(月額18,000円)
| ||
| その他 |
| 修繕積立金の総額 | 修繕積立金の滞納額 | ||
|---|---|---|---|
| 管理費の滞納額 | 管理組合の借入額 |
| 項目 | リノベーション | 内装完了日 | 2026年03月(下旬) |
|---|---|---|---|
| 内容 | フローリング新規貼替
|
| 位置 | 部屋 | 全居室フローリング | |
|---|---|---|---|
| 収納 | キッチン | カウンターキッチン / 食洗機 / 浄水器 / システムキッチン / 3口以上コンロ | |
| 浴室・トイレ・洗面所 | 浴室乾燥機 / 追い焚き | バルコニー | |
| 設備 | 全居室収納あり | その他 | リノベーション / リフォーム |
| 構造 | 新耐震基準 | 設備 | エレベーター |
| セキュリティ | モニター付インターホン | 立地・環境 | コンビニまで3分 / 公園まで3分 / 2沿線以上利用可 |
情報提供日:2026年05月03日 / 次回更新日:2026年05月17日
| 近隣施設 1 | 廻沢小緑地 46m |
|---|---|
| 近隣施設 2 | 船橋西保育園 79m |
| 近隣施設 3 | ファミリーマート 千歳台四丁目店 90m |
| 近隣施設 4 | フレンズケア 92m |
| 近隣施設 5 | 世田谷区立千歳台小学校 123m |

国土交通大臣(1)第10414号
所属団体名((公社)首都圏不動産公正取引協議会)
◆お問い合わせ対応窓口◆
取引態様:媒介
本サイト運営会社/株式会社FLIE(FLIEエージェント)
東京都中央区京橋1-1-5 セントラルビル3F
免許番号:国土交通大臣(1)第10892号
※売主様が対応可能な場合、直接手続きとなる場合があります。
-----------------------------
市場に眠っている誰もが気付かないような価値のある物件を見つけ出し、リノベーションでその価値を最大限に引き出し再び市場へ提供することが、私たちの使命です。
※売主HPより引用
物件価格
仲介手数料:最大140.9万円が不要!
頭金
金利(年)
返済年数
返済総額 円
上記の諸費用が必要となります。
※ このシミュレーションは、あくまでも目安の数値となり、お借り入れを保証するものではありません。
※ 実際の購入・借り入れにあたっては、金融機関でご確認いただくか、「お問い合わせ」よりご相談ください。
※ 諸費用を含めた住宅ローンのご提案も承っておりますので、お気軽にご相談ください。
最近見た物件
芦花公園スカイハイツ
無料通話番号
不動産取引の新しい常識へ
「買主と売主が自由に安心して直接取引できる不動産プラットフォーム」を目指しています。