

◆◆ GW休暇のお知らせ ◆◆
拝啓 時下ますますご清祥のこととお慶び申し上げます。
平素は格別のお引き立てを賜り厚く御礼申し上げます。
誠に勝手ながら、以下の期間を休業とさせていただきます。
****************************************
ゴールデンウィーク休暇期間
2026年5月2日(土)~2026年5月6日(水)
****************************************
※休業期間中にお問い合わせいただきました件に関しては、
2026年5月7日(木)より順次ご対応させていただきます。
ご迷惑をお掛けいたしますが、何卒ご了承くださいますよう宜しくお願い申し上げます。
敬具
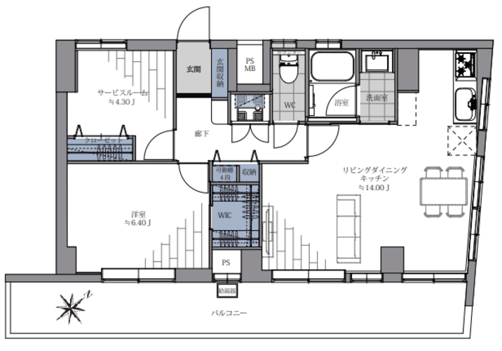
1SLDK/60.46㎡
物件価格
6,499万円
仲介手数料:最大200.9万円が不要!
頭金0円で月々万円台よりご購入可能
月々の支払金額
円※ このシミュレーションには、諸費用・管理費・修繕積立金等は含まれておりません。あくまでも目安の数値となり、お借り入れを保証するものではありませんので、
実際の購入・借り入れにあたっては、金融機関でご確認いただくか、「お問い合わせ」よりご相談ください。
管理費 : 16,360円 / 修繕積立金 : 31,380円 / その他費用 : 組合費(外部オーナー):月額500円~1,000円
投資用
ペット可
事務所可
宅配ボックス
オートロック
新耐震
フラット35S
フラット35
リノベーション
R1住宅
リフォーム
複数路線利用可能な「中野」駅徒歩2分!
再開発進行中で利便性の高まる中野エリア!
角部屋の為全居室採光有!
事務所利用可※条件有
工事履歴
2025年 排水ポンプ不具合修正
2024年 直結給水設備整備工事
2022年 共用部改修工事
2022年 掲示板設置工事

再開発で進化を続ける「中野」駅より徒歩2分の好立地。室内はフルリノベーションされ、新築同様の住空間が広がります。7階建6階部分、陽光溢れる南東角部屋。WICや納戸付きで収納も豊富です。オートロックや宅配ボックスに加え、管理員常駐で安心。利便性と快適性を兼ね備えた都市型レジデンスです。
室内の照明等を点灯せず、自然光の明るさを計測しております。計測期間の平均値を使用しております。
| 100ルクス以下 | 100~200ルクス | 200~500ルクス | 500~750ルクス | 750ルクス以上 |
|---|---|---|---|---|
人々のさまざまな活動が安全・快適に行える環境を作るために、推奨する照度基準を定めたもので、作業内容や空間の用途に応じて推奨照度が設定されています。JIS照明基準では、200lx(ルクス)をリビングでの団らんや娯楽(軽い読書も含む)に推奨される照度と定めており、200ルクス以上の照度が取れていれば自然光でもリラックスして過ごすことができます。
勉強やPC作業等の作業は750ルクス以上が必要とされており、裁縫等のさらに緻密な作業には1000以上のルクスが推奨されています。
計測期間の平均値を使用しております。
| 70デシベル以上(地下鉄の車内・ 蝉の声) | 60~70デシベル(ファミレス・ コーヒーショップ店内) | 50~60デシベル(書店の店内・ 役所の窓口周辺) | 40~50デシベル(図書館の館内・美術館の館内) | 30~40デシベル(ホテルの室内) |
|---|---|---|---|---|
※参考:環境省
| マンション名 | 中野住研コーポ | 住所 | 東京都中野区中野3丁目34-3 |
|---|---|---|---|
| 価格 | 6,499万円 購入シミュレーションClose 購入シミュレーション物件価格 6,499万円 仲介手数料:最大200.9万円が不要! 頭金 06,499 金利(年) 05.000 返済年数 145 借入金額 万円 月々の支払金額 円 返済総額 円 諸費用概算 約万円 上記の諸費用が必要となります。 ※ 借入条件を(物件価格、期間35年)で算出。 ※ 借地権の際は誤差が生じます。 ※ このシミュレーションは、あくまでも目安の数値となり、お借り入れを保証するものではありません。 | 土地権利 | 所有権 |
| 交通 | 中央本線 中野駅 まで 徒歩 2 分 東京地下鉄丸ノ内線 新中野駅 まで 徒歩 12 分 東京地下鉄丸ノ内線 東高円寺駅 まで 徒歩 14 分 | 用途地域 | 商業地域 |
| 築年月 | 1968年06月(築58年) | ||
| 管理費 | 16,360円 | 修繕積立金 | 31,380円 |
| その他費用 | 組合費(外部オーナー):月額500円~1,000円 | ||
| 管理方式 | 全部委託 | 管理会社 | (株)秀栄興産 |
| 管理人 | 常駐 | 現況 | 空室 |
| 引渡し時期 | 相談 | 固定資産税・ 都市計画税 |
| 構造 | 鉄筋コンクリート造(RC) | 建物階数 | 地上7階 |
|---|---|---|---|
| 所在階 | 6階 | 総戸数 | 61 戸 |
| 専有面積 | 壁芯 60.46㎡ | バルコニー面積 | 19.74㎡ |
| 間取り | 1SLDK | 方角 | 南東 |
| 駐車場 | なし | ||
| バイク置き場 | なし | 駐輪場 | 確認中 |
| ペット | 不可 | 事務所利用 | 可 |
| 施工会社 | 西松建設 | 耐震診断 | |
|---|---|---|---|
| 再建築不可 | 既存不適格 | ||
| その他説明事項 | ※販売図面の内容と現況が異なる場合は現況優先とさせていただきます。
◇駐車場:無
| ||
| その他 |
| 修繕積立金の総額 | 修繕積立金の滞納額 | ||
|---|---|---|---|
| 管理費の滞納額 | 管理組合の借入額 |
| 項目 | リノベーション | 内装完了日 | 2026年04月(下旬) |
|---|---|---|---|
| 内容 | フローリング新規貼替
|
| 位置 | 角部屋 | 部屋 | 全居室フローリング |
|---|---|---|---|
| 収納 | WICあり / 納戸あり | キッチン | 浄水器 / システムキッチン / 3口以上コンロ |
| 浴室・トイレ・洗面所 | 浴室乾燥機 / 浴室に窓 | バルコニー | |
| 設備 | その他 | リノベーション / リフォーム | |
| 構造 | 設備 | 24時間ゴミ / 宅配ボックス / エレベーター | |
| セキュリティ | オートロック / モニター付インターホン / 防犯カメラ | 立地・環境 | スーパーまで5分 / コンビニまで3分 / 2沿線以上利用可 |
情報提供日:2026年04月23日 / 次回更新日:2026年05月07日
| 近隣施設 1 | 中野下肢静脈瘤クリニック 東京中央美容外科 30m |
|---|---|
| 近隣施設 2 | 東京中央美容外科中野院 34m |
| 近隣施設 3 | 中野下肢静脈瘤クリニック 34m |
| 近隣施設 4 | おおた歯科クリニック 41m |
| 近隣施設 5 | 矢野クリニック 53m |

国土交通大臣(1)第10414号
所属団体名((公社)首都圏不動産公正取引協議会)
◆お問い合わせ対応窓口◆
取引態様:媒介
本サイト運営会社/株式会社FLIE(FLIEエージェント)
東京都中央区京橋1-1-5 セントラルビル3F
免許番号:国土交通大臣(1)第10892号
※売主様が対応可能な場合、直接手続きとなる場合があります。
-----------------------------
市場に眠っている誰もが気付かないような価値のある物件を見つけ出し、リノベーションでその価値を最大限に引き出し再び市場へ提供することが、私たちの使命です。
※売主HPより引用
物件価格
仲介手数料:最大200.9万円が不要!
頭金
金利(年)
返済年数
返済総額 円
上記の諸費用が必要となります。
※ このシミュレーションは、あくまでも目安の数値となり、お借り入れを保証するものではありません。
※ 実際の購入・借り入れにあたっては、金融機関でご確認いただくか、「お問い合わせ」よりご相談ください。
※ 諸費用を含めた住宅ローンのご提案も承っておりますので、お気軽にご相談ください。
中野住研コーポ
無料通話番号
不動産取引の新しい常識へ
「買主と売主が自由に安心して直接取引できる不動産プラットフォーム」を目指しています。