

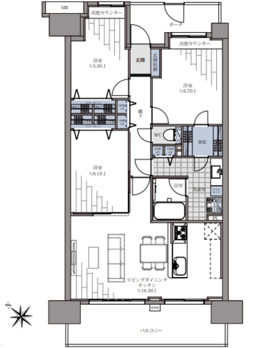
3LDK + WIC/81.62㎡
物件価格
8,199万円
仲介手数料:最大251.9万円が不要!
頭金0円で月々万円台よりご購入可能
月々の支払金額
円※ このシミュレーションには、諸費用・管理費・修繕積立金等は含まれておりません。あくまでも目安の数値となり、お借り入れを保証するものではありませんので、
実際の購入・借り入れにあたっては、金融機関でご確認いただくか、「お問い合わせ」よりご相談ください。
管理費 : 19,900円 / 修繕積立金 : 10,440円 / その他費用 : 自治会費:月額100円
投資用
ペット可
事務所可
宅配ボックス
オートロック
新耐震
フラット35S
フラット35
リノベーション
R1住宅
リフォーム
充実した共用施設が日常を格上げする、大規模レジデンス
(天然温泉・プール・サウナ・フィットネスルーム・カフェラウンジ等)
ペット飼育可(一住戸二匹まで)
【工事履歴】
2025年 コージェネ設備更新工事
2024年 排水管漏水対応工事
2024年 プール天井改修工事
【周辺環境】
■東武ストア下丸子店・・・・・・・約110m
■大田区立矢口中学校・・・・・・・約210m
■ファミリーマート下丸子店・・・約400m
■オリンピック下丸子店・・・・・・・約900m
■大田区立多摩川小学校・・・・・・約1km

【物件担当(FLIEエージェント):坂斉(さかさい)】
※お気軽にお問い合わせください。
室内の照明等を点灯せず、自然光の明るさを計測しております。計測期間の平均値を使用しております。
| 100ルクス以下 | 100~200ルクス | 200~500ルクス | 500~750ルクス | 750ルクス以上 |
|---|---|---|---|---|
人々のさまざまな活動が安全・快適に行える環境を作るために、推奨する照度基準を定めたもので、作業内容や空間の用途に応じて推奨照度が設定されています。JIS照明基準では、200lx(ルクス)をリビングでの団らんや娯楽(軽い読書も含む)に推奨される照度と定めており、200ルクス以上の照度が取れていれば自然光でもリラックスして過ごすことができます。
勉強やPC作業等の作業は750ルクス以上が必要とされており、裁縫等のさらに緻密な作業には1000以上のルクスが推奨されています。
計測期間の平均値を使用しております。
| 70デシベル以上(地下鉄の車内・ 蝉の声) | 60~70デシベル(ファミレス・ コーヒーショップ店内) | 50~60デシベル(書店の店内・ 役所の窓口周辺) | 40~50デシベル(図書館の館内・美術館の館内) | 30~40デシベル(ホテルの室内) |
|---|---|---|---|---|
※参考:環境省
| マンション名 | 東京サーハウスガーデンポート | 住所 | 東京都大田区下丸子2丁目13-5 |
|---|---|---|---|
| 価格 | 8,199万円 購入シミュレーションClose 購入シミュレーション物件価格 8,199万円 仲介手数料:最大251.9万円が不要! 頭金 08,199 金利(年) 05.000 返済年数 145 借入金額 万円 月々の支払金額 円 返済総額 円 諸費用概算 約万円 上記の諸費用が必要となります。 ※ 借入条件を(物件価格、期間35年)で算出。 ※ 借地権の際は誤差が生じます。 ※ このシミュレーションは、あくまでも目安の数値となり、お借り入れを保証するものではありません。 | 土地権利 | 所有権 |
| 交通 | 東急多摩川線 下丸子駅 まで 徒歩 11 分 | 用途地域 | |
| 築年月 | 2003年08月(築22年) | ||
| 管理費 | 19,900円 | 修繕積立金 | 10,440円 |
| その他費用 | 自治会費:月額100円 | ||
| 管理方式 | 全部委託 | 管理会社 | (株)長谷工コミュニティ |
| 管理人 | 日勤 | 現況 | 空室 |
| 引渡し時期 | 相談 | 固定資産税・ 都市計画税 |
| 構造 | 鉄筋コンクリート造(RC) | 建物階数 | 地上15階 |
|---|---|---|---|
| 所在階 | 3階 | 総戸数 | 758 戸 |
| 専有面積 | 壁芯 81.62㎡ | バルコニー面積 | 14.0㎡ |
| 間取り | 3LDK + WIC | 方角 | 南西 |
| 駐車場 | 確認中 : 月額13,000~20,000円 | ||
| バイク置き場 | 確認中 : 月額2,000~4,000円 | 駐輪場 | 確認中 : 月額300~600円 |
| ペット | 可 (条件 : 相談可(飼育細則有)) | 事務所利用 |
| 施工会社 | (株)長谷工コーポレーション、大成建設(株) | 耐震診断 | |
|---|---|---|---|
| 再建築不可 | 既存不適格 | ||
| その他説明事項 | ※販売図面の内容と現況が異なる場合は現況優先とさせていただきます。 ◇ポーチ面積:8.04㎡
| ||
| その他 |
| 修繕積立金の総額 | 修繕積立金の滞納額 | ||
|---|---|---|---|
| 管理費の滞納額 | 管理組合の借入額 |
| 項目 | リフォーム | 内装完了日 | 2025年09月(中旬) |
|---|---|---|---|
| 内容 | フローリング新規貼替
|
| 位置 | 部屋 | LDK15畳以上 / 全居室フローリング | |
|---|---|---|---|
| 収納 | WICあり | キッチン | カウンターキッチン / 食洗機 / 浄水器 / システムキッチン |
| 浴室・トイレ・洗面所 | 浴室乾燥機 / 追い焚き / 温水便座洗浄機 / 三面鏡 | バルコニー | |
| 設備 | 全居室収納あり / ポーチ | その他 | リノベーション / リフォーム |
| 構造 | 新耐震基準 | 設備 | 24時間ゴミ / 宅配ボックス / コンシェルジュあり / フィットネス / プール / エレベーター |
| セキュリティ | オートロック / モニター付インターホン / 防犯カメラ | 立地・環境 | 学校まで5分 / スーパーまで5分 / コンビニまで3分 |

国土交通大臣(1)第10414号
公正取引協議会加盟事業者((公社)首都圏不動産公正取引協議会)
◆お問い合わせ対応窓口◆
取引態様:媒介
本サイト運営会社/株式会社FLIE(FLIEエージェント)
東京都中央区京橋1-1-5 セントラルビル3F
免許番号:国土交通大臣(1)第10892号
※売主様が対応可能な場合、直接手続きとなる場合があります。
-----------------------------
市場に眠っている誰もが気付かないような価値のある物件を見つけ出し、リノベーションでその価値を最大限に引き出し再び市場へ提供することが、私たちの使命です。
※売主HPより引用
物件価格
仲介手数料:最大251.9万円が不要!
頭金
金利(年)
返済年数
返済総額 円
上記の諸費用が必要となります。
※ このシミュレーションは、あくまでも目安の数値となり、お借り入れを保証するものではありません。
※ 実際の購入・借り入れにあたっては、金融機関でご確認いただくか、「お問い合わせ」よりご相談ください。
※ 諸費用を含めた住宅ローンのご提案も承っておりますので、お気軽にご相談ください。
最近見た物件
東京サーハウスガーデンポート
無料通話番号
不動産取引の新しい常識へ
「買主と売主が自由に安心して直接取引できる不動産プラットフォーム」を目指しています。