

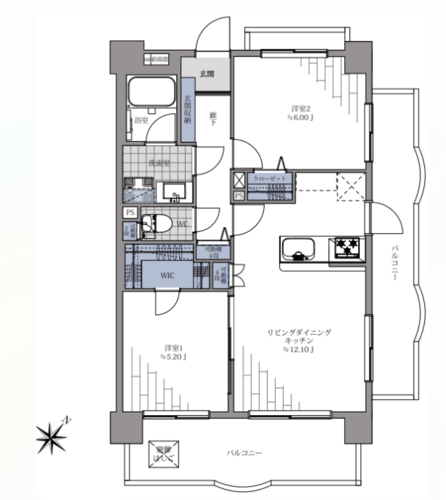
2LDK + W/55.8㎡
物件価格
10,480万円
仲介手数料:最大320.4万円が不要!
頭金0円で月々万円台よりご購入可能
月々の支払金額
円※ このシミュレーションには、諸費用・管理費・修繕積立金等は含まれておりません。あくまでも目安の数値となり、お借り入れを保証するものではありませんので、
実際の購入・借り入れにあたっては、金融機関でご確認いただくか、「お問い合わせ」よりご相談ください。
管理費 : 18,500円 / 修繕積立金 : 20,380円
投資用
ペット可
事務所可
宅配ボックス
オートロック
新耐震
フラット35S
フラット35
リノベーション
R1住宅
リフォーム
◆東京メトロ東西線「神楽坂」駅徒歩6分!
◆角住戸、2面バルコニーにつき陽あたり眺望良好!
◆イベントで賑い歴史感じる「地蔵通り商店街」至近!

有楽町線「江戸川橋」駅徒歩4分、情緒あふれる「神楽坂」も生活圏の好立地。10階部分の南東角住戸で、2面バルコニーから注ぐ陽光と開放的な眺望が魅力です。室内はリフォームにより水回り設備や内装を一新。大切なペットと一緒に新生活を始められます(規約有)。WICや食洗機など設備も充実し、快適な毎日をサポートします。
室内の照明等を点灯せず、自然光の明るさを計測しております。計測期間の平均値を使用しております。
| 100ルクス以下 | 100~200ルクス | 200~500ルクス | 500~750ルクス | 750ルクス以上 |
|---|---|---|---|---|
人々のさまざまな活動が安全・快適に行える環境を作るために、推奨する照度基準を定めたもので、作業内容や空間の用途に応じて推奨照度が設定されています。JIS照明基準では、200lx(ルクス)をリビングでの団らんや娯楽(軽い読書も含む)に推奨される照度と定めており、200ルクス以上の照度が取れていれば自然光でもリラックスして過ごすことができます。
勉強やPC作業等の作業は750ルクス以上が必要とされており、裁縫等のさらに緻密な作業には1000以上のルクスが推奨されています。
計測期間の平均値を使用しております。
| 70デシベル以上(地下鉄の車内・ 蝉の声) | 60~70デシベル(ファミレス・ コーヒーショップ店内) | 50~60デシベル(書店の店内・ 役所の窓口周辺) | 40~50デシベル(図書館の館内・美術館の館内) | 30~40デシベル(ホテルの室内) |
|---|---|---|---|---|
※参考:環境省
| マンション名 | 藤和シティホームズ神楽坂 | 住所 | 東京都新宿区山吹町291-1 |
|---|---|---|---|
| 価格 | 10,480万円 購入シミュレーションClose 購入シミュレーション物件価格 10,480万円 仲介手数料:最大320.4万円が不要! 頭金 010,480 金利(年) 05.000 返済年数 145 借入金額 万円 月々の支払金額 円 返済総額 円 諸費用概算 約万円 上記の諸費用が必要となります。 ※ 借入条件を(物件価格、期間35年)で算出。 ※ 借地権の際は誤差が生じます。 ※ このシミュレーションは、あくまでも目安の数値となり、お借り入れを保証するものではありません。 | 土地権利 | 所有権 |
| 交通 | 東京地下鉄有楽町線 江戸川橋駅 まで 徒歩 4 分 東京地下鉄東西線 神楽坂駅 まで 徒歩 6 分 東京地下鉄東西線 早稲田駅 まで 徒歩 12 分 | 用途地域 | 商業地域 |
| 築年月 | 1995年07月(築31年) | ||
| 管理費 | 18,500円 | 修繕積立金 | 20,380円 |
| その他費用 | |||
| 管理方式 | 全部委託 | 管理会社 | 三菱地所藤和コミュニティ株式会社 |
| 管理人 | 無 | 現況 | 空室 |
| 引渡し時期 | 相談 | 固定資産税・ 都市計画税 |
| 構造 | 鉄骨鉄筋コンクリート造(SRC) | 建物階数 | 地上12階 |
|---|---|---|---|
| 所在階 | 10階 | 総戸数 | 25 戸 |
| 専有面積 | 壁芯 55.8㎡ | バルコニー面積 | 18.23㎡ |
| 間取り | 2LDK + W | 方角 | 南東 |
| 駐車場 | なし | ||
| バイク置き場 | なし | 駐輪場 | 確認中 : 月額400円 |
| ペット | 可 (条件 : 相談可) | 事務所利用 |
| 施工会社 | フジタ | 耐震診断 | |
|---|---|---|---|
| 再建築不可 | 既存不適格 | ||
| その他説明事項 | ※販売図面の内容と現況が異なる場合は現況優先とさせていただきます。 | ||
| その他 |
| 修繕積立金の総額 | 修繕積立金の滞納額 | ||
|---|---|---|---|
| 管理費の滞納額 | 管理組合の借入額 |
| 項目 | リフォーム | 内装完了日 | 2025年12月(中旬) |
|---|---|---|---|
| 内容 | フローリング新規貼替
|
| 位置 | 部屋 | ||
|---|---|---|---|
| 収納 | WICあり | キッチン | カウンターキッチン / 食洗機 / 浄水器 / システムキッチン / 3口以上コンロ |
| 浴室・トイレ・洗面所 | 浴室乾燥機 / 追い焚き | バルコニー | 2面バルコニー |
| 設備 | その他 | リフォーム | |
| 構造 | 新耐震基準 | 設備 | 24時間ゴミ / トランクルーム / エレベーター |
| セキュリティ | オートロック / モニター付インターホン / 24時間セキュリティ / 防犯カメラ | 立地・環境 | スーパーまで5分 / コンビニまで3分 / 2沿線以上利用可 |
情報提供日:2026年02月26日 / 次回更新日:2026年03月12日
| 近隣施設 1 | 東京信用金庫江戸川橋支店 48m |
|---|---|
| 近隣施設 2 | ローソン 新宿山吹町店 67m |
| 近隣施設 3 | 司歯科 68m |
| 近隣施設 4 | セブンイレブン 新宿山吹町店 73m |
| 近隣施設 5 | 内科すずきクリニック 77m |

国土交通大臣(1)第10414号
所属団体名((公社)首都圏不動産公正取引協議会)
◆お問い合わせ対応窓口◆
取引態様:媒介
本サイト運営会社/株式会社FLIE(FLIEエージェント)
東京都中央区京橋1-1-5 セントラルビル3F
免許番号:国土交通大臣(1)第10892号
※売主様が対応可能な場合、直接手続きとなる場合があります。
-----------------------------
市場に眠っている誰もが気付かないような価値のある物件を見つけ出し、リノベーションでその価値を最大限に引き出し再び市場へ提供することが、私たちの使命です。
※売主HPより引用
物件価格
仲介手数料:最大320.4万円が不要!
頭金
金利(年)
返済年数
返済総額 円
上記の諸費用が必要となります。
※ このシミュレーションは、あくまでも目安の数値となり、お借り入れを保証するものではありません。
※ 実際の購入・借り入れにあたっては、金融機関でご確認いただくか、「お問い合わせ」よりご相談ください。
※ 諸費用を含めた住宅ローンのご提案も承っておりますので、お気軽にご相談ください。
藤和シティホームズ神楽坂
無料通話番号
不動産取引の新しい常識へ
「買主と売主が自由に安心して直接取引できる不動産プラットフォーム」を目指しています。