

















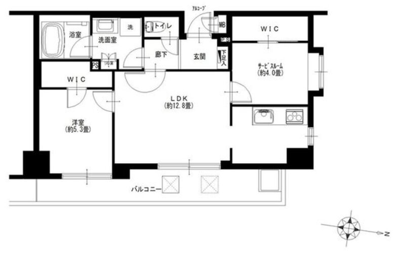
1LDK + S(納戸)/54.07㎡
投資用
ペット可
事務所可
宅配ボックス
オートロック
新耐震
フラット35S
フラット35
リノベーション
R1住宅
リフォーム
◆リノベーション物件◆
≪売主≫ならではの充実した物件資料と豊富な知識!
○オートロック・宅配ボックス完備!
○犬・猫2匹まで飼育可(細則有)
○5階部分・角住戸、風通しの良いお部屋!
○食洗機や床暖房など、ワンランク上の充実した設備♪
○ウォークインクローゼットを2か所新設し、収納豊富な室内
○東京スカイツリータウンまで徒歩6分、ショッピングやグルメ・アミューズメントが楽しめます♪
~工事中でも内見可能です。お気軽にお問合せ下さい!~
※工事状況により内見できない場合があります。
リノベーション後引渡し(2026年4月上旬完了予定)
■システムキッチン(食洗機付)
■ユニットバス(高温差湯式)
■洗面化粧台
■トイレ
■フローリング
■壁、天井クロス、他
室内の照明等を点灯せず、自然光の明るさを計測しております。計測期間の平均値を使用しております。
| 100ルクス以下 | 100~200ルクス | 200~500ルクス | 500~750ルクス | 750ルクス以上 |
|---|---|---|---|---|
人々のさまざまな活動が安全・快適に行える環境を作るために、推奨する照度基準を定めたもので、作業内容や空間の用途に応じて推奨照度が設定されています。JIS照明基準では、200lx(ルクス)をリビングでの団らんや娯楽(軽い読書も含む)に推奨される照度と定めており、200ルクス以上の照度が取れていれば自然光でもリラックスして過ごすことができます。
勉強やPC作業等の作業は750ルクス以上が必要とされており、裁縫等のさらに緻密な作業には1000以上のルクスが推奨されています。
計測期間の平均値を使用しております。
| 70デシベル以上(地下鉄の車内・ 蝉の声) | 60~70デシベル(ファミレス・ コーヒーショップ店内) | 50~60デシベル(書店の店内・ 役所の窓口周辺) | 40~50デシベル(図書館の館内・美術館の館内) | 30~40デシベル(ホテルの室内) |
|---|---|---|---|---|
※参考:環境省
| マンション名 | スタジオDEN押上 | 住所 | 東京都墨田区業平3丁目7-7 |
|---|---|---|---|
| 価格 | 7,490万円 | 土地権利 | 所有権 |
| 交通 | 東京地下鉄半蔵門線 押上駅 まで 徒歩 2 分 東京都浅草線 押上駅 まで 徒歩 2 分 総武・中央緩行線 錦糸町駅 まで 徒歩 14 分 | 用途地域 | 近隣商業地域 |
| 築年月 | 2005年07月(築21年) | ||
| 管理費 | 15,410円 | 修繕積立金 | 12,130円 |
| その他費用 | |||
| 管理方式 | 全部委託 | 管理会社 | 株式会社長谷工コミュニティ |
| 管理人 | 巡回 | 現況 | |
| 引渡し時期 | 相談 | 固定資産税・ 都市計画税 |
| 構造 | 鉄筋コンクリート造(RC) | 建物階数 | 地上7階 |
|---|---|---|---|
| 所在階 | 5階 | 総戸数 | 37 戸 |
| 専有面積 | 壁芯 54.07㎡ | バルコニー面積 | 10.3㎡ |
| 間取り | 1LDK + S(納戸) | 方角 | 東 |
| 駐車場 | 確認中 : 月額25,000円~28,000円 | ||
| バイク置き場 | 確認中 : 月額500円~1,500円 | 駐輪場 | 確認中 : 月額300円~400円 |
| ペット | 可 (条件 : 犬・猫2匹まで飼育可(細則有)) | 事務所利用 |
| 施工会社 | 山田建設株式会社 | 耐震診断 | |
|---|---|---|---|
| 再建築不可 | 既存不適格 | ||
| その他説明事項 | 掲載と現況が異なる場合は現況優先します。 | ||
| その他 |
| 修繕積立金の総額 | 修繕積立金の滞納額 | ||
|---|---|---|---|
| 管理費の滞納額 | 管理組合の借入額 |
| 項目 | リノベーション | 内装完了日 | 2026年04月(上旬) |
|---|---|---|---|
| 内容 | ◆システムキッチン交換
|
| 位置 | 角部屋 | 部屋 | 全居室フローリング |
|---|---|---|---|
| 収納 | WICあり | キッチン | 食洗機 / 浄水器 / システムキッチン |
| 浴室・トイレ・洗面所 | 浴室乾燥機 / 温水便座洗浄機 | バルコニー | |
| 設備 | 床暖房 / オール電化 | その他 | リノベーション / リフォーム |
| 構造 | 設備 | 宅配ボックス / エレベーター | |
| セキュリティ | モニター付インターホン | 立地・環境 | 2沿線以上利用可 |
情報提供日:2026年02月12日 / 次回更新日:2026年02月26日
| 近隣施設 1 | ファミリーマート 業平三丁目店 130m |
|---|---|
| 近隣施設 2 | スーパーイズミ 120m |
| 近隣施設 3 | ビッグ・エー墨田業平店 250m |
| 近隣施設 4 | 肉のハナマサ PLUS(プラス) 押上店 450m |
| 近隣施設 5 | 東京ソラマチ 450m |

国土交通大臣(4)第7356号
所属団体名((公社)首都圏不動産公正取引協議会)
◆お問い合わせ対応窓口◆
取引態様:媒介
本サイト運営会社/株式会社FLIE(FLIEエージェント)
東京都中央区京橋1-1-5 セントラルビル3F
免許番号:国土交通大臣(1)第10892号
※売主様が対応可能な場合、直接手続きとなる場合があります。
-----------------------------------------------------------------
新しい住空間の創造を目指した総合住宅ディベロップメント企業である「マイプレイス」は、創業以来”人と地球にやさしい住まい”の追求を企業理念として掲げ、お客様にご満足していただくことを何よりの目標として努力を重ねてまいりました。
~まだ住める家から住みたくなる家へ~
年間800戸を超えるリフォーム実績があり、新築同様の高品質なリノベーションを実現しております。リノベーションマンション累計10,000戸の供給を達成いたしました。
※売主HPより引用
スタジオDEN押上
無料通話番号
不動産取引の新しい常識へ
「買主と売主が自由に安心して直接取引できる不動産プラットフォーム」を目指しています。