









































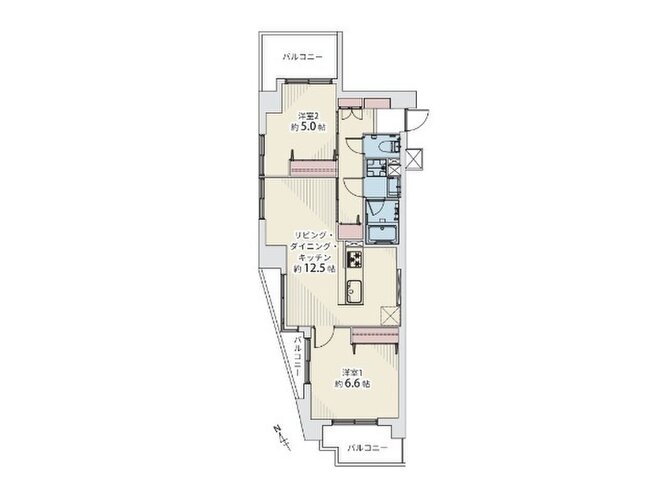
2LDK/58.37㎡
R1住宅 (適合リノベーション住宅) は、リノベーション協議会が定める「検査→工事→開示→保証→住宅履歴」の5つのフローに則ったリノベーションの統一規格です。
住宅のタイプ別に基準を設け、給排水や下地など目に見えない、分かりにくい重要なインフラ部分の検査 + 2年以上の保証、住宅履歴などを義務としています。
物件価格
2,299万円
仲介手数料:最大74.9万円が不要!
頭金0円で月々万円台よりご購入可能
月々の支払金額
円※ このシミュレーションには、諸費用・管理費・修繕積立金等は含まれておりません。あくまでも目安の数値となり、お借り入れを保証するものではありませんので、
実際の購入・借り入れにあたっては、金融機関でご確認いただくか、「お問い合わせ」よりご相談ください。
管理費 : 11,970円 / 修繕積立金 : 6,480円 / その他費用 : 費用: 2050 / 内訳: ガス警報器・住民活動協力金(非居住区分所有)
投資用
ペット可
事務所可
宅配ボックス
オートロック
新耐震
フラット35S
フラット35
リノベーション
R1住宅
リフォーム
アフターサービス保証付リノベーション物件
◆4路線4駅以上利用可能◆オートロック付き◆3面バルコニー

天王寺エリア、好立地!「ふぁみーゆ天王寺」4階部分、南西向き2LDK!58.37㎡のゆとりある広さで、陽当たり良好。1987年築SRC造15階建て、4路線利用可能でアクセスも抜群。室内はリノベーション済みで、システムキッチン、食洗機、浴室乾燥機など設備も充実。3面バルコニーも魅力的。オートロック、防犯カメラでセキュリティ面も安心。快適な新生活を始めませんか?
室内の照明等を点灯せず、自然光の明るさを計測しております。計測期間の平均値を使用しております。
| 100ルクス以下 | 100~200ルクス | 200~500ルクス | 500~750ルクス | 750ルクス以上 |
|---|---|---|---|---|
人々のさまざまな活動が安全・快適に行える環境を作るために、推奨する照度基準を定めたもので、作業内容や空間の用途に応じて推奨照度が設定されています。JIS照明基準では、200lx(ルクス)をリビングでの団らんや娯楽(軽い読書も含む)に推奨される照度と定めており、200ルクス以上の照度が取れていれば自然光でもリラックスして過ごすことができます。
勉強やPC作業等の作業は750ルクス以上が必要とされており、裁縫等のさらに緻密な作業には1000以上のルクスが推奨されています。
計測期間の平均値を使用しております。
| 70デシベル以上(地下鉄の車内・ 蝉の声) | 60~70デシベル(ファミレス・ コーヒーショップ店内) | 50~60デシベル(書店の店内・ 役所の窓口周辺) | 40~50デシベル(図書館の館内・美術館の館内) | 30~40デシベル(ホテルの室内) |
|---|---|---|---|---|
※参考:環境省
| マンション名 | ふぁみーゆ天王寺 | 住所 | 大阪府大阪市東住吉区桑津1丁目12-9 |
|---|---|---|---|
| 価格 | 2,299万円 購入シミュレーションClose 購入シミュレーション物件価格 2,299万円 仲介手数料:最大74.9万円が不要! 頭金 02,299 金利(年) 05.000 返済年数 145 借入金額 万円 月々の支払金額 円 返済総額 円 諸費用概算 約万円 上記の諸費用が必要となります。 ※ 借入条件を(物件価格、期間35年)で算出。 ※ 借地権の際は誤差が生じます。 ※ このシミュレーションは、あくまでも目安の数値となり、お借り入れを保証するものではありません。 | 土地権利 | 所有権 |
| 交通 | 近鉄南大阪線 河堀口駅 まで 徒歩 10 分 関西本線 東部市場前駅 まで 徒歩 13 分 阪和線 美章園駅 まで 徒歩 14 分 | 用途地域 | 第一種住居地域 |
| 築年月 | 1987年12月(築39年) | ||
| 管理費 | 11,970円 | 修繕積立金 | 6,480円 |
| その他費用 | 費用: 2050 / 内訳: ガス警報器・住民活動協力金(非居住区分所有) | ||
| 取引形態 | 売主 | ||
| 管理方式 | 全部委託 | 管理会社 | 日本住宅管理株式会社 |
| 管理人 | 日勤 | 現況 | 空室 |
| 引渡し時期 | 即時 (2026年01月) | 固定資産税・ 都市計画税 |
| 構造 | 鉄骨鉄筋コンクリート造(SRC) | 建物階数 | 地上15階 / 地下1階 |
|---|---|---|---|
| 所在階 | 4階 | 総戸数 | 79 戸 |
| 専有面積 | 壁芯 58.37㎡ | バルコニー面積 | 12.95㎡ |
| 間取り | 2LDK | 方角 | 南西 |
| 駐車場 | あり(空無) | ||
| バイク置き場 | 駐輪場 | ||
| ペット | 事務所利用 |
| 施工会社 | 鍛冶田工務店 | 耐震診断 | |
|---|---|---|---|
| 再建築不可 | 既存不適格 | ||
| その他説明事項 | |||
| その他 |
| 修繕積立金の総額 | 修繕積立金の滞納額 | ||
|---|---|---|---|
| 管理費の滞納額 | 管理組合の借入額 |
| 項目 | リノベーション | 内装完了日 | 2025年12月 |
|---|---|---|---|
| 内容 | ○キッチン〈システムキッチン・W2100・食洗機〉
|
| 位置 | 角部屋 | 部屋 | 全居室フローリング |
|---|---|---|---|
| 収納 | キッチン | 食洗機 / 浄水器 / 3口以上コンロ | |
| 浴室・トイレ・洗面所 | 浴室乾燥機 / 温水便座洗浄機 / シャワー付洗面台 | バルコニー | 3面バルコニー |
| 設備 | 複層ガラス / CATV | その他 | リノベーション / R1住宅適合物件 |
| 構造 | 新耐震基準 | 設備 | エレベーター |
| セキュリティ | オートロック / 防犯カメラ | 立地・環境 | 2沿線以上利用可 |

国土交通大臣(5)第6392号
所属団体名((一社)リノベーション協議会/(公社)首都圏不動産公正取引協議会/(一社)不動産流通経営協会)
私たちインテリックスは、1995年の設立以降、業界に先駆けて最長20年のアフターサービス保証付リノベーションマンションの販売を行い、
首都圏をはじめ全国主要都市で、年間1000戸を超える供給を行っています。
一つ一つ構造や状況が異なる中古マンションを、細かく測り、検査し、丁寧に施工し、そして保証します。
マンションリノベーションをさらに快適でよいものにしていくために、施工品質と居住性能の追求を日々行い、皆さんに求められるよりよい住まいの提供を行ってまいります。
物件価格
仲介手数料:最大74.9万円が不要!
頭金
金利(年)
返済年数
返済総額 円
上記の諸費用が必要となります。
※ このシミュレーションは、あくまでも目安の数値となり、お借り入れを保証するものではありません。
※ 実際の購入・借り入れにあたっては、金融機関でご確認いただくか、「お問い合わせ」よりご相談ください。
※ 諸費用を含めた住宅ローンのご提案も承っておりますので、お気軽にご相談ください。
最近見た物件
ふぁみーゆ天王寺
無料通話番号
不動産取引の新しい常識へ
「買主と売主が自由に安心して直接取引できる不動産プラットフォーム」を目指しています。