

3LDK/65.2㎡
物件価格
2,498万円
仲介手数料:最大80.9万円が不要!
頭金0円で月々万円台よりご購入可能
月々の支払金額
円※ このシミュレーションには、諸費用・管理費・修繕積立金等は含まれておりません。あくまでも目安の数値となり、お借り入れを保証するものではありませんので、
実際の購入・借り入れにあたっては、金融機関でご確認いただくか、「お問い合わせ」よりご相談ください。
管理費 : 6,500円 / 修繕積立金 : 13,000円
投資用
ペット可
事務所可
宅配ボックス
オートロック
新耐震
フラット35S
フラット35
リノベーション
R1住宅
リフォーム
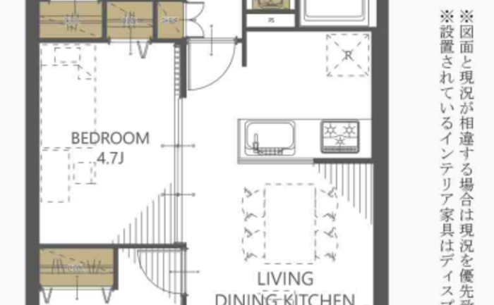
新規リノベーション物件の2階部分のお部屋です。
南東向きで明るい住戸
全居室収納+廊下収納あり

新規リノベーションで室内は新築のように生まれ変わりました。南東向きで陽光あふれる3LDKのお部屋です。システムキッチンやユニットバスなど水回りを一新。武蔵浦和・南浦和の2駅2路線が利用でき、通勤通学も快適です。全居室と廊下に収納があり、住空間もすっきり。フラット35適合物件です。
室内の照明等を点灯せず、自然光の明るさを計測しております。計測期間の平均値を使用しております。
| 100ルクス以下 | 100~200ルクス | 200~500ルクス | 500~750ルクス | 750ルクス以上 |
|---|---|---|---|---|
人々のさまざまな活動が安全・快適に行える環境を作るために、推奨する照度基準を定めたもので、作業内容や空間の用途に応じて推奨照度が設定されています。JIS照明基準では、200lx(ルクス)をリビングでの団らんや娯楽(軽い読書も含む)に推奨される照度と定めており、200ルクス以上の照度が取れていれば自然光でもリラックスして過ごすことができます。
勉強やPC作業等の作業は750ルクス以上が必要とされており、裁縫等のさらに緻密な作業には1000以上のルクスが推奨されています。
計測期間の平均値を使用しております。
| 70デシベル以上(地下鉄の車内・ 蝉の声) | 60~70デシベル(ファミレス・ コーヒーショップ店内) | 50~60デシベル(書店の店内・ 役所の窓口周辺) | 40~50デシベル(図書館の館内・美術館の館内) | 30~40デシベル(ホテルの室内) |
|---|---|---|---|---|
※参考:環境省
| マンション名 | 根岸ハイツ弐号棟 | 住所 | 埼玉県さいたま市南区根岸5丁目20-4 |
|---|---|---|---|
| 価格 | 2,498万円 購入シミュレーションClose 購入シミュレーション物件価格 2,498万円 仲介手数料:最大80.9万円が不要! 頭金 02,498 金利(年) 05.000 返済年数 145 借入金額 万円 月々の支払金額 円 返済総額 円 諸費用概算 約万円 上記の諸費用が必要となります。 ※ 借入条件を(物件価格、期間35年)で算出。 ※ 借地権の際は誤差が生じます。 ※ このシミュレーションは、あくまでも目安の数値となり、お借り入れを保証するものではありません。 | 土地権利 | 所有権 |
| 交通 | 武蔵野線 武蔵浦和駅 まで 徒歩 17 分 埼京線 武蔵浦和駅 まで 徒歩 17 分 武蔵野線 南浦和駅 まで 徒歩 17 分 | 用途地域 | |
| 築年月 | 1974年02月(築52年) | ||
| 管理費 | 6,500円 | 修繕積立金 | 13,000円 |
| その他費用 | |||
| 管理方式 | 全部委託 | 管理会社 | 株式会社サニーライフ |
| 管理人 | 日勤 | 現況 | 空室 |
| 引渡し時期 | 相談 | 固定資産税・ 都市計画税 |
| 構造 | 鉄筋コンクリート造(RC) | 建物階数 | 地上13階 |
|---|---|---|---|
| 所在階 | 2階 | 総戸数 | 121 戸 |
| 専有面積 | 壁芯 65.2㎡ | バルコニー面積 | 6.18㎡ |
| 間取り | 3LDK | 方角 | 南東 |
| 駐車場 | |||
| バイク置き場 | 駐輪場 | ||
| ペット | 不可 | 事務所利用 |
| 施工会社 | 耐震診断 | ||
|---|---|---|---|
| 再建築不可 | 既存不適格 | ||
| その他説明事項 | ※物件掲載内容と現況に相違がある場合は現況を優先と致します。
総戸数:253戸(1号棟132戸、2号棟121戸) | ||
| その他 |
| 修繕積立金の総額 | 修繕積立金の滞納額 | ||
|---|---|---|---|
| 管理費の滞納額 | 管理組合の借入額 |
| 項目 | リノベーション | 内装完了日 | 2026年02月 |
|---|---|---|---|
| 内容 | ●キッチン / システムキッチン新規交換 ●洗面/洗面化粧台新規交換 ●トイレ / 新規交換●浴室 / ユニットバス新規交換 ●洗濯防水パン交換 ●クロス / 全室貼替 ●床材/新規張替●カーテンレール交換 ●照明器具新規取付 ●ハウスクリーニング等 ※内装完了日は別途お問い合わせください。 |
| 位置 | 部屋 | 全居室フローリング | |
|---|---|---|---|
| 収納 | キッチン | システムキッチン / 3口以上コンロ | |
| 浴室・トイレ・洗面所 | バルコニー | ||
| 設備 | その他 | リノベーション / リフォーム / フラット35適用 | |
| 構造 | 設備 | エレベーター | |
| セキュリティ | 立地・環境 | 2沿線以上利用可 |

国土交通大臣(1)第11057号
所属団体名((公社)不動産保証協会)
◆お問い合わせ対応窓口◆
取引態様:媒介
本サイト運営会社/株式会社FLIE(FLIEエージェント)
東京都中央区京橋1-1-5 セントラルビル3F
免許番号:国土交通大臣(1)第10892号
※売主様が対応可能な場合、直接手続きとなる場合があります。
-----------------------------------------------------------------
『ウサギより亀が勝つ!』『継続は力なり!』をモットーに営業しております。
弊社は少数精鋭とまでは言いませんが少人数で運営している会社です。
小さい規模でやっているからこそ、それこそ1件1件真剣に取り組みます。真剣に誠心誠意ご対応させて頂きます。
※売主HPより引用
物件価格
仲介手数料:最大80.9万円が不要!
頭金
金利(年)
返済年数
返済総額 円
上記の諸費用が必要となります。
※ このシミュレーションは、あくまでも目安の数値となり、お借り入れを保証するものではありません。
※ 実際の購入・借り入れにあたっては、金融機関でご確認いただくか、「お問い合わせ」よりご相談ください。
※ 諸費用を含めた住宅ローンのご提案も承っておりますので、お気軽にご相談ください。
根岸ハイツ弐号棟
無料通話番号
不動産取引の新しい常識へ
「買主と売主が自由に安心して直接取引できる不動産プラットフォーム」を目指しています。