





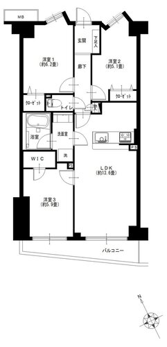
3LDK + WIC/66.53㎡
物件価格
7,490万円
仲介手数料:最大230.7万円が不要!
頭金0円で月々万円台よりご購入可能
月々の支払金額
円※ このシミュレーションには、諸費用・管理費・修繕積立金等は含まれておりません。あくまでも目安の数値となり、お借り入れを保証するものではありませんので、
実際の購入・借り入れにあたっては、金融機関でご確認いただくか、「お問い合わせ」よりご相談ください。
管理費 : 15,140円 / 修繕積立金 : 16,740円 / その他費用 : 町内会費:200円/月、組合活動協力金(役員辞退者):2000円/月、外部所有者協力金(月額1,000円)
投資用
ペット可
事務所可
宅配ボックス
オートロック
新耐震
フラット35S
フラット35
リノベーション
R1住宅
リフォーム
○オートロック・宅配ボックス付きマンション
○犬・猫飼育可(細則あり)
○対面キッチンのため、家族との会話を楽しみながらお料理ができます♪
○ウォークインクローゼットや物入など、整理しやすい室内
○ビッグ・エー 豊島上池袋店まで徒歩3分、25時まで営業しています
○池袋第一小学校まで徒歩4分、お子様が通学しやすい距離♪

埼京線「板橋」駅徒歩7分、3路線利用可能な好立地。室内はフルリノベーションで新築のように生まれ変わりました。ご家族との会話が弾む対面キッチンやWICなど豊富な収納が魅力。大切なペット(犬・猫)とも暮らせます。スーパーや小学校も徒歩5分圏内と、子育てにも優しい住環境です。
室内の照明等を点灯せず、自然光の明るさを計測しております。計測期間の平均値を使用しております。
| 100ルクス以下 | 100~200ルクス | 200~500ルクス | 500~750ルクス | 750ルクス以上 |
|---|---|---|---|---|
人々のさまざまな活動が安全・快適に行える環境を作るために、推奨する照度基準を定めたもので、作業内容や空間の用途に応じて推奨照度が設定されています。JIS照明基準では、200lx(ルクス)をリビングでの団らんや娯楽(軽い読書も含む)に推奨される照度と定めており、200ルクス以上の照度が取れていれば自然光でもリラックスして過ごすことができます。
勉強やPC作業等の作業は750ルクス以上が必要とされており、裁縫等のさらに緻密な作業には1000以上のルクスが推奨されています。
計測期間の平均値を使用しております。
| 70デシベル以上(地下鉄の車内・ 蝉の声) | 60~70デシベル(ファミレス・ コーヒーショップ店内) | 50~60デシベル(書店の店内・ 役所の窓口周辺) | 40~50デシベル(図書館の館内・美術館の館内) | 30~40デシベル(ホテルの室内) |
|---|---|---|---|---|
※参考:環境省
| マンション名 | モア・クレスト上池袋 | 住所 | 東京都豊島区上池袋4丁目16-17 |
|---|---|---|---|
| 価格 | 7,490万円 購入シミュレーションClose 購入シミュレーション物件価格 7,490万円 仲介手数料:最大230.7万円が不要! 頭金 07,490 金利(年) 05.000 返済年数 145 借入金額 万円 月々の支払金額 円 返済総額 円 諸費用概算 約万円 上記の諸費用が必要となります。 ※ 借入条件を(物件価格、期間35年)で算出。 ※ 借地権の際は誤差が生じます。 ※ このシミュレーションは、あくまでも目安の数値となり、お借り入れを保証するものではありません。 | 土地権利 | 所有権 |
| 交通 | 東武鉄道東上線 北池袋駅 まで 徒歩 7 分 埼京線 板橋駅 まで 徒歩 7 分 東京都三田線 西巣鴨駅 まで 徒歩 12 分 | 用途地域 | 第一種住居地域 |
| 築年月 | 1996年03月(築30年) | ||
| 管理費 | 15,140円 | 修繕積立金 | 16,740円 |
| その他費用 | 町内会費:200円/月、組合活動協力金(役員辞退者):2000円/月、外部所有者協力金(月額1,000円) | ||
| 管理方式 | 全部委託 | 管理会社 | ㈱長谷工コミュニティ |
| 管理人 | 日勤 | 現況 | 空室 |
| 引渡し時期 | 相談 | 固定資産税・ 都市計画税 |
| 構造 | 鉄筋コンクリート造(RC) | 建物階数 | 地上7階 |
|---|---|---|---|
| 所在階 | 2階 | 総戸数 | 48 戸 |
| 専有面積 | 壁芯 66.53㎡ | バルコニー面積 | 5.7㎡ |
| 間取り | 3LDK + WIC | 方角 | 南西 |
| 駐車場 | 確認中 : 月額30,000円 | ||
| バイク置き場 | 確認中 : 月額1,000円 | 駐輪場 | 確認中 : 月額300円~600円(2台目以降1台毎100円増額) |
| ペット | 可 (条件 : 犬・猫1匹まで飼育可(細則有)) | 事務所利用 |
| 施工会社 | ㈱長谷工コーポレーション | 耐震診断 | |
|---|---|---|---|
| 再建築不可 | 既存不適格 | ||
| その他説明事項 | 掲載と現況が異なる場合は現況優先します。
| ||
| その他 |
| 修繕積立金の総額 | 修繕積立金の滞納額 | ||
|---|---|---|---|
| 管理費の滞納額 | 管理組合の借入額 |
| 項目 | リノベーション | 内装完了日 | 2025年11月 |
|---|---|---|---|
| 内容 | ◆給湯器交換
|
| 位置 | 部屋 | 全居室フローリング | |
|---|---|---|---|
| 収納 | WICあり | キッチン | カウンターキッチン / 浄水器 / システムキッチン |
| 浴室・トイレ・洗面所 | 浴室乾燥機 / 追い焚き / 温水便座洗浄機 | バルコニー | |
| 設備 | BS / CATV | その他 | リノベーション / フラット35適用 |
| 構造 | 新耐震基準 | 設備 | 宅配ボックス / エレベーター |
| セキュリティ | オートロック / モニター付インターホン / 防犯カメラ | 立地・環境 | 学校まで5分 / スーパーまで5分 / 2沿線以上利用可 |
| 履歴 1 |
|
|---|
情報提供日:2026年03月09日 / 次回更新日:2026年03月23日
| 近隣施設 1 | セブンイレブン 上池袋3丁目店 290m |
|---|---|
| 近隣施設 2 | ビッグ・エー豊島上池袋店 190m |
| 近隣施設 3 | コモディイイダ 滝野川店 350m |
| 近隣施設 4 | 薬マツモトキヨシ 滝野川市場通り店 380m |
| 近隣施設 5 | ぬくもりのおうち保育滝野川園 180m |

国土交通大臣(4)第7356号
所属団体名((公社)首都圏不動産公正取引協議会)
◆お問い合わせ対応窓口◆
取引態様:媒介
本サイト運営会社/株式会社FLIE(FLIEエージェント)
東京都中央区京橋1-1-5 セントラルビル3F
免許番号:国土交通大臣(1)第10892号
※売主様が対応可能な場合、直接手続きとなる場合があります。
-----------------------------------------------------------------
新しい住空間の創造を目指した総合住宅ディベロップメント企業である「マイプレイス」は、創業以来”人と地球にやさしい住まい”の追求を企業理念として掲げ、お客様にご満足していただくことを何よりの目標として努力を重ねてまいりました。
~まだ住める家から住みたくなる家へ~
年間800戸を超えるリフォーム実績があり、新築同様の高品質なリノベーションを実現しております。リノベーションマンション累計10,000戸の供給を達成いたしました。
※売主HPより引用
物件価格
仲介手数料:最大230.7万円が不要!
頭金
金利(年)
返済年数
返済総額 円
上記の諸費用が必要となります。
※ このシミュレーションは、あくまでも目安の数値となり、お借り入れを保証するものではありません。
※ 実際の購入・借り入れにあたっては、金融機関でご確認いただくか、「お問い合わせ」よりご相談ください。
※ 諸費用を含めた住宅ローンのご提案も承っておりますので、お気軽にご相談ください。
モア・クレスト上池袋
無料通話番号
不動産取引の新しい常識へ
「買主と売主が自由に安心して直接取引できる不動産プラットフォーム」を目指しています。