

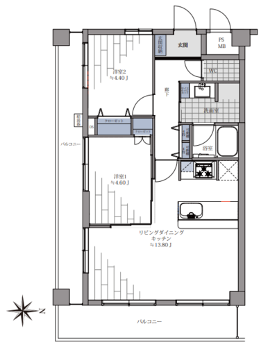
2LDK/52.25㎡
物件価格
8,499万円
仲介手数料:最大260.9万円が不要!
頭金0円で月々万円台よりご購入可能
月々の支払金額
円※ このシミュレーションには、諸費用・管理費・修繕積立金等は含まれておりません。あくまでも目安の数値となり、お借り入れを保証するものではありませんので、
実際の購入・借り入れにあたっては、金融機関でご確認いただくか、「お問い合わせ」よりご相談ください。
管理費 : 11,200円 / 修繕積立金 : 11,200円
投資用
ペット可
事務所可
宅配ボックス
オートロック
新耐震
フラット35S
フラット35
リノベーション
R1住宅
リフォーム
都営大江戸線「都庁前」駅徒歩6分!
JR「新宿」駅徒歩圏内!複数路線利用可!
高層ビル群と調和した「新宿中央公園」を望む部屋位置!
◎事務所利用可※細則有
工事履歴
2023年 駐車場フェンス補強工事
2022年 消防設備改修工事
2022年 セキュリティ強化工事
2020年 大規模修繕工事

JR「新宿」駅も徒歩圏内、複数路線利用可能な好立地。12階・東向き角部屋からは、新宿中央公園の緑豊かな眺望が広がります。室内はフルリノベーションにより現代的な住空間へ一新。オートロック、宅配ボックスなど共用設備も充実しており、都心での快適な暮らしをサポートします。
室内の照明等を点灯せず、自然光の明るさを計測しております。計測期間の平均値を使用しております。
| 100ルクス以下 | 100~200ルクス | 200~500ルクス | 500~750ルクス | 750ルクス以上 |
|---|---|---|---|---|
人々のさまざまな活動が安全・快適に行える環境を作るために、推奨する照度基準を定めたもので、作業内容や空間の用途に応じて推奨照度が設定されています。JIS照明基準では、200lx(ルクス)をリビングでの団らんや娯楽(軽い読書も含む)に推奨される照度と定めており、200ルクス以上の照度が取れていれば自然光でもリラックスして過ごすことができます。
勉強やPC作業等の作業は750ルクス以上が必要とされており、裁縫等のさらに緻密な作業には1000以上のルクスが推奨されています。
計測期間の平均値を使用しております。
| 70デシベル以上(地下鉄の車内・ 蝉の声) | 60~70デシベル(ファミレス・ コーヒーショップ店内) | 50~60デシベル(書店の店内・ 役所の窓口周辺) | 40~50デシベル(図書館の館内・美術館の館内) | 30~40デシベル(ホテルの室内) |
|---|---|---|---|---|
※参考:環境省
| マンション名 | ハイネスロフティ | 住所 | 東京都新宿区西新宿4丁目32-4 |
|---|---|---|---|
| 価格 | 8,499万円 購入シミュレーションClose 購入シミュレーション物件価格 8,499万円 仲介手数料:最大260.9万円が不要! 頭金 08,499 金利(年) 05.000 返済年数 145 借入金額 万円 月々の支払金額 円 返済総額 円 諸費用概算 約万円 上記の諸費用が必要となります。 ※ 借入条件を(物件価格、期間35年)で算出。 ※ 借地権の際は誤差が生じます。 ※ このシミュレーションは、あくまでも目安の数値となり、お借り入れを保証するものではありません。 | 土地権利 | 所有権 |
| 交通 | 東京都大江戸線 都庁前駅 まで 徒歩 6 分 東京都大江戸線 西新宿五丁目駅 まで 徒歩 8 分 山手線 新宿駅 まで 徒歩 13 分 | 用途地域 | |
| 築年月 | 1979年02月(築47年) | ||
| 管理費 | 11,200円 | 修繕積立金 | 11,200円 |
| その他費用 | |||
| 管理方式 | 全部委託 | 管理会社 | ハイネス管理(株) |
| 管理人 | 日勤 | 現況 | 空室 |
| 引渡し時期 | 相談 | 固定資産税・ 都市計画税 |
| 構造 | 鉄骨鉄筋コンクリート造(SRC) | 建物階数 | 地上13階 |
|---|---|---|---|
| 所在階 | 12階 | 総戸数 | 127 戸 |
| 専有面積 | 壁芯 52.25㎡ | バルコニー面積 | 17.58㎡ |
| 間取り | 2LDK | 方角 | 東 |
| 駐車場 | 確認中 | ||
| バイク置き場 | 確認中 | 駐輪場 | 確認中 |
| ペット | 不可 | 事務所利用 | 可 |
| 施工会社 | 西松建設 | 耐震診断 | |
|---|---|---|---|
| 再建築不可 | 既存不適格 | ||
| その他説明事項 | ※販売図面の内容と現況が異なる場合は現況優先とさせていただきます。
◇駐車場:有(月額30,000~50,000円)
| ||
| その他 |
| 修繕積立金の総額 | 修繕積立金の滞納額 | ||
|---|---|---|---|
| 管理費の滞納額 | 管理組合の借入額 |
| 項目 | リノベーション | 内装完了日 | 2026年03月(下旬) |
|---|---|---|---|
| 内容 | フローリング新規貼替
|
| 位置 | 角部屋 | 部屋 | 全居室フローリング |
|---|---|---|---|
| 収納 | キッチン | カウンターキッチン / システムキッチン / 3口以上コンロ | |
| 浴室・トイレ・洗面所 | 浴室乾燥機 / 追い焚き | バルコニー | 2面バルコニー |
| 設備 | その他 | リノベーション / リフォーム | |
| 構造 | 設備 | 24時間ゴミ / 宅配ボックス / トランクルーム / エレベーター | |
| セキュリティ | オートロック / モニター付インターホン / 24時間セキュリティ / ディンプルキー / 防犯カメラ | 立地・環境 | コンビニまで3分 / 公園まで3分 / 2沿線以上利用可 |

国土交通大臣(1)第10414号
所属団体名((公社)首都圏不動産公正取引協議会)
◆お問い合わせ対応窓口◆
取引態様:媒介
本サイト運営会社/株式会社FLIE(FLIEエージェント)
東京都中央区京橋1-1-5 セントラルビル3F
免許番号:国土交通大臣(1)第10892号
※売主様が対応可能な場合、直接手続きとなる場合があります。
-----------------------------
市場に眠っている誰もが気付かないような価値のある物件を見つけ出し、リノベーションでその価値を最大限に引き出し再び市場へ提供することが、私たちの使命です。
※売主HPより引用
物件価格
仲介手数料:最大260.9万円が不要!
頭金
金利(年)
返済年数
返済総額 円
上記の諸費用が必要となります。
※ このシミュレーションは、あくまでも目安の数値となり、お借り入れを保証するものではありません。
※ 実際の購入・借り入れにあたっては、金融機関でご確認いただくか、「お問い合わせ」よりご相談ください。
※ 諸費用を含めた住宅ローンのご提案も承っておりますので、お気軽にご相談ください。
ハイネスロフティ
無料通話番号
不動産取引の新しい常識へ
「買主と売主が自由に安心して直接取引できる不動産プラットフォーム」を目指しています。